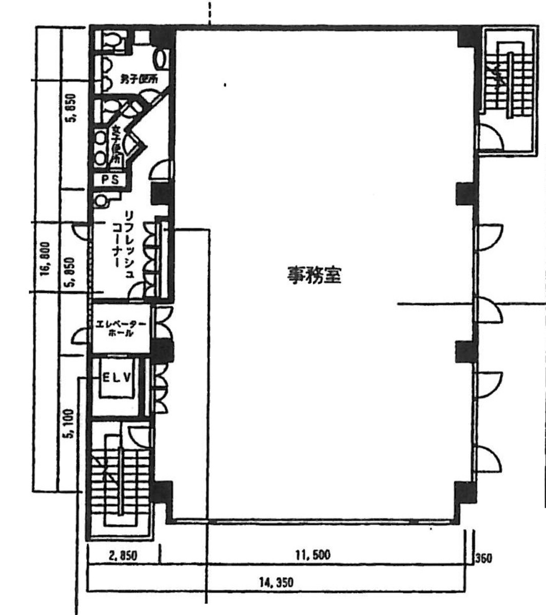
MR木場ビルの賃料条件
| 階数 | 坪数 | 賃料 + 共益費 | 敷金/礼金敷金 礼金 | 検討 |
|---|---|---|---|---|
| 4階 | 73.85坪 (244.16m²) | 1,033,900円 (坪:14,000 円) | 8ヶ月 無8ヶ月/無 |
※このサイトに記載がある賃貸条件は、敷金・保証金などの預かり金を除き、別途消費税がかかります。
物件情報
設備詳細
| 空調 | 個別空調 |
|---|---|
| トイレ | 男女別トイレ室内 |
| 床仕様 | OA対応床(フリーアクセス) |
| エレベータ | 1 基 |
| 駐車場設備 | 空有 |
| その他 | 新耐震基準 / 機械警備 / 東京賃料が坪11000円以下 |
MR木場ビルの賃貸オフィス・事務所に関するお問い合わせ
MR木場ビルについて
MR木場ビルは、江東区木場1丁目に位置する事業用建物です。東京地下鉄東西線「木場駅」から徒歩4分、また「門前仲町駅」へも複数路線が利用できる立地にあり、周辺は企業やショップが点在するエリアです。建物は地上6階・地下1階で構成されており、用途や規模に応じて多様な利用が可能な構造となっています。オフィスや店舗など、さまざまな事業活動の場として活用いただける仕様です。機械警備が導入されており、セキュリティ面に一定の配慮がなされています。新耐震基準に適合した設計であり、安心してご利用いただけます。周囲には飲食店や商業施設も見られ、働く人々にとっても過ごしやすい環境です。建物の詳しい情報やご案内については、詳細はお問い合わせください。
MR木場ビルのこだわり
自分で探すより問い合わせる方が早いことがあります
WEB非公開物件があるから
オーナー様のご希望により「WEBでは非公開」にしている物件があります。 それらはWEBでいくら検索しても見つかりません。 先ずは条件などお知らせ頂けましたら非公開物件含め ピッタリのオフィスをご提案させて頂きます。 無理なお勧めはしておりませんので、お気軽にお問い合わせください。
対面でのご相談も受け付けております
ご来店も歓迎です
オフィス移転は社内・社外ともに非公開に行われることが殆どです。そのためアットオフィスでは、基本的に訪問によるコンサルティングを行っておりますが、ご来店の相談も歓迎です。お一人おひとりに親身にご対応させて頂きたい為、要予約とさせて頂いております。ご来店の際は先ずは下記よりご予約下さい。
読込中...
江東区エリアでMR木場ビルに似た条件の物件
読込中...
| 取扱様態 | 仲介 |
|---|---|
| 取扱会社 | 株式会社 アットオフィス |