※このサイトに記載がある賃貸条件は、敷金・保証金などの預かり金を除き、別途消費税がかかります。
物件情報
設備詳細
| 空調 | 個別空調 |
|---|---|
| トイレ | - |
| 床仕様 | - |
| エレベータ | 1 基 |
| 駐車場設備 | - |
| その他 | SOHO/マンション |
土屋ビルの賃貸オフィス・事務所に関するお問い合わせ
土屋ビルについて
土屋ビルは、都心の利便性と閑静な立地を兼ね備えた渋谷区恵比寿南1丁目に位置する賃貸オフィスビルです。このビルは、モダンなビジネスのニーズに答えるための設備と、心地よい労働環境を提供することで、様々な業種の企業に適しています。土屋ビルの特徴として、利便性の高さが挙げられます。恵比寿駅から徒歩圏内にあり、交通の便が非常に良いことは、ビジネスの機動性を重視する企業にとって大きな利点となります。 ビル内部には、1機のエレベーターが設置されており、スムーズな移動をサポートします。これは、時間を大切にするビジネスパーソンにとっては、日々の業務効率化に貢献するポイントです。また、土屋ビルのオフィス空間は、様々なビジネスシーンに対応可能な柔軟性を持っており、中小企業やスタートアップ企業など、様々な規模の企業が活用できる設計となっています。 立地に関しては、恵比寿という地域自体がビジネスとレジャーの両方に対応できる環境を持っている点も見逃せません。恵比寿ガーデンプレイスをはじめ、多彩な飲食店やショッピング施設が周囲に充実しており、ビジネスアフターのリラックスタイムやクライアントとの会食にも便利です。 土屋ビルは、ビジネスの効率性と快適なワークライフバランスを追求する企業にとって、理想のオフィススペースを提供します。その立地の良さ、機能性、そして周辺環境の充実度は、ビルが持つ独自の魅力であり、ビジネスの成功を後押しする重要な要素となるでしょう。土屋ビルで、新たなビジネスの舞台を築きましょう。
土屋ビルのこだわり
自分で探すより問い合わせる方が早いことがあります
WEB非公開物件があるから
オーナー様のご希望により「WEBでは非公開」にしている物件があります。 それらはWEBでいくら検索しても見つかりません。 先ずは条件などお知らせ頂けましたら非公開物件含め ピッタリのオフィスをご提案させて頂きます。 無理なお勧めはしておりませんので、お気軽にお問い合わせください。
対面でのご相談も受け付けております
ご来店も歓迎です
オフィス移転は社内・社外ともに非公開に行われることが殆どです。そのためアットオフィスでは、基本的に訪問によるコンサルティングを行っておりますが、ご来店の相談も歓迎です。お一人おひとりに親身にご対応させて頂きたい為、要予約とさせて頂いております。ご来店の際は先ずは下記よりご予約下さい。
募集終了のテナント区画
| 階数 | 坪数 | 賃料 + 共益費 | 敷金/礼金敷金 礼金 | 検討 |
|---|---|---|---|---|
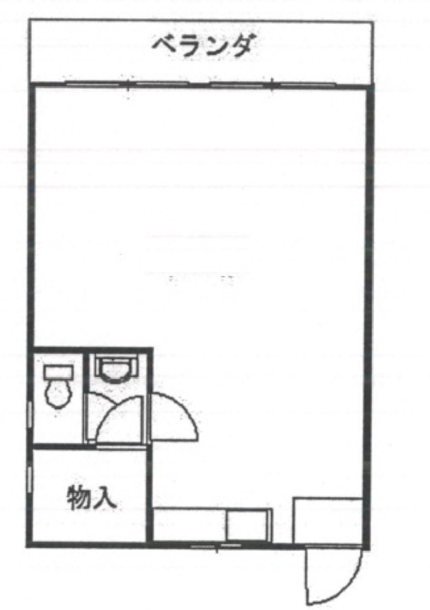
| 2階 | 12.1坪 (40m²) | 募集終了 | - | - |
| 3階 | 11.32坪 (37.44m²) | 募集終了 | - | - |
読込中...
近くのエリアで探してみる
恵比寿/代官山/広尾エリアで土屋ビルに似た条件の物件
読込中...
| 取扱様態 | 仲介 |
|---|---|
| 取扱会社 | 株式会社 アットオフィス |