京阪神御成門ビル6階の賃貸情報
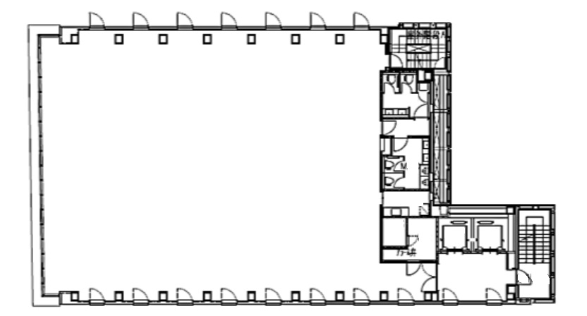
109.28 坪 (361.26m²)
※このサイトに記載がある賃貸条件は、敷金・保証金などの預かり金を除き、別途消費税がかかります。
京阪神御成門ビルの建物概要
設備詳細
| 空調 | 個別空調 |
|---|---|
| トイレ | - |
| 床仕様 | OA対応床(フリーアクセス) |
| エレベータ | 2 基 |
| 駐車場設備 | 空無 |
| その他 | 新耐震基準 / 機械警備 / 管理人常駐 / 24時間利用可 |
京阪神御成門ビル6階の賃貸オフィス・事務所に関するお問い合わせ
京阪神御成門ビルについて
京阪神御成門ビルは、東京都港区新橋6丁目に位置する、2009年に竣工された現代的な賃貸オフィスビルです。この物件は、地下1階を含む地上9階建てで、鉄骨造の構造を持ち、耐震性に優れた設計がなされています。基準階面積は約109坪となっており、各階を効率的に使用することが可能です。ビル内には11人乗りのエレベーターが2基設置されており、スムーズな移動を支援します。 外観は、ガラス張りで開放的なデザインが特徴的であり、自然光が豊富に入ることで、明るく快適な作業環境を実現しています。エントランスロビーは、広々としており、訪れる人々を温かく迎え入れます。セキュリティ面では、機械警備システムを導入しており、入居企業及び従業員の安全を確保しています。 立地としては、都営三田線「御成門駅」から徒歩2分という、非常に便利な位置にあります。また、都営浅草線・大江戸線「大門駅」から徒歩10分、JR「新橋駅」から徒歩11分と、複数の公共交通機関へのアクセスが良好です。この立地は、ビジネスの拠点としてのアクセスの利便性を高めるとともに、徒歩圏内に飲食店やコンビニ、銀行などの生活に必要な施設が充実しているため、働く人々の日常生活においても大変便利です。 設備面では、個別空調システムやOAフロア、光ファイバーの完備により、最新のオフィス環境を提供します。また、駐車場は10台分の機械式を設けており、車での通勤やビジネス用途での利用にも対応しています。トイレは室内に男女別で設置されており、清潔感のある環境を保っています。 京阪神御成門ビルは、「東京都港区みどりの街づくり賞」を受賞したことがあるなど、その設計と環境への配慮が評価されています。ビルの屋上や壁面の緑化は、都市部におけるビジネス環境においても、自然との調和を大切にしていることを象徴しています。このように、京阪神御成門ビルは、その立地の利便性、最先端の設備、そして環境への配慮が融合した、企業にとって魅力的なオフィススペースを提供しています。
京阪神御成門ビルのこだわり
自分で探すより問い合わせる方が早いことがあります
WEB非公開物件があるから
オーナー様のご希望により「WEBでは非公開」にしている物件があります。 それらはWEBでいくら検索しても見つかりません。 先ずは条件などお知らせ頂けましたら非公開物件含め ピッタリのオフィスをご提案させて頂きます。 無理なお勧めはしておりませんので、お気軽にお問い合わせください。
対面でのご相談も受け付けております
ご来店も歓迎です
オフィス移転は社内・社外ともに非公開に行われることが殆どです。そのためアットオフィスでは、基本的に訪問によるコンサルティングを行っておりますが、ご来店の相談も歓迎です。お一人おひとりに親身にご対応させて頂きたい為、要予約とさせて頂いております。ご来店の際は先ずは下記よりご予約下さい。
近くのエリアで探してみる
新橋/虎ノ門/神谷町エリアで京阪神御成門ビルに似た条件の物件
読込中...
京阪神御成門ビルと同じ最寄駅の物件
読込中...
| 取扱様態 | 仲介 |
|---|---|
| 取扱会社 | 株式会社 アットオフィス |