原宿パークハウスの賃料条件
| 階数 | 坪数 | 賃料 + 共益費 | 敷金/礼金敷金 礼金 | 検討 |
|---|---|---|---|---|
| 2階 | 17.71坪 (58.56m²) | 300,000円 (坪:16,938 円) | 相談 無相談/無 | |
| 3階 | 17.71坪 (58.56m²) | 310,000円 (坪:17,503 円) | 相談 無相談/無 | |
| 3階 | 17.71坪 (58.56m²) | 310,000円 (坪:17,503 円) | 相談 無相談/無 |
※このサイトに記載がある賃貸条件は、敷金・保証金などの預かり金を除き、別途消費税がかかります。
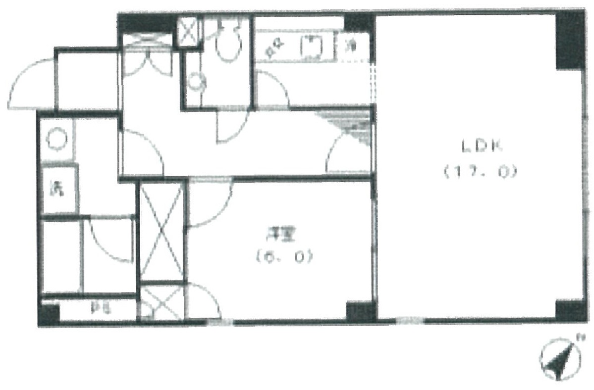
物件情報
設備詳細
| 空調 | - |
|---|---|
| トイレ | 男女共用トイレ・室内 |
| 床仕様 | - |
| エレベータ | - |
| 駐車場設備 | 空無 / 機械式駐車場 |
| その他 | オートロック / SOHO/マンション / 光ファイバー / 新耐震基準 / 機械警備 / SOHO可 |
原宿パークハウスの賃貸オフィス・事務所に関するお問い合わせ
原宿パークハウスについて
原宿パークハウスビルは、東京の中心部、渋谷区神宮前4丁目に位置する、SOHOや事務所利用を目的とした高品質なマンションです。このビルは、賑やかな表参道ヒルズの裏手にありながら、周辺は閑静な住宅街という、ビジネスとプライベートのバランスを大切にする方に最適な立地条件を備えています。1991年に竣工し、新耐震基準に適合した安心・安全な構造になっているため、地震が起きた際でもビルの安全性が担保されています。 このビルの最大の魅力は、そのアクセスの良さです。原宿駅や表参道駅から徒歩圏内という立地は、ビジネスの機会を最大限に引き出すことができるだけでなく、従業員やクライアントのアクセスの利便性を高めることができます。また、ビル内に駐車場が完備されているため、お車でのアクセスにも対応しており、空き状況についてはお問い合わせ頂ければと思います。 原宿パークハウスビルでは、SOHOや事務所としての利用に最適な設備を提供しています。広々としたオフィススペースは、創造的な仕事環境を求めるスタートアップ企業やクリエイティブな業種にとって、理想的なワークスペースを提供します。静かな住宅街に位置するため、仕事に集中するための静かな環境も確保されています。 賃貸か自社ビルでお悩みの方にとって、原宿パークハウスビルは、その立地、設備、安全性の面で非常に魅力的な選択肢となるでしょう。ビジネスの拠点としてだけでなく、クリエイティブな活動の場としても、このビルは大きな可能性を秘めています。この機会に、原宿パークハウスビルでの事業展開をご検討されてはいかがでしょうか。あなたのビジネスの成功を、ここから始めましょう。
原宿パークハウスのこだわり
自分で探すより問い合わせる方が早いことがあります
WEB非公開物件があるから
オーナー様のご希望により「WEBでは非公開」にしている物件があります。 それらはWEBでいくら検索しても見つかりません。 先ずは条件などお知らせ頂けましたら非公開物件含め ピッタリのオフィスをご提案させて頂きます。 無理なお勧めはしておりませんので、お気軽にお問い合わせください。
対面でのご相談も受け付けております
ご来店も歓迎です
オフィス移転は社内・社外ともに非公開に行われることが殆どです。そのためアットオフィスでは、基本的に訪問によるコンサルティングを行っておりますが、ご来店の相談も歓迎です。お一人おひとりに親身にご対応させて頂きたい為、要予約とさせて頂いております。ご来店の際は先ずは下記よりご予約下さい。
募集終了のテナント区画
| 階数 | 坪数 | 賃料 + 共益費 | 敷金/礼金敷金 礼金 | 検討 |
|---|---|---|---|---|
| 1階 | 17.71坪 (58.56m²) | 募集終了 | - | - |
| 1階 | 17.71坪 (58.56m²) | 募集終了 | - | - |
| 1階 | 17.71坪 (58.56m²) | 募集終了 | - | - |
| 2階 | 17.71坪 (58.56m²) | 募集終了 | - | - |
| 2階 | 17.71坪 (58.56m²) | 募集終了 | - | - |
| 3階 | 21.85坪 (72.24m²) | 募集終了 | - | - |
読込中...
表参道/外苑前エリアで原宿パークハウスに似た条件の物件
読込中...
| 取扱様態 | 仲介 |
|---|---|
| 取扱会社 | 株式会社 アットオフィス |