※このサイトに記載がある賃貸条件は、敷金・保証金などの預かり金を除き、別途消費税がかかります。
お電話でもお気軽にお問い合わせください
物件情報
設備詳細
| 空調 | 個別空調 |
|---|---|
| トイレ | 男女別トイレ室内 |
| 床仕様 | OA対応床(フリーアクセス) |
| エレベータ | 1 基 |
| 駐車場設備 | - |
| その他 | 機械警備 / 24時間利用可 / 光ファイバー / デザイナーズ / 新耐震基準 / 天井高3m以上 |
アクセスマップ
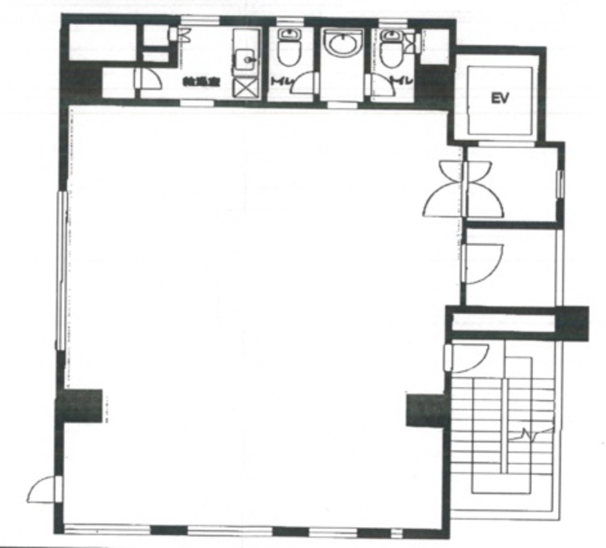
アロス渋谷ビル(旧:渋谷Monostep)は、2006年に竣工された、白色を基調としたモダンなデザインが特徴のオフィスビルです。渋谷区渋谷3丁目に位置し、渋谷駅の新南口から徒歩3分という絶好の立地条件を誇ります。この物件は、特にIT企業やクリエイティブ系の企業に人気のある賃貸オフィスです。その理由の一つとして、ビルのデザイン性の高さと利便性の良さが挙げられます。 建物は地上10階建てで、外観は白ブロックとコンクリート打ちっ放しの融合により、洗練された印象を与えます。室内は24.02坪のコンパクトながらも、天井高は3m以上あり、開放感あふれる空間を提供します。正方形に近いシンプルな間取りで、採光に優れた大きな窓が設けられており、明るく快適なオフィス環境を実現しています。 設備面では、OAフロア、光回線対応、個別空調、機械警備といった現代のオフィスに求められる高い基準を満たしています。また、男女別トイレや給湯設備などの配慮もあり、従業員の働きやすさを考えた設計がなされています。 立地に関しては、渋谷駅から徒歩8分とアクセスが良好で、明治通り沿いに位置しているため、飲食店やコンビニが豊富で、ビジネスに必要なあらゆるサービスが手軽に利用できます。周辺は賑やかながらも開放感があり、働く人々にとって刺激的かつ快適な環境を提供します。 アロス渋谷ビルは、そのデザイン性、機能性、立地の良さを兼ね備えた物件として、特に新しいビジネスの形を模索する企業に最適な選択肢となるでしょう。このビルは、ビジネスの成功に向けた素晴らしいスタート地点として、多くの企業にとって魅力的なオプションです。
募集終了のテナント区画
| 階数 | 坪数 | 賃料 + 共益費 | 敷金/礼金敷金 礼金 | 検討 |
|---|---|---|---|---|
| 1階 | 20.25坪 (66.96m²) | 募集終了 | - | - |
| 5階 | 24.02坪 (79.43m²) | 募集終了 | - | - |
| 8階 | 24.02坪 (79.43m²) | 募集終了 | - | - |
| 9階 | 24.02坪 (79.43m²) | 募集終了 | - | - |
WEB非公開物件がございます
オーナー様ご希望によるWEB非公開の物件もございます。先ずは条件などお知らせ頂けましたら、非公開物件含めピッタリのオフィスをご提案させて頂きます。具体的な物件がお決まりでない場合でも問題ございません。無理なお勧めはしておりませんので、お気軽にお問い合わせください。
ご来店も歓迎です
オフィス移転は社内・社外ともに非公開に行われることが殆どです。そのためアットオフィスでは、基本的に訪問によるコンサルティングを行っておりますが、ご来店の相談も歓迎です。
※お一人おひとりに親身にご対応させて頂きたい為、要予約とさせて頂いております。ご来店の際は先ずは上記よりご予約下さい。
読込中...
渋谷エリアでアロス渋谷ビルに似た条件の物件
読込中...