VORT渋谷9階の賃貸情報
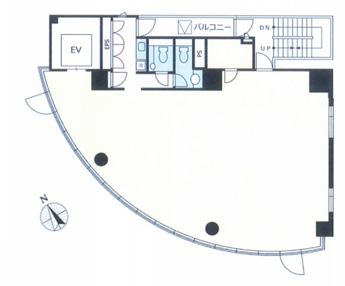
30.58 坪 (101.11m²)
お問合せ下さい (坪:-)
※このサイトに記載がある賃貸条件は、敷金・保証金などの預かり金を除き、別途消費税がかかります。
VORT渋谷の建物概要
設備詳細
| 空調 | 個別空調 |
|---|---|
| トイレ | - |
| 床仕様 | OA対応床(フリーアクセス) |
| エレベータ | 1 基 |
| 駐車場設備 | 機械式駐車場 |
| その他 | 24時間利用可 / 光ファイバー / 新耐震基準 |
VORT渋谷9階の賃貸オフィス・事務所に関するお問い合わせ
VORT渋谷について
渋谷デュープレックスBsビル、現在「VORT渋谷」として知られるこのオフィスビルは、2007年に新耐震基準を満たして竣工された現代的なデザインが特徴の賃貸オフィス物件です。渋谷区渋谷に位置し、渋谷駅から徒歩約10分、新南口からはわずか3分というアクセスの良さが魅力です。この立地は、埼京線や湘南新宿ラインを利用するビジネスパーソンにとって特に便利です。さらに、近隣には飲食店が充実し、明治通り沿いに位置することで多様なライフスタイルをサポートします。 ビルの設計は、視認性の高いガラスウォールが特徴で、10階建ての構造です。各オフィスフロアは約30坪から40坪弱の広さで、大きな窓から自然光が入り込む明るく開放的な空間が広がっています。直接エレベーターから入ることができるダイレクトインタイプのオフィスは、柱の配置が間仕切りを行いやすいように考えられており、作業空間のカスタマイズが可能です。 設備面では、OAフロアを採用しており、床下にはOA機器の配禚が可能です。これにより、オフィス環境の整備がスムーズに行えます。また、個別空調システムにより、各テナントは自身のニーズに合わせた温度管理ができるため、快適なオフィス環境を維持できます。24時間体制の機械警備と不停止機能付きエレベーターがセキュリティと利便性を高めています。 VORT渋谷は、新耐震基準に対応した現代的なデザイン、優れた立地、そして充実した設備を兼ね備えるオフィスビルです。渋谷と恵比寿の間に位置するこの物件は、都市の中心でビジネスを行いたい企業にとって理想的な選択と言えるでしょう。
自分で探すより問い合わせる方が早いことがあります
WEB非公開物件があるから
オーナー様のご希望により「WEBでは非公開」にしている物件があります。 それらはWEBでいくら検索しても見つかりません。 先ずは条件などお知らせ頂けましたら非公開物件含め ピッタリのオフィスをご提案させて頂きます。 無理なお勧めはしておりませんので、お気軽にお問い合わせください。
対面でのご相談も受け付けております
ご来店も歓迎です
オフィス移転は社内・社外ともに非公開に行われることが殆どです。そのためアットオフィスでは、基本的に訪問によるコンサルティングを行っておりますが、ご来店の相談も歓迎です。お一人おひとりに親身にご対応させて頂きたい為、要予約とさせて頂いております。ご来店の際は先ずは下記よりご予約下さい。
渋谷エリアでVORT渋谷に似た条件の物件
読込中...
VORT渋谷と同じ最寄駅の物件
読込中...
| 取扱様態 | 仲介 |
|---|---|
| 取扱会社 | 株式会社 アットオフィス |