※このサイトに記載がある賃貸条件は、敷金・保証金などの預かり金を除き、別途消費税がかかります。
物件情報
設備詳細
| 空調 | 個別空調 |
|---|---|
| トイレ | 男女共用トイレ・室内 |
| 床仕様 | - |
| エレベータ | 1 基 |
| 駐車場設備 | - |
| その他 | 光ファイバー / 機械警備 / 新耐震基準 / 24時間利用可 |
美松ビルの賃貸オフィス・事務所に関するお問い合わせ
美松ビルについて
美松ビルは、都心の活気あふれる南青山一丁目、港区に位置する、2008年竣工のモダンで洗練されたオフィスビルです。この地域は洗練された町並みで知られ、多くのビジネスマンやクリエイティブな才能が集まるエリアとして注目を集めています。美松ビルの外観は、白と茶色を基調としたデザインで、足元からのガラスウォールが特徴的であり、開放感あふれる空間を創出しています。 物件は、青山一丁目駅からわずか徒歩1分という駅近の立地にあり、交通のアクセスの良さはテナントにとって大きな魅力です。また、ビルは角地に面しており、視認性の高さもビジネスの展開には欠かせない要素です。近隣には飲食店やショッピングモール、三菱UFJ銀行などがあり、日々のビジネスや生活に必要な施設が身近に揃っています。 このオフィスビルは、鉄骨造で、新耐震基準に準拠しており、テナントの安全に対する配慮が行き届いています。また、ビル内は光ファイバーにも対応しており、高速インターネット環境が整っています。これにより、IT関連のビジネスや、テクノロジーを駆使した新しい事業展開を考えている企業にとっても、非常に魅力的な環境が提供されています。 さらに、美松ビルは、個別空調システムを備えており、各テナントが快適なオフィス環境を個別にコントロールできます。セキュリティ設備も整っており、24時間体制でビルの安全が守られています。これにより、ビジネスの安全と安心、快適性を同時に手に入れることが可能です。 このビルは、店舗としての利用も可能であり、住まいとの兼用も可能なSOHO物件としても設計されています。これにより、様々なビジネススタイルやライフスタイルに合わせた柔軟な利用が可能です。 美松ビルは、その立地の良さ、充実した設備、そしてモダンで洗練されたデザインが特徴のオフィスビルです。これからのビジネス展開において、新しい価値を創造したい企業や個人にとって、最適な選択肢の一つと言えるでしょう。
美松ビルのこだわり
自分で探すより問い合わせる方が早いことがあります
WEB非公開物件があるから
オーナー様のご希望により「WEBでは非公開」にしている物件があります。 それらはWEBでいくら検索しても見つかりません。 先ずは条件などお知らせ頂けましたら非公開物件含め ピッタリのオフィスをご提案させて頂きます。 無理なお勧めはしておりませんので、お気軽にお問い合わせください。
対面でのご相談も受け付けております
ご来店も歓迎です
オフィス移転は社内・社外ともに非公開に行われることが殆どです。そのためアットオフィスでは、基本的に訪問によるコンサルティングを行っておりますが、ご来店の相談も歓迎です。お一人おひとりに親身にご対応させて頂きたい為、要予約とさせて頂いております。ご来店の際は先ずは下記よりご予約下さい。
募集終了のテナント区画
| 階数 | 坪数 | 賃料 + 共益費 | 敷金/礼金敷金 礼金 | 検討 |
|---|---|---|---|---|
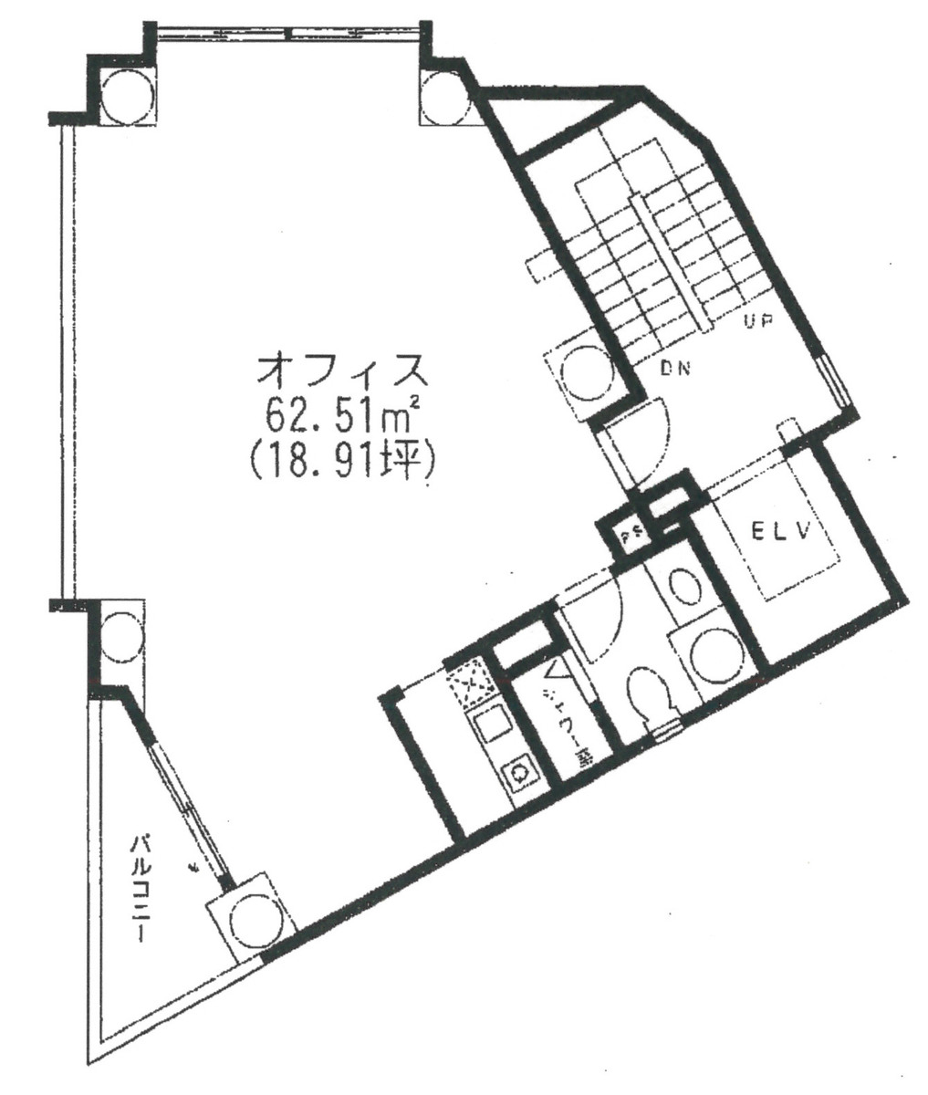
| 4階 | 18.91坪 (62.51m²) | 募集終了 | - | - |
| 5階 | 18.91坪 (62.51m²) | 募集終了 | - | - |
| 6階 | 18.91坪 (62.51m²) | 募集終了 | - | - |
| 7階 | 18.91坪 (62.51m²) | 募集終了 | - | - |
| 8階 | 18.91坪 (62.51m²) | 募集終了 | - | - |
| 9階 | 18.9坪 (62.51m²) | 募集終了 | - | - |
読込中...
青山エリアで美松ビルに似た条件の物件
読込中...
| 取扱様態 | 仲介 |
|---|---|
| 取扱会社 | 株式会社 アットオフィス |