※このサイトに記載がある賃貸条件は、敷金・保証金などの預かり金を除き、別途消費税がかかります。
物件情報
設備詳細
| 空調 | 個別空調 |
|---|---|
| トイレ | 男女別トイレ室外 |
| 床仕様 | OA対応床(フリーアクセス) |
| エレベータ | 1 基 |
| 駐車場設備 | - |
| その他 | 機械警備 / 光ファイバー / 新耐震基準 |
VORT浜松町Ⅰの賃貸オフィス・事務所に関するお問い合わせ
VORT浜松町Ⅰについて
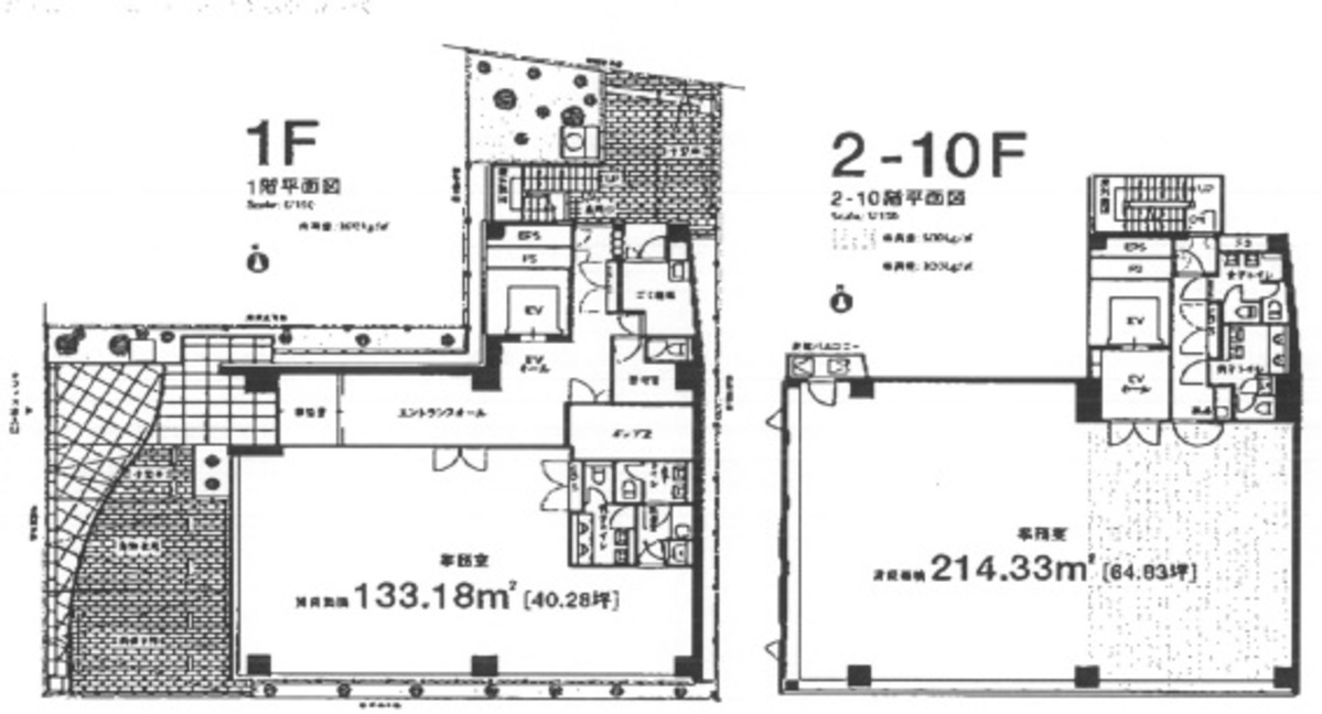
東京都港区浜松町に位置する「VORT浜松町1」は、2008年に竣工した地上10階建てのモダンなオフィスビルです。この物件は、JR山手線・京浜東北線浜松町駅、東京モノレール線浜松町駅、そして都営浅草線・都営大江戸線の大門駅から徒歩約4分という、非常にアクセスの良い立地にあります。さらに、ゆりかもめ線・都営大江戸線の汐留駅や都営三田線の御成門駅も徒歩圏内と、複数の交通路線が利用可能で、東京のどこへでもスムーズな移動が可能です。 「VORT浜松町1」は、基準階面積66.43坪の広々としたフロアを提供しており、特に無柱の整形フロアはレイアウトの自由度が高く、様々なビジネスニーズに応えることができます。また、各フロアには個別空調が完備されており、働く人の快適性を重視しています。2面採光で自然光が豊富に入るため、明るく開放的なオフィス環境を実現しています。 セキュリティ面では、24時間稼働の機械警備システムを導入し、安心して働ける環境を提供しています。オフィスビルには15人乗りのエレベーターが1基あり、日中の移動もスムーズです。エントランスは石貼りでモダンかつシャープなデザインが特徴で、ビジネスシーンにふさわしい第一印象を与えます。 周辺環境としては、浜松町駅周辺には多彩な飲食店があり、ビジネスランチやアフター5の利用にも便利です。また、東京モノレール線の利用で羽田空港へのアクセスも良好で、ビジネスでの出張などにも最適です。 港区浜松町エリアは、大規模オフィスビルが多く立地しており、日本を代表するビジネスエリアの一つです。その中で「VORT浜松町1」は、最新の耐震基準に適合した安全性、利便性の高いアクセス、そして快適なオフィス環境を提供しており、様々なビジネスに最適なオフィススペースを提供しています。このエリアでのビジネス拠点設立を考えている企業にとって、見逃せない魅力ある物件です。
VORT浜松町Ⅰのこだわり
自分で探すより問い合わせる方が早いことがあります
WEB非公開物件があるから
オーナー様のご希望により「WEBでは非公開」にしている物件があります。 それらはWEBでいくら検索しても見つかりません。 先ずは条件などお知らせ頂けましたら非公開物件含め ピッタリのオフィスをご提案させて頂きます。 無理なお勧めはしておりませんので、お気軽にお問い合わせください。
対面でのご相談も受け付けております
ご来店も歓迎です
オフィス移転は社内・社外ともに非公開に行われることが殆どです。そのためアットオフィスでは、基本的に訪問によるコンサルティングを行っておりますが、ご来店の相談も歓迎です。お一人おひとりに親身にご対応させて頂きたい為、要予約とさせて頂いております。ご来店の際は先ずは下記よりご予約下さい。
募集終了のテナント区画
| 階数 | 坪数 | 賃料 + 共益費 | 敷金/礼金敷金 礼金 | 検討 |
|---|---|---|---|---|
| 2階 | 66.43坪 (219.62m²) | 募集終了 | - | - |
| 3階 | 66.43坪 (219.62m²) | 募集終了 | - | - |
| 10階 | 66.43坪 (219.62m²) | 募集終了 | - | - |
読込中...
近くのエリアで探してみる
浜松町/田町/芝公園エリアでVORT浜松町Ⅰに似た条件の物件
読込中...
| 取扱様態 | 仲介 |
|---|---|
| 取扱会社 | 株式会社 アットオフィス |