※このサイトに記載がある賃貸条件は、敷金・保証金などの預かり金を除き、別途消費税がかかります。
物件情報
設備詳細
| 空調 | 個別空調 |
|---|---|
| トイレ | - |
| 床仕様 | OA対応床(フリーアクセス) |
| エレベータ | 2 基 |
| 駐車場設備 | - |
| その他 | 新耐震基準 / 1階の物件 |
コットンニッセイの賃貸オフィス・事務所に関するお問い合わせ
コットンニッセイについて
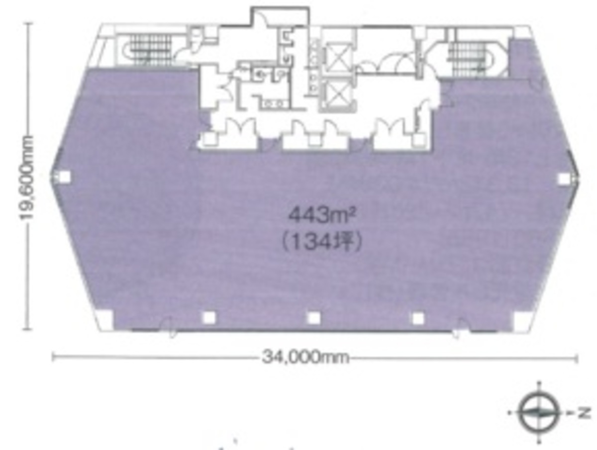
コットンニッセイビルは、大阪市西区靱本町に位置する存在感のある賃貸事務所物件です。1993年に竣工されたこのビルは、地上10階建てで、その堅牢なデザインと機能性がビジネス環境としての優位性を提供します。エレベーターは2基設置され、スムーズな移動を確保。オフィスビル内は、エントランスの石造りの内装が重厚で洗練された印象を与えます。また、共用部も良好に管理されており、入居者の快適さと利便性が徹底されています。 ビルのロケーションも大きな魅力となっており、四ツ橋筋沿いの角地に位置するため、アクセスが非常に便利です。最寄り駅は肥後橋駅ですが、その他にも本町駅が徒歩圏内にあるため、多方面からのアクセスが可能です。周辺には靭公園があり、緑豊かな環境が心地よいオフィスライフを提供してくれます。ビジネスの合間にリラックスできる自然環境が整っていることは、スタッフの働きやすさや生産性を向上させる要素となるでしょう。 ビルの付近には利便施設も充実しています。1階にはセブンイレブン 大阪靭公園東店があり、日々の必要な商品を簡単に手に入れることができます。さらに、徒歩2分の距離に吉野家肥後橋店があり、手軽に食事をとることも可能です。また、関西みらい銀行 大阪西支店も同じ通りに位置し、金融機関へのアクセスが容易です。 ビルはセキュリティ面でも安心です。機械警備システムが導入されており、入居者の安全をしっかりと守ります。このような安全性と利便性の両立が、入居企業の信頼を高めています。 コットンニッセイビルは、洗練されたビジネスアドレスとしての役割を果たしつつ、繁忙な都心部の利便性を享受できる魅力的なオプションです。オフィスの移転を考えている方や、新たな事業を立ち上げようとしている方には、最適な環境を提供できる一棟です。ぜひ、訪れてその潜在能力を実際に確かめてみてください。総合的に見て、都市部でのビジネス成功に必要な各種要素を兼ね備えたこの物件は、企業の成長をサポートする最適な選択肢となるでしょう。
コットンニッセイのこだわり
自分で探すより問い合わせる方が早いことがあります
WEB非公開物件があるから
オーナー様のご希望により「WEBでは非公開」にしている物件があります。 それらはWEBでいくら検索しても見つかりません。 先ずは条件などお知らせ頂けましたら非公開物件含め ピッタリのオフィスをご提案させて頂きます。 無理なお勧めはしておりませんので、お気軽にお問い合わせください。
対面でのご相談も受け付けております
ご来店も歓迎です
オフィス移転は社内・社外ともに非公開に行われることが殆どです。そのためアットオフィスでは、基本的に訪問によるコンサルティングを行っておりますが、ご来店の相談も歓迎です。お一人おひとりに親身にご対応させて頂きたい為、要予約とさせて頂いております。ご来店の際は先ずは下記よりご予約下さい。
募集終了のテナント区画
| 階数 | 坪数 | 賃料 + 共益費 | 敷金/礼金敷金 礼金 | 検討 |
|---|---|---|---|---|
| 2階 | 66坪 (218.18m²) | 募集終了 | - | - |
| 3階 | 42.27坪 (139.75m²) | 募集終了 | - | - |
| 5階 | 47.76坪 (157.89m²) | 募集終了 | - | - |
| 5階 | 42坪 (138.84m²) | 募集終了 | - | - |
| 5階 | 23.79坪 (78.66m²) | 募集終了 | - | - |
| 10階 | 41.73坪 (137.98m²) | 募集終了 | - | - |
読込中...
西区エリアでコットンニッセイに似た条件の物件
読込中...
| 取扱様態 | 仲介 |
|---|---|
| 取扱会社 | 株式会社 アットオフィス |