玉川台春喜ビル1階の賃貸情報
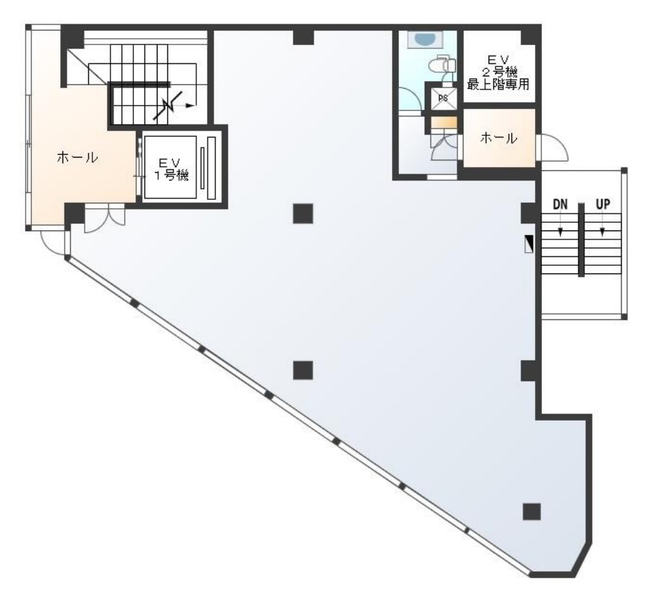
36.81 坪 (121.67m²)
※このサイトに記載がある賃貸条件は、敷金・保証金などの預かり金を除き、別途消費税がかかります。
玉川台春喜ビルの建物概要
設備詳細
| 空調 | 個別空調 |
|---|---|
| トイレ | - |
| 床仕様 | - |
| エレベータ | 2 基 |
| 駐車場設備 | 空無 |
| その他 | 24時間利用可 / 光ファイバー / 新耐震基準 / スケルトン / クリニック / 東京賃料が坪11000円以下 / 1階の物件 |
玉川台春喜ビル1階の賃貸オフィス・事務所に関するお問い合わせ
玉川台春喜ビルについて
玉川台春喜ビルは、世田谷区玉川台2丁目に位置し、田園都市線「用賀駅」から徒歩7分の場所にあります。また、大井町線および田園都市線「二子玉川駅」へは徒歩17分でアクセス可能です。地上6階建ての建物で、2基のエレベーターを備えています。24時間の利用が可能であるため、様々なワークスタイルやビジネスの運用方針に合わせた利用が考えられます。光ファイバーが導入されており、インターネット環境の整備も配慮されています。新耐震基準を満たした設計になっている点も特徴の一つです。オフィス空間として、また事業用の拠点として利用を検討する際に、アクセス方法や周囲の環境、建物内の移動のしやすさなど、さまざまな観点からご確認いただけます。詳細はお問い合わせください。
自分で探すより問い合わせる方が早いことがあります
WEB非公開物件があるから
オーナー様のご希望により「WEBでは非公開」にしている物件があります。 それらはWEBでいくら検索しても見つかりません。 先ずは条件などお知らせ頂けましたら非公開物件含め ピッタリのオフィスをご提案させて頂きます。 無理なお勧めはしておりませんので、お気軽にお問い合わせください。
対面でのご相談も受け付けております
ご来店も歓迎です
オフィス移転は社内・社外ともに非公開に行われることが殆どです。そのためアットオフィスでは、基本的に訪問によるコンサルティングを行っておりますが、ご来店の相談も歓迎です。お一人おひとりに親身にご対応させて頂きたい為、要予約とさせて頂いております。ご来店の際は先ずは下記よりご予約下さい。
世田谷区エリアで玉川台春喜ビルに似た条件の物件
読込中...
玉川台春喜ビルと同じ最寄駅の物件
読込中...
| 取扱様態 | 仲介 |
|---|---|
| 取扱会社 | 株式会社 アットオフィス |