※このサイトに記載がある賃貸条件は、敷金・保証金などの預かり金を除き、別途消費税がかかります。
物件情報
設備詳細
| 空調 | - |
|---|---|
| トイレ | - |
| 床仕様 | - |
| エレベータ | 1 基 |
| 駐車場設備 | - |
| その他 | 新耐震基準 / 機械警備 / 24時間利用可 |
神保町一丁目TSビルの賃貸オフィス・事務所に関するお問い合わせ
神保町一丁目TSビルについて
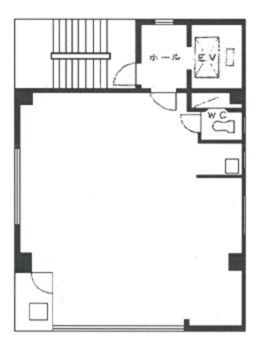
神保町1丁目TSビル(旧:杉山ビル)は、千代田区神田神保町1丁目に位置するオフィス賃貸物件であり、1985年に竣工した耐震性に優れたオフィスビルです。地上の赤レンガ調の外観は、レトロな雰囲気を醸し出しており、1階にはファミリーレストランが入居しています。これにより、日々多くの人々が出入りし、ビルの周囲には活気をもたらしています。また、小さなバルコニーが付設されており、専用部分内にトイレを備えるなど、テナントの利便性を考慮した設計がなされています。 神保町1丁目TSビルは、神保町駅から徒歩2分という至近距離に位置し、3駅以上を利用可能な交通の便の良さを持つ点が、この物件の最大の特徴の一つです。この立地条件は、ビジネスの機動性を高めることに直結し、テナント企業にとっては大きなメリットと言えます。さらに、ビルが面するすずらん通りは、コンビニエンスストア、飲食店、書店などが立ち並び、ビジネスマンだけでなく、近隣住民にも親しまれている商店街です。このように、杉山ビルはビジネスと生活の両方に寄り添う環境を提供しています。 ビルの設備面では、エレベーターを1機設置しており、日々の業務における快適な移動をサポートします。また、耐震性を考慮した構造は、テナント企業にとっての安心感にもつながる要素です。このように、杉山ビルは、その立地、設備、耐震性に加え、外観の魅力まで兼ね備えたオフィスビルとしての価値を有しています。 総じて、神保町1丁目TSビルは、優れた交通アクセス、賑わいと便利さを兼ね備えた立地、そしてビジネスに必要な設備が整った賃貸オフィスとして、多岐にわたる業種の企業にとって魅力的な選択肢であると言えるでしょう。特に、都心でのアクセスの良いオフィスを求める中小規模のビジネスに最適な物件です。
神保町一丁目TSビルのこだわり
自分で探すより問い合わせる方が早いことがあります
WEB非公開物件があるから
オーナー様のご希望により「WEBでは非公開」にしている物件があります。 それらはWEBでいくら検索しても見つかりません。 先ずは条件などお知らせ頂けましたら非公開物件含め ピッタリのオフィスをご提案させて頂きます。 無理なお勧めはしておりませんので、お気軽にお問い合わせください。
対面でのご相談も受け付けております
ご来店も歓迎です
オフィス移転は社内・社外ともに非公開に行われることが殆どです。そのためアットオフィスでは、基本的に訪問によるコンサルティングを行っておりますが、ご来店の相談も歓迎です。お一人おひとりに親身にご対応させて頂きたい為、要予約とさせて頂いております。ご来店の際は先ずは下記よりご予約下さい。
募集終了のテナント区画
| 階数 | 坪数 | 賃料 + 共益費 | 敷金/礼金敷金 礼金 | 検討 |
|---|---|---|---|---|
| B1階 | 21.68坪 (71.7m²) | 募集終了 | - | - |
| 2階 | 19.99坪 (66.11m²) | 募集終了 | - | - |
| 3階 | 19.99坪 (66.11m²) | 募集終了 | - | - |
読込中...
近くのエリアで探してみる
飯田橋/神保町/水道橋エリアで神保町一丁目TSビルに似た条件の物件
読込中...
| 取扱様態 | 仲介 |
|---|---|
| 取扱会社 | 株式会社 アットオフィス |