DEAREBISUビル4階の賃貸情報
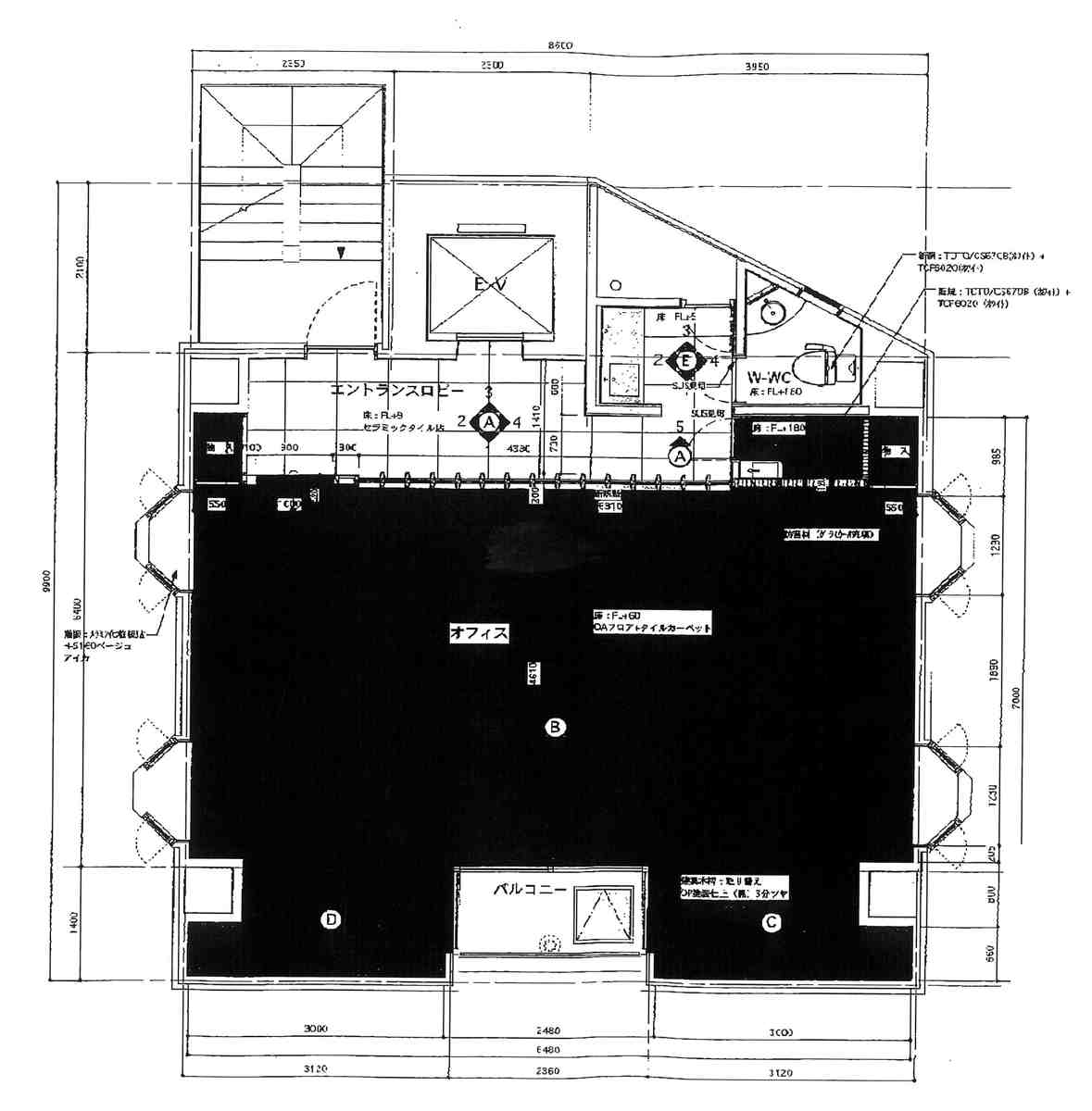
21.3 坪 (70.41m²)
※このサイトに記載がある賃貸条件は、敷金・保証金などの預かり金を除き、別途消費税がかかります。
DEAREBISUビルの建物概要
設備詳細
| 空調 | 個別空調 |
|---|---|
| トイレ | - |
| 床仕様 | OA対応床(フリーアクセス) |
| エレベータ | 1 基 |
| 駐車場設備 | - |
| その他 | 機械警備 / 24時間利用可 / デザイナーズ / 光ファイバー / 新耐震基準 / クリニック |
DEAREBISUビル4階の賃貸オフィス・事務所に関するお問い合わせ
DEAREBISUビルについて
DearEbisuビルは、東京都渋谷区恵比寿西1-32-14に位置する、デザイン性と機能性を兼ね備えた賃貸オフィスビルです。1987年に竣工し、地上10階建てのこの建物は、新耐震基準に適合した構造で、安全性にも配慮されています。特徴的なガラス張りの外観と丸い小窓が、この地域のランドマークとしても認知されるほどの存在感を放っています。 DearEbisuビルの最大の魅力は、その立地の優位性にあります。恵比寿駅からは徒歩わずか5分という駅近物件でありながら、代官山駅へも徒歩4分というアクセスの良さ。JR線や東京メトロ日比谷線といった複数の交通網を利用できることで、ビジネスの拠点としての機能性が非常に高いことがうかがえます。 ビル内の設備においても、DearEbisuビルは優れたスペックを誇ります。全面リニューアルを経て、最新のオフィス環境を実現。1フロアあたり約20坪の広々とした空間には、OAフロアが完備され、高速の光ファイバー接続も可能です。男女別のトイレを設けることで、快適なオフィス環境を提供しています。また、24時間利用可能なセキュリティシステム、機械警備を導入し、安全なビジネスの運営をサポートします。 ビル内には月極駐車場も完備されており、車を利用するビジネスマンにとっても大きな利点となります。エレベーターは1基設置されており、スムーズな移動を可能としています。 DearEbisuビルの立地、設備、安全性を考慮すると、このビルは多様なビジネスニーズに対応可能な理想的なオフィス空間を提供します。駒沢通りに面した視認性の高い立地は、店舗利用を考えるテナントにとっても魅力的です。各種業種での利用が相談可能であり、ビジネスの可能性を広げるための最適な環境がここにはあります。DearEbisuビルで、あなたのビジネスを次のレベルへと押し上げましょう。
自分で探すより問い合わせる方が早いことがあります
WEB非公開物件があるから
オーナー様のご希望により「WEBでは非公開」にしている物件があります。 それらはWEBでいくら検索しても見つかりません。 先ずは条件などお知らせ頂けましたら非公開物件含め ピッタリのオフィスをご提案させて頂きます。 無理なお勧めはしておりませんので、お気軽にお問い合わせください。
対面でのご相談も受け付けております
ご来店も歓迎です
オフィス移転は社内・社外ともに非公開に行われることが殆どです。そのためアットオフィスでは、基本的に訪問によるコンサルティングを行っておりますが、ご来店の相談も歓迎です。お一人おひとりに親身にご対応させて頂きたい為、要予約とさせて頂いております。ご来店の際は先ずは下記よりご予約下さい。
近くのエリアで探してみる
恵比寿/代官山/広尾エリアでDEAREBISUビルに似た条件の物件
読込中...
DEAREBISUビルと同じ最寄駅の物件
読込中...
| 取扱様態 | 仲介 |
|---|---|
| 取扱会社 | 株式会社 アットオフィス |