日本生命今橋ビル1階の賃貸情報
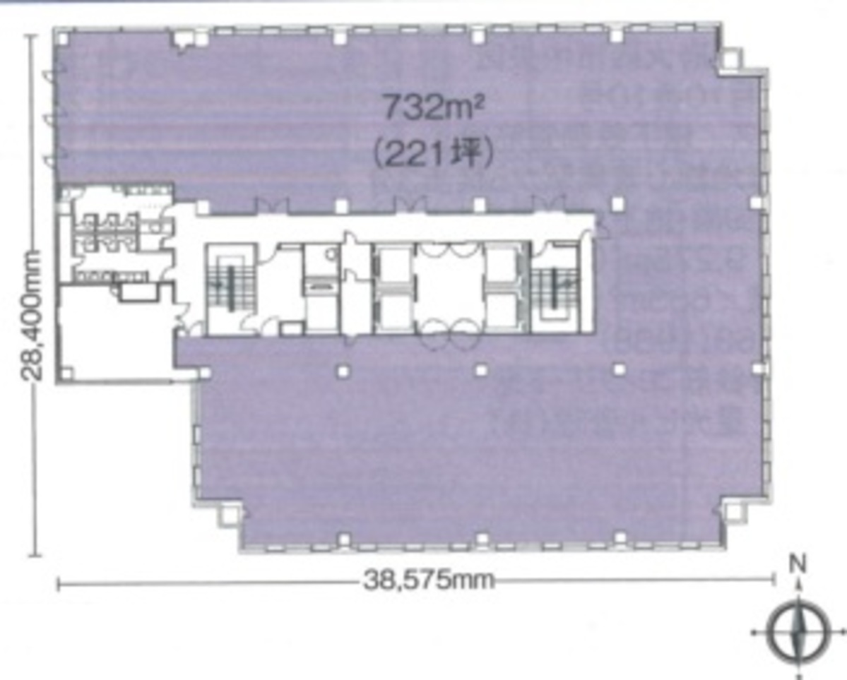
75.7 坪 (250.25m²)
※このサイトに記載がある賃貸条件は、敷金・保証金などの預かり金を除き、別途消費税がかかります。
日本生命今橋ビルの建物概要
設備詳細
| 空調 | - |
|---|---|
| トイレ | - |
| 床仕様 | - |
| エレベータ | - |
| 駐車場設備 | - |
| その他 | 新耐震基準 / 1階の物件 |
日本生命今橋ビル1階の賃貸オフィス・事務所に関するお問い合わせ
日本生命今橋ビルについて
日本生命今橋ビル(大阪市中央区今橋)は、1985年に竣工した賃貸オフィス物件です。地上14階建て、基準階坪数は約220坪で、広々としたオフィス空間を提供します。外観はブラウンを基調とした重厚感のあるデザインが特徴で、ビジネスの場にも最適な印象を与えます。 このビルは、エレベーターを5基設置しており、ビル内移動の円滑さを確保しています。また、敷地内には平面式駐車場5台と機械式駐車場40台を併設しており、利便性も抜群です。セキュリティ面では、機械警備を導入しており、安全性を確保しています。空調設備は個別空調を採用しており、それぞれの区画で温度調整が可能です。この柔軟性は、働く環境における快適さを大いに向上させ、オフィスの利用者にとって大きな魅力となります。 ビルの立地は非常に便利であり、大阪市の商業の中心地である中央区に位置しています。最寄りの淀屋橋駅から徒歩5分という恵まれたロケーションに加え、北浜駅、なにわ橋駅、大江橋駅も徒歩圏内にあります。また、大阪淀屋橋郵便局もすぐ近くにあり、ビジネス上の郵送業務にも最適です。周辺にはオフィスビルが立ち並び、多くの飲食店も点在しています。例えば、徒歩2分の場所にはセブンイレブン大阪今橋2丁目店、徒歩3分にはドトールコーヒーショップ高麗橋店があり、日々のちょっとした買い物やランチタイムに便利です。 このような好立地と優れた設備条件は、日本生命今橋ビルをオフィス移転や新規ビジネスの拠点、また新店舗の展開を検討する企業に絶好の選択肢とします。重厚で洗練された外観は、企業の信頼性を際立たせ、訪れる顧客やビジネスパートナーに好印象を与えるでしょう。オフィスのレイアウトも自由度が高く、業種を問わず様々なニーズに対応可能な柔軟性を持っています。ここにオフィスを構えることで、あらゆるビジネスシーンでの優位性を享受できることは間違いありません。日本生命今橋ビルは、御社のビジネスを次のステージへと導く理想的なオフィススペースを提供します。
自分で探すより問い合わせる方が早いことがあります
WEB非公開物件があるから
オーナー様のご希望により「WEBでは非公開」にしている物件があります。 それらはWEBでいくら検索しても見つかりません。 先ずは条件などお知らせ頂けましたら非公開物件含め ピッタリのオフィスをご提案させて頂きます。 無理なお勧めはしておりませんので、お気軽にお問い合わせください。
対面でのご相談も受け付けております
ご来店も歓迎です
オフィス移転は社内・社外ともに非公開に行われることが殆どです。そのためアットオフィスでは、基本的に訪問によるコンサルティングを行っておりますが、ご来店の相談も歓迎です。お一人おひとりに親身にご対応させて頂きたい為、要予約とさせて頂いております。ご来店の際は先ずは下記よりご予約下さい。
中央区エリアで日本生命今橋ビルに似た条件の物件
読込中...
日本生命今橋ビルと同じ最寄駅の物件
読込中...
| 取扱様態 | 仲介 |
|---|---|
| 取扱会社 | 株式会社 アットオフィス |