ボナールイズミビル1階の賃貸情報
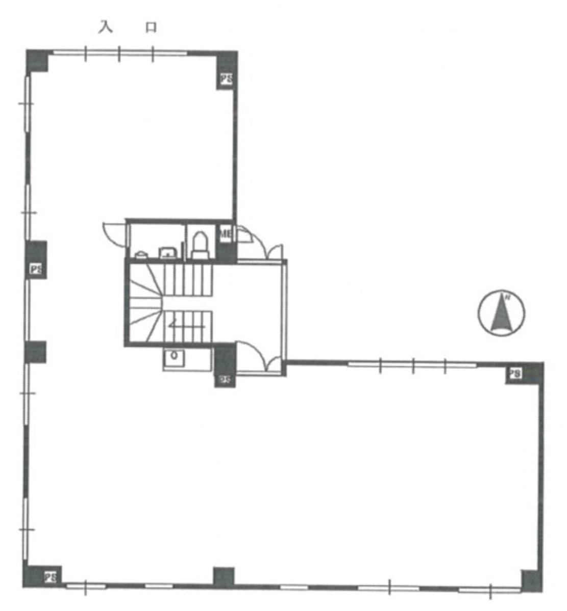
39.85 坪 (131.76m²)
※このサイトに記載がある賃貸条件は、敷金・保証金などの預かり金を除き、別途消費税がかかります。
ボナールイズミビルの建物概要
設備詳細
| 空調 | - |
|---|---|
| トイレ | 男女別トイレ室内 / 男女別トイレ室外 |
| 床仕様 | - |
| エレベータ | - |
| 駐車場設備 | 空有 |
| その他 | 新耐震基準 / クリニック / 東京賃料が坪11000円以下 / 1階の物件 |
ボナールイズミビル1階の賃貸オフィス・事務所に関するお問い合わせ
ボナールイズミビルについて
杉並区和泉1丁目に位置する「ボナールイズミビル」は、京王線「代田橋駅」から徒歩7分、さらに「方南町駅」や「笹塚駅」も利用可能な立地にございます。複数路線の駅が徒歩圏内となり、事業拠点として交通手段の選択肢が広がる環境です。建物は地上5階建てで、ワンフロアもしくは分割での利用など、事業規模やレイアウトの多様な検討が可能です。周辺は住宅とオフィスが混在するエリアであり、落ち着いた雰囲気の中に事務所や事業所を構えることができます。新耐震基準を満たしている建物となっており、安心してご利用いただけます。各階・区画の詳細や利用可能な用途につきましては、どうぞお問い合わせください。
自分で探すより問い合わせる方が早いことがあります
WEB非公開物件があるから
オーナー様のご希望により「WEBでは非公開」にしている物件があります。 それらはWEBでいくら検索しても見つかりません。 先ずは条件などお知らせ頂けましたら非公開物件含め ピッタリのオフィスをご提案させて頂きます。 無理なお勧めはしておりませんので、お気軽にお問い合わせください。
対面でのご相談も受け付けております
ご来店も歓迎です
オフィス移転は社内・社外ともに非公開に行われることが殆どです。そのためアットオフィスでは、基本的に訪問によるコンサルティングを行っておりますが、ご来店の相談も歓迎です。お一人おひとりに親身にご対応させて頂きたい為、要予約とさせて頂いております。ご来店の際は先ずは下記よりご予約下さい。
杉並区エリアでボナールイズミビルに似た条件の物件
読込中...
ボナールイズミビルと同じ最寄駅の物件
読込中...
| 取扱様態 | 仲介 |
|---|---|
| 取扱会社 | 株式会社 アットオフィス |