※このサイトに記載がある賃貸条件は、敷金・保証金などの預かり金を除き、別途消費税がかかります。
物件情報
設備詳細
| 空調 | - |
|---|---|
| トイレ | - |
| 床仕様 | - |
| エレベータ | 1 基 |
| 駐車場設備 | - |
| その他 | 機械警備 / 24時間利用可 / 光ファイバー / 新耐震基準 |
八丁堀スクエアの賃貸オフィス・事務所に関するお問い合わせ
八丁堀スクエアについて
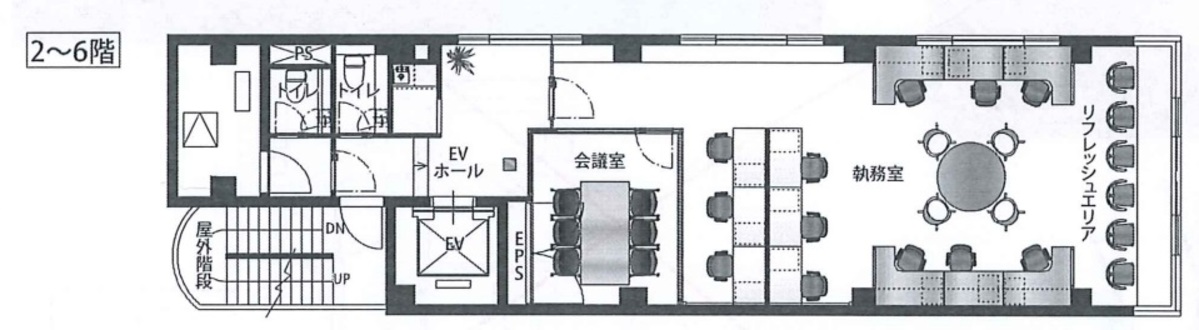
八丁堀スクエアは、東京都中央区新川に位置する、1991年竣工の賃貸オフィスビルです。このビルは、亀島川を臨むリバーサイドの立地という、ビジネスの場においても稀有な自然美を享受することができる特別な位置にあります。2017年には大規模なリニューアルが行われ、内装デザインの高いセンスと機能性を兼ね備えています。 立地については、JR京葉線の八丁堀駅からすぐ、徒歩5分のアクセスの良さがあります。また、茅場町駅も徒歩圏内にあるため、複数の路線を利用することが可能です。周辺には飲食店やコンビニが充実しており、日々のビジネスライフを支える環境が整っています。ビルの近くには亀島川沿いのリバーサイドがあり、心地よい散歩や気分転換にも最適です。 ビルの特徴として、ワンフロアワンテナントの構造を採用しており、プライバシーが保たれた環境で仕事に集中することが可能です。各階に男女別トイレが貸室外に設置され、このような設備は、テナントの利便性を高めるものであり、ビル内で快適な勤務環境を提供します。 オフィス内装にはデザイン性が高く、会議室もガラスのパーテーションによって狭さを感じさせない造りとなっています。また、個別空調システムにより、各テナントが快適な温度設定を個別に管理できる点も魅力の一つです。天井の高さは最大3,300mmと開放感があり、屋上にはテナント専用のテラスも設置されています。こうした設備は、働く人々の心身の健康を考慮したうえでの工夫が凝らされています。 セキュリティ面では、機械警備と夜間オートロックシステムを導入しており、テナントの安全をしっかりと守ります。エレベーターは1基設置されており、エントランスはリニューアルされ、明るく清潔感のある印象を与えます。 八丁堀スクエアは、ビジネスを行う上での利便性、働く人々の快適性、そして安全性を兼ね備えた賃貸オフィスビルです。自然の美しさを身近に感じながら、ビジネスの成功へと導くための最高の環境を提供します。どうぞ、この機会に八丁堀スクエアの魅力をご体感ください。
八丁堀スクエアのこだわり
自分で探すより問い合わせる方が早いことがあります
WEB非公開物件があるから
オーナー様のご希望により「WEBでは非公開」にしている物件があります。 それらはWEBでいくら検索しても見つかりません。 先ずは条件などお知らせ頂けましたら非公開物件含め ピッタリのオフィスをご提案させて頂きます。 無理なお勧めはしておりませんので、お気軽にお問い合わせください。
対面でのご相談も受け付けております
ご来店も歓迎です
オフィス移転は社内・社外ともに非公開に行われることが殆どです。そのためアットオフィスでは、基本的に訪問によるコンサルティングを行っておりますが、ご来店の相談も歓迎です。お一人おひとりに親身にご対応させて頂きたい為、要予約とさせて頂いております。ご来店の際は先ずは下記よりご予約下さい。
募集終了のテナント区画
| 階数 | 坪数 | 賃料 + 共益費 | 敷金/礼金敷金 礼金 | 検討 |
|---|---|---|---|---|
| 1階 | 21.43坪 (70.84m²) | 募集終了 | - | - |
| 2階 | 27.95坪 (92.4m²) | 募集終了 | - | - |
| 4階 | 27.95坪 (92.4m²) | 募集終了 | - | - |
| 5階 | 27.95坪 (92.4m²) | 募集終了 | - | - |
| 6階 | 27.95坪 (92.4m²) | 募集終了 | - | - |
| 7階 | 25.83坪 (85.4m²) | 募集終了 | - | - |
読込中...
近くのエリアで探してみる
茅場町/新川/八丁堀エリアで八丁堀スクエアに似た条件の物件
読込中...
| 取扱様態 | 仲介 |
|---|---|
| 取扱会社 | 株式会社 アットオフィス |