※このサイトに記載がある賃貸条件は、敷金・保証金などの預かり金を除き、別途消費税がかかります。
物件情報
設備詳細
| 空調 | - |
|---|---|
| トイレ | - |
| 床仕様 | - |
| エレベータ | 1 基 |
| 駐車場設備 | - |
| その他 | 光ファイバー / 機械警備 / 新耐震基準 |
アイエフ外神田ビルの賃貸オフィス・事務所に関するお問い合わせ
アイエフ外神田ビルについて
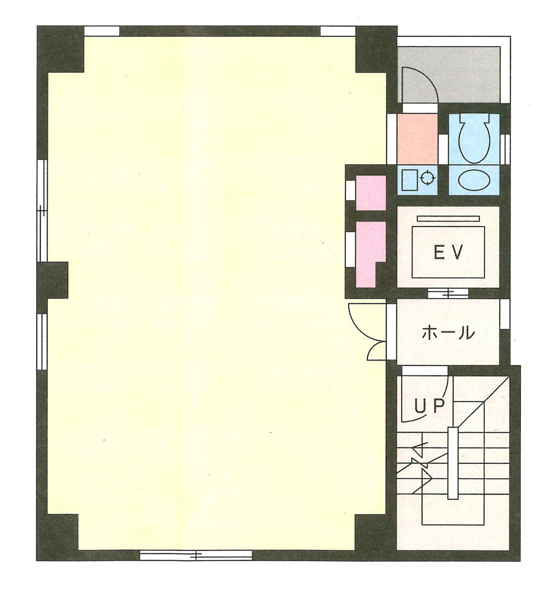
アイエフ外神田ビルは、東京都千代田区外神田6丁目に位置しており、その立地と施設の品質は、企業がオフィスを構えるにあたって最上の選択となるでしょう。1988年に竣工したこの8階建てのオフィスビルは、基準階約20坪の賃貸スペースを提供しており、特にデザイン性の高い長方形の室内は、レイアウトの自由度が高く、企業のニーズに柔軟に対応します。 ビルの最大の特徴の一つは、2面または3面採光の部屋が多いことです。これにより、自然光がたっぷりと室内に入り込み、作業環境を明るく快適に保ちます。さらに、ビルは蔵前橋通りに面しており、窓からは並木道の美しい景色を望むことができます。この開放感あふれる眺望は、日々の業務に清新な刺激をもたらし、働く人々の創造性と生産性を高めることでしょう。 さらに、このオフィスビルは、個別空調システムを完備しています。これにより、各テナントは自社のニーズに合わせて温度管理ができ、快適なオフィス環境を実現します。安全面においても、機械警備システムが導入されており、テナント企業は安全性の高い環境で業務に専念することができます。 立地においてもアイエフ外神田ビルは優れています。最寄り駅の末広町駅をはじめ、湯島駅や御茶ノ水駅など、複数の駅が徒歩圏内にあり、アクセスの良さはビジネスにおいて大きな利点となります。さらに、周辺には飲食店やコンビニが充実しており、ビジネスだけでなく日常生活の利便性も高い点が魅力です。 アイエフ外神田ビルは、その高品質な施設、豊かな自然光、優れた立地、そして快適なオフィス環境を提供することで、企業の皆様がビジネスを成功に導くための最適な場所となるでしょう。高いグレード感と綺麗な環境、そしてビジネスの効率性を重視する企業にとって、アイエフ外神田ビルは理想的な選択肢です。
アイエフ外神田ビルのこだわり
自分で探すより問い合わせる方が早いことがあります
WEB非公開物件があるから
オーナー様のご希望により「WEBでは非公開」にしている物件があります。 それらはWEBでいくら検索しても見つかりません。 先ずは条件などお知らせ頂けましたら非公開物件含め ピッタリのオフィスをご提案させて頂きます。 無理なお勧めはしておりませんので、お気軽にお問い合わせください。
対面でのご相談も受け付けております
ご来店も歓迎です
オフィス移転は社内・社外ともに非公開に行われることが殆どです。そのためアットオフィスでは、基本的に訪問によるコンサルティングを行っておりますが、ご来店の相談も歓迎です。お一人おひとりに親身にご対応させて頂きたい為、要予約とさせて頂いております。ご来店の際は先ずは下記よりご予約下さい。
募集終了のテナント区画
| 階数 | 坪数 | 賃料 + 共益費 | 敷金/礼金敷金 礼金 | 検討 |
|---|---|---|---|---|
| 2階 | 19.39坪 (64.1m²) | 募集終了 | - | - |
| 3階 | 20.35坪 (67.27m²) | 募集終了 | - | - |
| 4階 | 20.35坪 (67.27m²) | 募集終了 | - | - |
| 6階 | 20.35坪 (67.27m²) | 募集終了 | - | - |
| 7階 | 20.35坪 (67.27m²) | 募集終了 | - | - |
| 8階 | 20.35坪 (67.27m²) | 募集終了 | - | - |
読込中...
神田/秋葉原エリアでアイエフ外神田ビルに似た条件の物件
読込中...
| 取扱様態 | 仲介 |
|---|---|
| 取扱会社 | 株式会社 アットオフィス |