※このサイトに記載がある賃貸条件は、敷金・保証金などの預かり金を除き、別途消費税がかかります。
物件情報
設備詳細
| 空調 | - |
|---|---|
| トイレ | - |
| 床仕様 | - |
| エレベータ | 5 基 |
| 駐車場設備 | - |
| その他 | 機械警備 / 新耐震基準 |
並木館の賃貸オフィス・事務所に関するお問い合わせ
並木館について
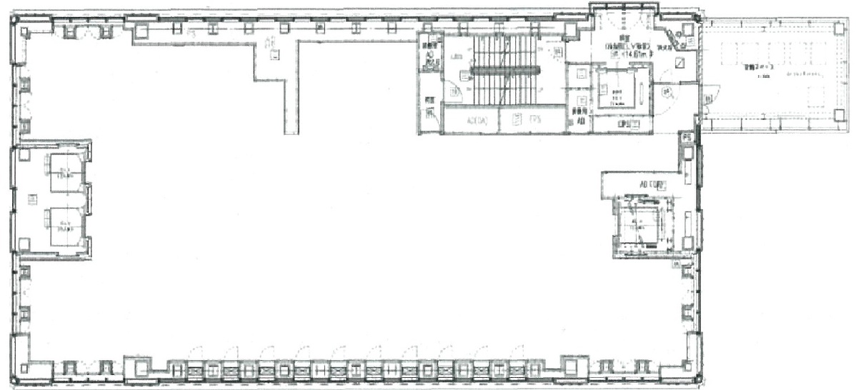
並木館ビル、銀座4丁目の中核をなすこの堂々たるオフィスビルは、その外観からして一目置かれる存在です。地上10階、地下3階建てのこのビルは、格調高く、洗練されたデザインが特徴で、特に基準階面積116.61坪の賃貸オフィススペースは、その広々とした空間と柔軟なレイアウトが魅力的です。その為、様々なビジネスニーズに合わせてカスタマイズ可能です。 並木館ビルは、エレベーターが5機も設置されており、ビル内の移動のスムーズさを保証します。これは、大規模なオフィスビルにおいて非常に重要な要素であり、テナントやその訪問者たちにとって大きな利点となります。 立地においても、並木館ビルは銀座4丁目という、東京でも最も活気のあるビジネス・ショッピングエリアの中心に位置しています。松屋通りと並木通りに面するこの場所は、有名ブランドのショップやショールームが立ち並び、高い人通りが保証されています。さらに、オシャレなカフェやレストランが至近距離にあり、ビジネスアフターの憩いの場としても最適です。 交通の便もまた、並木館ビルの大きなメリットです。最寄り駅である銀座駅を始め、JR線の有楽町駅など複数の駅が徒歩圏内にあり、東京都内はもちろん、都外からのアクセスも非常に便利です。 内装に目を向けると、高級感溢れる石造りのエレベーターホールが、訪れる全ての人々を優雅な気分にさせます。そして、低層階はガラス張りでデザインされており、明るく開放的な空間を提供しています。 このように、並木館ビルは、その立地の良さ、スペックの高さ、そして設備の充実度において、ビジネスの拠点として最適な条件を備えています。このビルが提供する高いグレード感と快適な環境は、あなたのビジネスを成功へと導くでしょう。
並木館のこだわり
自分で探すより問い合わせる方が早いことがあります
WEB非公開物件があるから
オーナー様のご希望により「WEBでは非公開」にしている物件があります。 それらはWEBでいくら検索しても見つかりません。 先ずは条件などお知らせ頂けましたら非公開物件含め ピッタリのオフィスをご提案させて頂きます。 無理なお勧めはしておりませんので、お気軽にお問い合わせください。
対面でのご相談も受け付けております
ご来店も歓迎です
オフィス移転は社内・社外ともに非公開に行われることが殆どです。そのためアットオフィスでは、基本的に訪問によるコンサルティングを行っておりますが、ご来店の相談も歓迎です。お一人おひとりに親身にご対応させて頂きたい為、要予約とさせて頂いております。ご来店の際は先ずは下記よりご予約下さい。
募集終了のテナント区画
| 階数 | 坪数 | 賃料 + 共益費 | 敷金/礼金敷金 礼金 | 検討 |
|---|---|---|---|---|
| - | 116.61坪 (385.49m²) | 募集終了 | - | - |
| 6階 | 116.61坪 (385.48m²) | 募集終了 | - | - |
| 9階 | 117.99坪 (390.04m²) | 募集終了 | - | - |
読込中...
銀座エリアで並木館に似た条件の物件
読込中...
| 取扱様態 | 仲介 |
|---|---|
| 取扱会社 | 株式会社 アットオフィス |