広小路ESビルの賃料条件
| 階数 | 坪数 | 賃料 + 共益費 | 敷金/礼金敷金 礼金 | 検討 |
|---|---|---|---|---|
| 2階 | 69.62坪 (229.52m²) | お問合せ下さい (坪:-) | 12ヶ月 無12ヶ月/無 | |
| 4階 | 58.94坪 (194.84m²) | お問合せ下さい (坪:-) | 12ヶ月 無12ヶ月/無 | |
| 6階 | 24.3坪 (80.36m²) | お問合せ下さい (坪:-) | 8ヶ月 無8ヶ月/無 | |
| 7階 | 15.29坪 (50.55m²) | お問合せ下さい (坪:-) | 10ヶ月 無10ヶ月/無 |
※このサイトに記載がある賃貸条件は、敷金・保証金などの預かり金を除き、別途消費税がかかります。
物件情報
設備詳細
| 空調 | 個別空調 |
|---|---|
| トイレ | - |
| 床仕様 | OA対応床(フリーアクセス) |
| エレベータ | 2 基 |
| 駐車場設備 | 空有 |
| その他 | 新耐震基準 |
広小路ESビルの賃貸オフィス・事務所に関するお問い合わせ
広小路ESビルについて
広小路ESは、名駅南1丁目にあるオフィスビルです。名古屋駅から徒歩7分の駅近物件です。1990年に竣工しました。鉄骨鉄筋コンクリート造により耐震性に優れています。床下にケーブルを納められるOAフロアで、すっきりとした空間が保てます。エレベーターが2基あります。個別空調付きのため、管理しやすくコスト削減になります。男女別トイレがあります。駐車場があります。周辺には飲食店やコンビニ、銀行があり、急用時も困りません。郵便局やバス停が近いため、移動時間も短く済ませられます。商業地の大通りに面しているため、利便性の良いエリアです。
広小路ESビルのこだわり
自分で探すより問い合わせる方が早いことがあります
WEB非公開物件があるから
オーナー様のご希望により「WEBでは非公開」にしている物件があります。 それらはWEBでいくら検索しても見つかりません。 先ずは条件などお知らせ頂けましたら非公開物件含め ピッタリのオフィスをご提案させて頂きます。 無理なお勧めはしておりませんので、お気軽にお問い合わせください。
対面でのご相談も受け付けております
ご来店も歓迎です
オフィス移転は社内・社外ともに非公開に行われることが殆どです。そのためアットオフィスでは、基本的に訪問によるコンサルティングを行っておりますが、ご来店の相談も歓迎です。お一人おひとりに親身にご対応させて頂きたい為、要予約とさせて頂いております。ご来店の際は先ずは下記よりご予約下さい。
募集終了のテナント区画
| 階数 | 坪数 | 賃料 + 共益費 | 敷金/礼金敷金 礼金 | 検討 |
|---|---|---|---|---|
| B1階 | 29.06坪 (96.06m²) | 募集終了 | - | - |
| 1階 | 54.65坪 (180.66m²) | 募集終了 | - | - |
| 1階 | 34.3坪 (113.39m²) | 募集終了 | - | - |
| 1階 | 15.29坪 (50.55m²) | 募集終了 | - | - |
| 2階 | 40.43坪 (133.65m²) | 募集終了 | - | - |
| 2階 | 81.11坪 (268.13m²) | 募集終了 | - | - |
| 2階 | 40.01坪 (132.25m²) | 募集終了 | - | - |
| 3階 | 77.55坪 (256.35m²) | 募集終了 | - | - |
| 3階 | 40.43坪 (133.65m²) | 募集終了 | - | - |
| 3階 | 40.65坪 (134.38m²) | 募集終了 | - | - |
| 3階 | 40坪 (132.23m²) | 募集終了 | - | - |
| 4階 | 81.11坪 (268.13m²) | 募集終了 | - | - |
| 4階 | 40.18坪 (132.83m²) | 募集終了 | - | - |
| 5階 | 77.11坪 (254.9m²) | 募集終了 | - | - |
| 5階 | 67.82坪 (224.19m²) | 募集終了 | - | - |
| 5階 | 33.49坪 (110.72m²) | 募集終了 | - | - |
| 6階 | 33.49坪 (110.71m²) | 募集終了 | - | - |
| 6階 | 49.62坪 (164.03m²) | 募集終了 | - | - |
| 6階 | 43.59坪 (144.09m²) | 募集終了 | - | - |
| 6階 | 77.11坪 (254.91m²) | 募集終了 | - | - |
| 7階 | 77.11坪 (254.9m²) | 募集終了 | - | - |
| 7階 | 49.62坪 (164.03m²) | 募集終了 | - | - |
| 7階 | 33.58坪 (111m²) | 募集終了 | - | - |
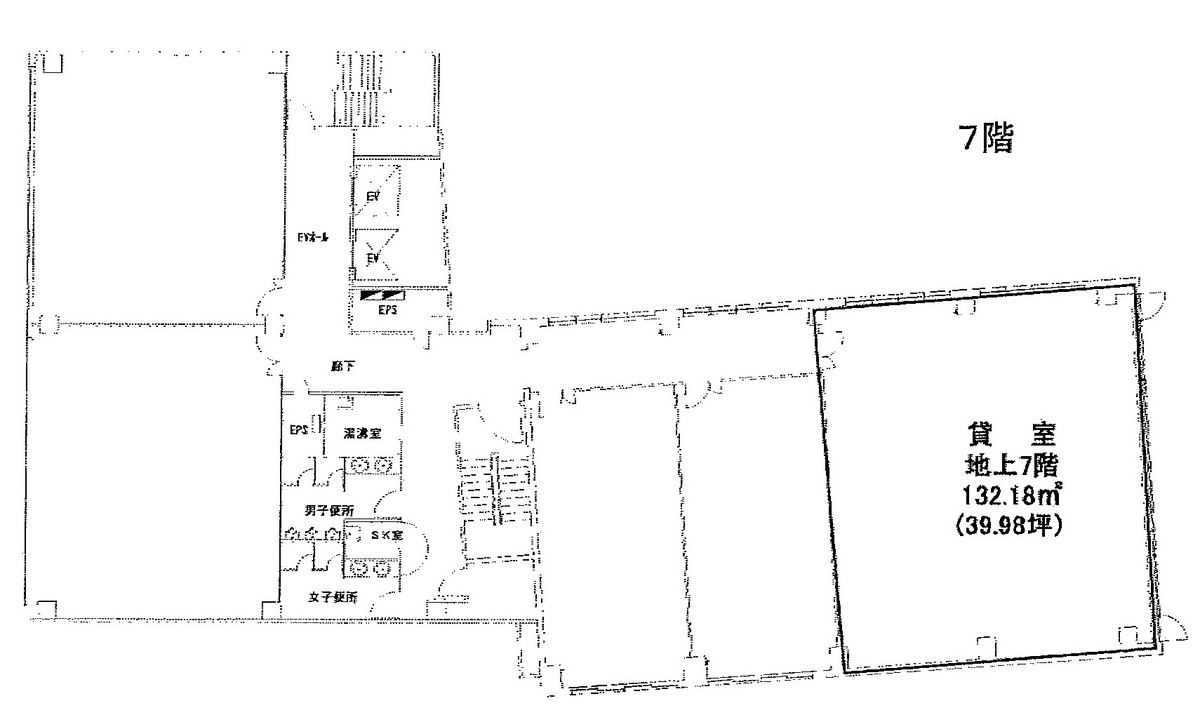
| 7階 | 39.98坪 (132.18m²) | 募集終了 | - | - |
| 8階 | 77.11坪 (254.9m²) | 募集終了 | - | - |
| 8階 | 49.62坪 (164.03m²) | 募集終了 | - | - |
| 8階 | 25.81坪 (85.32m²) | 募集終了 | - | - |
| 8階 | 25.79坪 (85.26m²) | 募集終了 | - | - |
| 9階 | 77.11坪 (254.91m²) | 募集終了 | - | - |
読込中...
中村区エリアで広小路ESビルに似た条件の物件
読込中...
| 取扱様態 | 仲介 |
|---|---|
| 取扱会社 | 株式会社 アットオフィス |