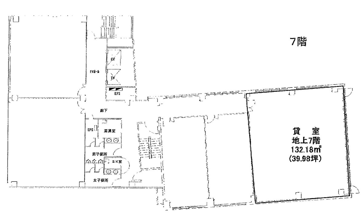
広小路ESビル7階の賃貸情報
39.98 坪 (132.18m²)
※このサイトに記載がある賃貸条件は、敷金・保証金などの預かり金を除き、別途消費税がかかります。
広小路ESビルの建物概要
設備詳細
| 空調 | 個別空調 |
|---|---|
| トイレ | - |
| 床仕様 | OA対応床(フリーアクセス) |
| エレベータ | 2 基 |
| 駐車場設備 | 空有 |
| その他 | 新耐震基準 |
広小路ESビル7階の賃貸オフィス・事務所に関するお問い合わせ
広小路ESビルについて
広小路ESは、名駅南1丁目にあるオフィスビルです。名古屋駅から徒歩7分の駅近物件です。1990年に竣工しました。鉄骨鉄筋コンクリート造により耐震性に優れています。床下にケーブルを納められるOAフロアで、すっきりとした空間が保てます。エレベーターが2基あります。個別空調付きのため、管理しやすくコスト削減になります。男女別トイレがあります。駐車場があります。周辺には飲食店やコンビニ、銀行があり、急用時も困りません。郵便局やバス停が近いため、移動時間も短く済ませられます。商業地の大通りに面しているため、利便性の良いエリアです。
広小路ESビルのこだわり
自分で探すより問い合わせる方が早いことがあります
WEB非公開物件があるから
オーナー様のご希望により「WEBでは非公開」にしている物件があります。 それらはWEBでいくら検索しても見つかりません。 先ずは条件などお知らせ頂けましたら非公開物件含め ピッタリのオフィスをご提案させて頂きます。 無理なお勧めはしておりませんので、お気軽にお問い合わせください。
対面でのご相談も受け付けております
ご来店も歓迎です
オフィス移転は社内・社外ともに非公開に行われることが殆どです。そのためアットオフィスでは、基本的に訪問によるコンサルティングを行っておりますが、ご来店の相談も歓迎です。お一人おひとりに親身にご対応させて頂きたい為、要予約とさせて頂いております。ご来店の際は先ずは下記よりご予約下さい。
中村区エリアで広小路ESビルに似た条件の物件
読込中...
広小路ESビルと同じ最寄駅の物件
読込中...
| 取扱様態 | 仲介 |
|---|---|
| 取扱会社 | 株式会社 アットオフィス |