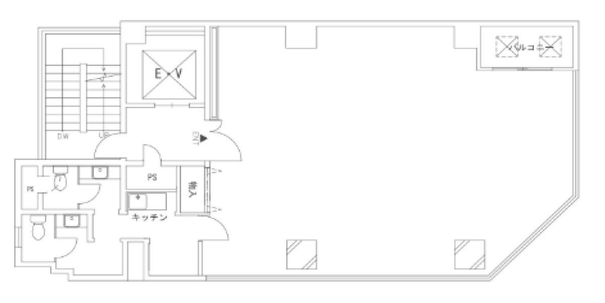
北浜山富ビル2階の賃貸情報
28.63 坪 (94.64m²)
286,300円 (坪:10,000 円)
※このサイトに記載がある賃貸条件は、敷金・保証金などの預かり金を除き、別途消費税がかかります。
北浜山富ビルの建物概要
設備詳細
| 空調 | - |
|---|---|
| トイレ | - |
| 床仕様 | - |
| エレベータ | - |
| 駐車場設備 | - |
| その他 | クリニック |
北浜山富ビル2階の賃貸オフィス・事務所に関するお問い合わせ
北浜山富ビルについて
「山富ビル」は、一フロア全体を一つのテナントが占有可能なオフィスビルです。このビルは十分なプライバシーと独立性を保てるのが魅力です。角地に位置しており、採光に優れた設計となっているため、オフィス内は自然光がたっぷりと差し込み、作業環境は常に明るく保たれます。地下鉄堺筋線「北浜」駅からわずか徒歩2分というアクセスの良さも、日々の通勤において大きな利点となります。 ビル内の設備は、現代のオフィスが求める高いスタンダードに合わせて整っています。全フロアがワンテナント制を採用しているため、各テナントは自由に空間をカスタマイズすることが可能です。これにより、独自のブランドイメージに合ったオフィス環境を作り出すことができます。また、ビルはセキュリティシステムも完備しており、入退館管理がしっかりと行われていますので、安全性にも配慮されています。 山富ビルの周辺には、各種ビジネスサポートに必要な施設が充実しています。主要な金融機関や郵便局、印刷会社、飲食店がすぐ近くにあり、日常の業務に必要なサービスを手軽に利用できます。さらに、北浜エリアはビジネスの中心地としても知られており、多くの企業が集まる地域です。そのため、ビジネスネットワークを広げる上でも絶好のロケーションと言えるでしょう。 是非1度ご内見ください。
北浜山富ビルのこだわり
自分で探すより問い合わせる方が早いことがあります
WEB非公開物件があるから
オーナー様のご希望により「WEBでは非公開」にしている物件があります。 それらはWEBでいくら検索しても見つかりません。 先ずは条件などお知らせ頂けましたら非公開物件含め ピッタリのオフィスをご提案させて頂きます。 無理なお勧めはしておりませんので、お気軽にお問い合わせください。
対面でのご相談も受け付けております
ご来店も歓迎です
オフィス移転は社内・社外ともに非公開に行われることが殆どです。そのためアットオフィスでは、基本的に訪問によるコンサルティングを行っておりますが、ご来店の相談も歓迎です。お一人おひとりに親身にご対応させて頂きたい為、要予約とさせて頂いております。ご来店の際は先ずは下記よりご予約下さい。
中央区エリアで北浜山富ビルに似た条件の物件
読込中...
北浜山富ビルと同じ最寄駅の物件
読込中...
| 取扱様態 | 仲介 |
|---|---|
| 取扱会社 | 株式会社 アットオフィス |