フォーキャスト市ヶ谷ビル4階の賃貸情報
面積
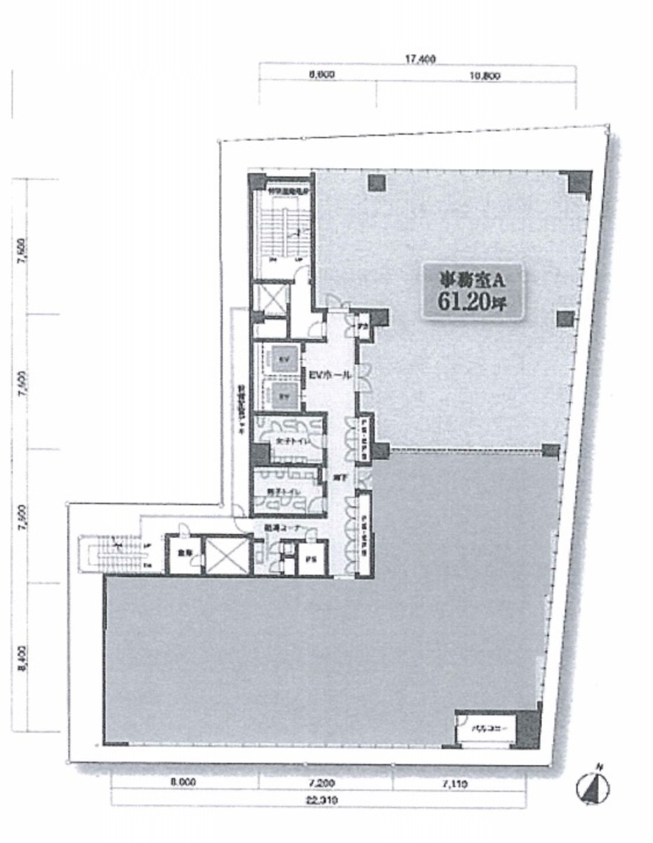
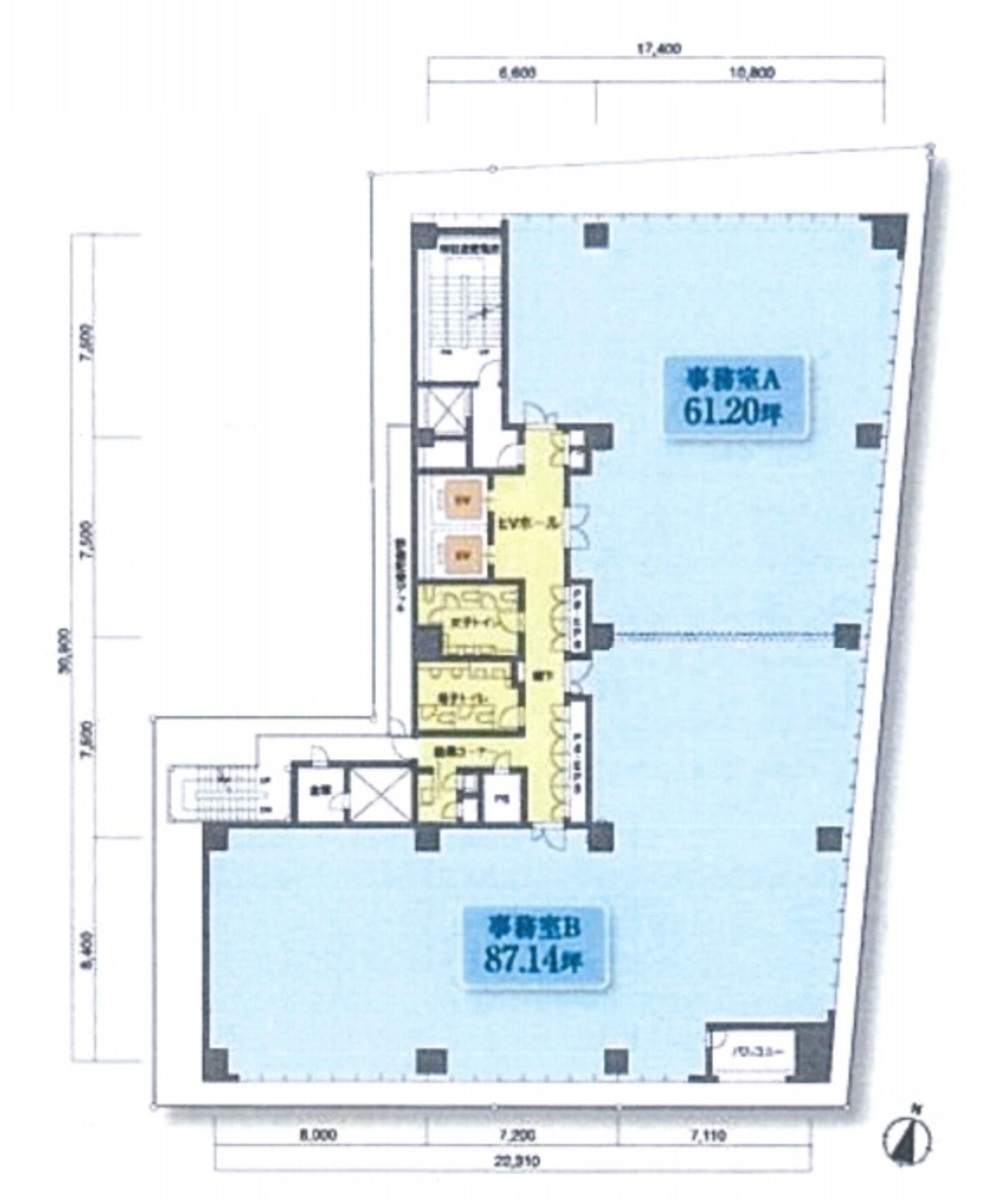
61.2 坪 (202.31m²)
賃料
共益費-
敷金 / 礼金 / 保証金-
償却-
更新料-
※このサイトに記載がある賃貸条件は、敷金・保証金などの預かり金を除き、別途消費税がかかります。
フォーキャスト市ヶ谷ビルの建物概要
設備詳細
| 空調 | 個別空調 |
|---|---|
| トイレ | - |
| 床仕様 | OA対応床(フリーアクセス) |
| エレベータ | 2 基 |
| 駐車場設備 | 空有 |
| その他 | 新耐震基準 |
フォーキャスト市ヶ谷ビル4階の賃貸オフィス・事務所に関するお問い合わせ
フォーキャスト市ヶ谷ビルについて
ビルのおすすめポイント フォーキャスト市ケ谷ビルは新築、ハイスペックオフィス、靖国通り面す市ヶ谷駅から徒歩2分の駅近物件です。3駅以上利用できる好立地です。2009年に竣工の築浅オフィスビルです。機械警備完備。
フォーキャスト市ヶ谷ビルのこだわり
自分で探すより問い合わせる方が早いことがあります
WEB非公開物件があるから
オーナー様のご希望により「WEBでは非公開」にしている物件があります。 それらはWEBでいくら検索しても見つかりません。 先ずは条件などお知らせ頂けましたら非公開物件含め ピッタリのオフィスをご提案させて頂きます。 無理なお勧めはしておりませんので、お気軽にお問い合わせください。
WEBから条件問い合わせをする(無料)
対面でのご相談も受け付けております
ご来店も歓迎です
オフィス移転は社内・社外ともに非公開に行われることが殆どです。そのためアットオフィスでは、基本的に訪問によるコンサルティングを行っておりますが、ご来店の相談も歓迎です。お一人おひとりに親身にご対応させて頂きたい為、要予約とさせて頂いております。ご来店の際は先ずは下記よりご予約下さい。
来店予約をする
近くのエリアで探してみる
エリア
市ヶ谷/神楽坂/飯田橋エリアでフォーキャスト市ヶ谷ビルに似た条件の物件
読込中...
フォーキャスト市ヶ谷ビルと同じ最寄駅の物件
読込中...
| 取扱様態 | 仲介 |
|---|---|
| 取扱会社 | 株式会社 アットオフィス |