※このサイトに記載がある賃貸条件は、敷金・保証金などの預かり金を除き、別途消費税がかかります。
物件情報
設備詳細
| 空調 | 個別空調 |
|---|---|
| トイレ | 男女別トイレ室内 |
| 床仕様 | OA対応床(フリーアクセス) |
| エレベータ | 1 基 |
| 駐車場設備 | - |
| その他 | デザイナーズ / 新耐震基準 / 機械警備 / クリニック |
ORIX恵比寿西ビルの賃貸オフィス・事務所に関するお問い合わせ
ORIX恵比寿西ビルについて
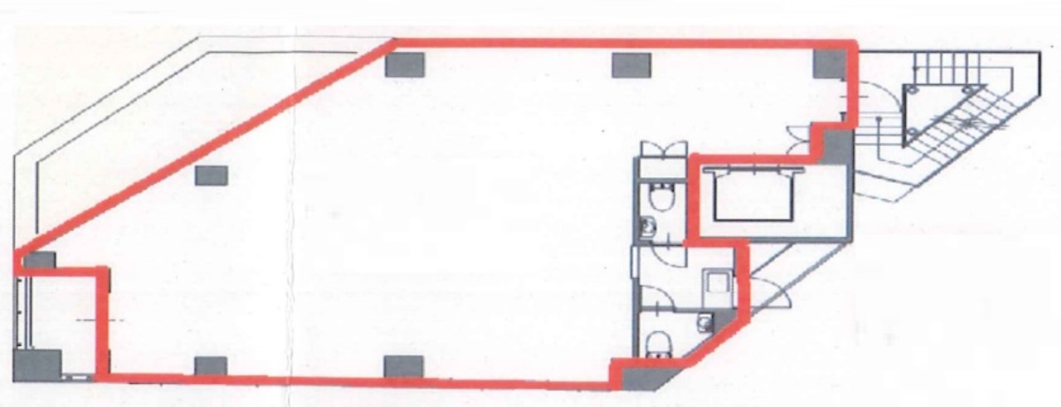
オリックス恵比寿西ビルは、東京都渋谷区恵比寿西2-8-10に位置する魅力的なデザイナーズ賃貸オフィスビルです。この物件は、2009年に新耐震基準で竣工された、地上6階建て(地下1階含む)の現代的なオフィスビルであり、鉄骨造の構造を持ちます。基準階面積は約38坪となっており、ワンフロア・ワンテナントでの利用が可能で、柔軟なオフィスレイアウトを実現できます。 立地に関しては、東京メトロ日比谷線の恵比寿駅から徒歩4分、JR山手線・JR埼京線の恵比寿駅から徒歩5分、東急東横線の代官山駅から徒歩6分の位置にあり、複数の鉄道線を利用可能なことから、都内主要ビジネスエリアへのアクセスが非常に便利です。また、恵比寿西一丁目交差点近くに位置し、周辺は飲食店やショッピング施設などが豊富にあり、ビジネスのみならず、生活利便性も高い環境です。 設備面では、ビル内には11人乗りのエレベーターが1基設置されており、機械警備システムによるセキュリティも万全です。オフィス区画には個別空調とOAフロアが完備され、作業環境を快適に保つことができます。また、室内には男女別のトイレが設置されており、基準階の天高は2,750mmとなっています。 ビルの外観は、バイカラーでシックな色合いが特徴的で、明るく開放的な空間が広がっています。角地に位置しているため、採光性にも優れ、働きやすいオフィス環境を提供します。また、ビルは24時間使用可能で、使用時間に制限がないため、様々なビジネススタイルに対応できます。 オリックス恵比寿西ビルは、その立地、設備、デザイン性を兼ね備えた賃貸オフィスビルとして、多様なビジネスニーズに応えることができるでしょう。ビジネスの拠点として、または新たなオフィス環境を求める企業にとって、非常に魅力的な選択肢となること間違いありません。
自分で探すより問い合わせる方が早いことがあります
WEB非公開物件があるから
オーナー様のご希望により「WEBでは非公開」にしている物件があります。 それらはWEBでいくら検索しても見つかりません。 先ずは条件などお知らせ頂けましたら非公開物件含め ピッタリのオフィスをご提案させて頂きます。 無理なお勧めはしておりませんので、お気軽にお問い合わせください。
対面でのご相談も受け付けております
ご来店も歓迎です
オフィス移転は社内・社外ともに非公開に行われることが殆どです。そのためアットオフィスでは、基本的に訪問によるコンサルティングを行っておりますが、ご来店の相談も歓迎です。お一人おひとりに親身にご対応させて頂きたい為、要予約とさせて頂いております。ご来店の際は先ずは下記よりご予約下さい。
募集終了のテナント区画
| 階数 | 坪数 | 賃料 + 共益費 | 敷金/礼金敷金 礼金 | 検討 |
|---|---|---|---|---|
| B1階 | 27.99坪 (92.53m²) | 募集終了 | - | - |
| B1階 | 14.07坪 (46.51m²) | 募集終了 | - | - |
| 1階 | 29.5坪 (97.52m²) | 募集終了 | - | - |
| 2階 | 33.79坪 (111.7m²) | 募集終了 | - | - |
| 3階 | 37.97坪 (125.53m²) | 募集終了 | - | - |
| 4階 | 33.34坪 (110.21m²) | 募集終了 | - | - |
読込中...
近くのエリアで探してみる
恵比寿/代官山/広尾エリアでORIX恵比寿西ビルに似た条件の物件
読込中...
| 取扱様態 | 仲介 |
|---|---|
| 取扱会社 | 株式会社 アットオフィス |