※このサイトに記載がある賃貸条件は、敷金・保証金などの預かり金を除き、別途消費税がかかります。
物件情報
設備詳細
| 空調 | 個別空調 |
|---|---|
| トイレ | 男女共用トイレ・室内 |
| 床仕様 | - |
| エレベータ | 1 基 |
| 駐車場設備 | - |
| その他 | 新耐震基準 / 店舗可(飲食不可) |
NAKAMEGURO K BUILDINの賃貸オフィス・事務所に関するお問い合わせ
NAKAMEGURO K BUILDINについて
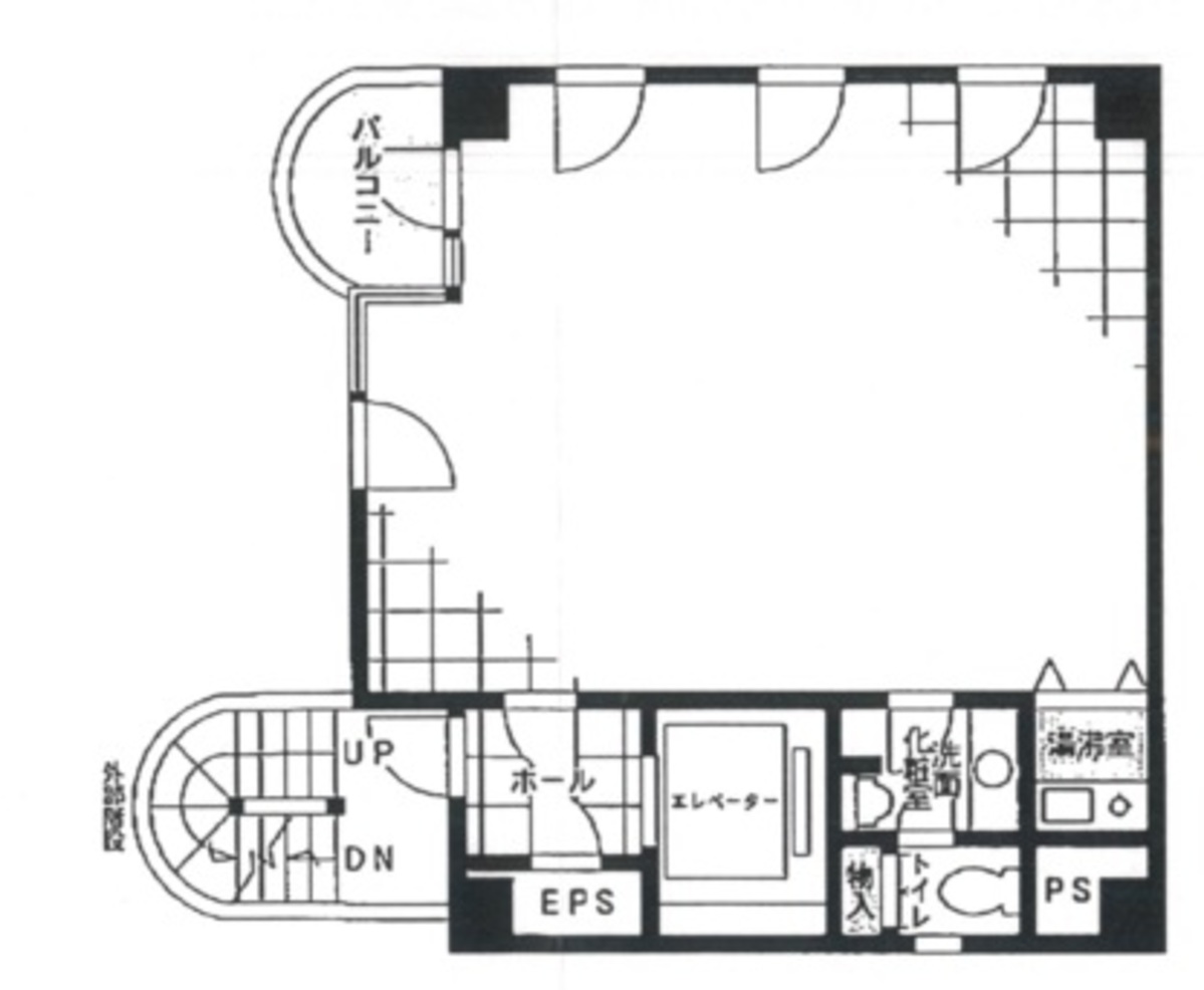
目黒区青葉台に位置する「バルビゾン45ビル」(NAKAMEGUROKbuildingとも称される)は、1992年に竣工された地上8階建てのモダンな賃貸オフィスビルです。このビルは、耐震構造を備え、都市型ビジネスニーズに応える設計が施されています。特に、バルビゾン45ビルの立地は、東急田園都市線の池尻大橋駅、中目黒駅、神泉駅という3つの駅が徒歩圏内にあり、多方向へのアクセスが容易な点が大きな魅力です。 ビルは山手通りに面しており、1階には人気のフレンチレストランとカレー屋が入居しているため、ビジネスランチやアフター5の利用にも便利です。また、周辺には目黒東山一郵便局やドン・キホーテ中目黒本店、ファミリーマートなどの生活便利施設が充実しており、日々の業務に必要なものがすぐに手に入ります。 ビルの内装は、明るく広々とした室内が特徴で、正方形の間取りが効率的なオフィスレイアウトを可能にします。各フロアは約20坪の広さで、トイレと給湯スペースは各オフィス内に設けられており、利便性が考慮されています。エレベーターも設置されているため、上層階への移動もスムーズです。 このビルは、ビジネスの拠点としてのみならず、周辺環境の豊かさも魅力の一つです。近くには公園があり、緑豊かな環境で働くことができるため、オフィスワーカーにとってはメンタルヘルスの維持にも良い影響を与えるでしょう。渋谷からは東急バスで約6分と、都心からのアクセスも良好です。 バルビゾン45ビルは、その立地の利便性、機能的なビル設計、そして周囲の環境が調和して、多様なビジネスニーズに対応する理想的なオフィススペースを提供します。是非、その場での内覧をお勧めします。こうした特性を持つバルビゾン45ビルは、あなたのビジネスを一層成功へと導くことでしょう。
NAKAMEGURO K BUILDINのこだわり
自分で探すより問い合わせる方が早いことがあります
WEB非公開物件があるから
オーナー様のご希望により「WEBでは非公開」にしている物件があります。 それらはWEBでいくら検索しても見つかりません。 先ずは条件などお知らせ頂けましたら非公開物件含め ピッタリのオフィスをご提案させて頂きます。 無理なお勧めはしておりませんので、お気軽にお問い合わせください。
対面でのご相談も受け付けております
ご来店も歓迎です
オフィス移転は社内・社外ともに非公開に行われることが殆どです。そのためアットオフィスでは、基本的に訪問によるコンサルティングを行っておりますが、ご来店の相談も歓迎です。お一人おひとりに親身にご対応させて頂きたい為、要予約とさせて頂いております。ご来店の際は先ずは下記よりご予約下さい。
募集終了のテナント区画
| 階数 | 坪数 | 賃料 + 共益費 | 敷金/礼金敷金 礼金 | 検討 |
|---|---|---|---|---|
| B1階 | 12.79坪 (42.28m²) | 募集終了 | - | - |
| 2階 | 22.42坪 (74.12m²) | 募集終了 | - | - |
| 3階 | 19.59坪 (64.76m²) | 募集終了 | - | - |
| 4階 | 17.89坪 (59.14m²) | 募集終了 | - | - |
| 6階 | 17.89坪 (59.13m²) | 募集終了 | - | - |
| 7階 | 17.89坪 (59.14m²) | 募集終了 | - | - |
| 8階 | 18.42坪 (60.88m²) | 募集終了 | - | - |
読込中...
近くのエリアで探してみる
目黒/中目黒/青葉台エリアでNAKAMEGURO K BUILDINに似た条件の物件
読込中...
| 取扱様態 | 仲介 |
|---|---|
| 取扱会社 | 株式会社 アットオフィス |