KHビル7階の賃貸情報
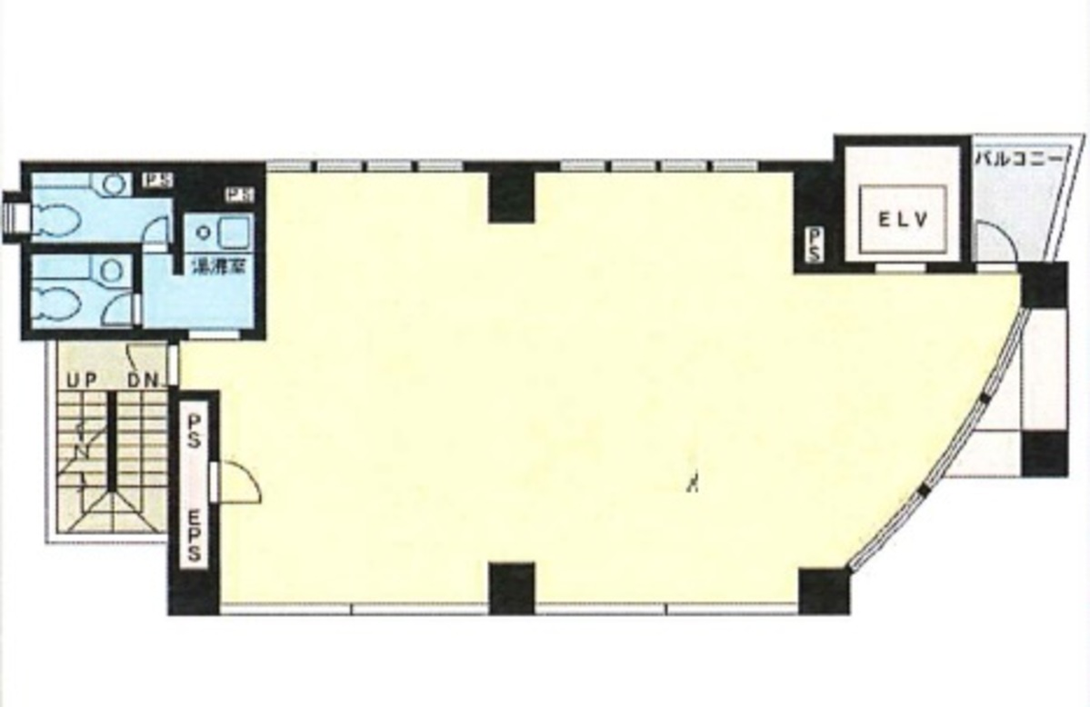
28.86 坪 (95.39m²)
※このサイトに記載がある賃貸条件は、敷金・保証金などの預かり金を除き、別途消費税がかかります。
KHビルの建物概要
設備詳細
| 空調 | 個別空調 |
|---|---|
| トイレ | - |
| 床仕様 | OA対応床(フリーアクセス) |
| エレベータ | 1 基 |
| 駐車場設備 | - |
| その他 | 新耐震基準 / 東京賃料が坪11000円以下 |
KHビル7階の賃貸オフィス・事務所に関するお問い合わせ
KHビルについて
KHビルは、江東区木場2丁目に位置し、東京地下鉄東西線「木場駅」から徒歩4分、また「門前仲町駅」へも東西線で徒歩9分、東京都大江戸線からは徒歩11分でアクセス可能です。複数の路線が利用できる立地となっており、事業活動の拠点として検討されることが多いエリアにあります。 地上9階建ての構造を持つこのビルは、1基のエレベーターが設置されています。建物内の移動やフロア間のアクセスも考慮されたつくりのため、各階での業務展開を想定したレイアウトにも対応しやすい環境です。また、事務所やオフィス用途をはじめとした様々な使い方がイメージされることから、業種や事業規模に応じたプランニングも可能です。 新耐震基準に基づいて建てられており、企業活動や日常業務を進める上での安心感も備えています。周辺エリアには生活利便施設も点在しており、日々の業務に付随する様々なニーズにも対応しやすい環境です。 詳細はお問い合わせください。
自分で探すより問い合わせる方が早いことがあります
WEB非公開物件があるから
オーナー様のご希望により「WEBでは非公開」にしている物件があります。 それらはWEBでいくら検索しても見つかりません。 先ずは条件などお知らせ頂けましたら非公開物件含め ピッタリのオフィスをご提案させて頂きます。 無理なお勧めはしておりませんので、お気軽にお問い合わせください。
対面でのご相談も受け付けております
ご来店も歓迎です
オフィス移転は社内・社外ともに非公開に行われることが殆どです。そのためアットオフィスでは、基本的に訪問によるコンサルティングを行っておりますが、ご来店の相談も歓迎です。お一人おひとりに親身にご対応させて頂きたい為、要予約とさせて頂いております。ご来店の際は先ずは下記よりご予約下さい。
江東区エリアでKHビルに似た条件の物件
読込中...
KHビルと同じ最寄駅の物件
読込中...
| 取扱様態 | 仲介 |
|---|---|
| 取扱会社 | 株式会社 アットオフィス |