AD市ヶ谷ビル4階の賃貸情報
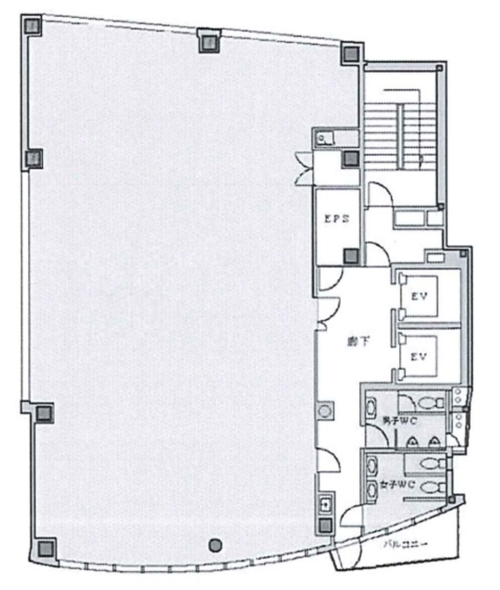
60.56 坪 (200.25m²)
※このサイトに記載がある賃貸条件は、敷金・保証金などの預かり金を除き、別途消費税がかかります。
AD市ヶ谷ビルの建物概要
設備詳細
| 空調 | 個別空調 |
|---|---|
| トイレ | - |
| 床仕様 | OA対応床(フリーアクセス) |
| エレベータ | 2 基 |
| 駐車場設備 | 空有 |
| その他 | 光ファイバー / 24時間利用可 / 機械警備 / 新耐震基準 |
AD市ヶ谷ビル4階の賃貸オフィス・事務所に関するお問い合わせ
AD市ヶ谷ビルについて
AD市ヶ谷は、新宿区市谷本村町に位置するオフィスビルです。総武中央線「市ヶ谷駅」から徒歩3分、東京地下鉄南北線「市ケ谷駅」からも4分で到着できる立地にあります。複数路線が利用できるため、さまざまなエリアからのアクセスが可能です。 建物は地上11階、地下1階で構成されており、2基のエレベーターが設置されています。各フロアの利用を想定した動線が確保されているため、移動や入退館がスムーズです。24時間利用に対応しているため、時間帯を問わず柔軟な運用が可能となっています。 オフィス用途に必要とされる光ファイバーが導入されており、通信環境の整備がなされています。機械警備による防犯体制も備わっており、一定のセキュリティ水準が確保されています。また、新耐震基準に基づいて建てられている点も特徴のひとつです。 市ヶ谷エリアで事務所スペースを検討されている法人様や団体にとって、利用イメージが明確な建物となっています。詳細はお問い合わせください。
AD市ヶ谷ビルのこだわり
自分で探すより問い合わせる方が早いことがあります
WEB非公開物件があるから
オーナー様のご希望により「WEBでは非公開」にしている物件があります。 それらはWEBでいくら検索しても見つかりません。 先ずは条件などお知らせ頂けましたら非公開物件含め ピッタリのオフィスをご提案させて頂きます。 無理なお勧めはしておりませんので、お気軽にお問い合わせください。
対面でのご相談も受け付けております
ご来店も歓迎です
オフィス移転は社内・社外ともに非公開に行われることが殆どです。そのためアットオフィスでは、基本的に訪問によるコンサルティングを行っておりますが、ご来店の相談も歓迎です。お一人おひとりに親身にご対応させて頂きたい為、要予約とさせて頂いております。ご来店の際は先ずは下記よりご予約下さい。
近くのエリアで探してみる
市ヶ谷/神楽坂/飯田橋エリアでAD市ヶ谷ビルに似た条件の物件
読込中...
AD市ヶ谷ビルと同じ最寄駅の物件
読込中...
| 取扱様態 | 仲介 |
|---|---|
| 取扱会社 | 株式会社 アットオフィス |