※このサイトに記載がある賃貸条件は、敷金・保証金などの預かり金を除き、別途消費税がかかります。
物件情報
設備詳細
| 空調 | - |
|---|---|
| トイレ | - |
| 床仕様 | - |
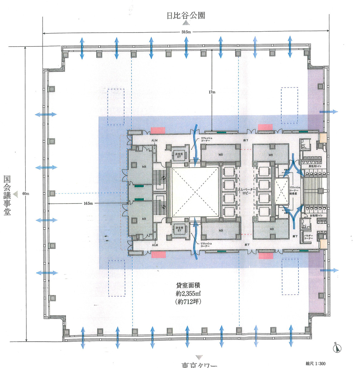
| エレベータ | 28 基 |
| 駐車場設備 | 空有 |
| その他 | 大型ビル / 高層ビル / 新耐震基準 / 駅直結 |
飯野ビルの賃貸オフィス・事務所に関するお問い合わせ
飯野ビルについて
飯野ビルは、東京の心臓部、千代田区内幸町2丁目に位置する、現代ビジネスのニーズを満たすために設計された先進的なオフィスビルです。この地点は、政治、経済、文化の中心地であり、首都東京のダイナミズムを直接体感できる場所に他なりません。2011年に新耐震基準に基づき建設されたこの物件は、最新の技術と設備を駆使しており、企業が直面するあらゆる挑戦に対応できるよう設計されています。 飯野ビルの魅力は、その圧倒的なスペックの高さにあります。全28機のエレベーターは、ビル内の移動をスムーズにし、効率的な業務遂行を支えます。これは、特に高層ビルで働く人々にとって非常に重要なポイントです。また、ビル内に備えられた駐車場は、都心部における交通の利便性を高め、ビジネスの機動性を大きく向上させます。 立地に関しても、飯野ビルは群を抜いています。多数の政府機関、主要企業の本社が集積する千代田区に位置することで、ビジネス上の重要な接点や機会が身近に広がっています。さらに、東京の主要な交通網にも容易にアクセスできるため、国内外からのアクセスの利便性も抜群です。 ビルの安全性に関しても、最新の新耐震基準施工により、地震が頻発する日本において最高水準の安全性を誇ります。これはテナント企業にとって、自社従業員の安全とビジネスの継続性を確保する上で非常に重要な要素です。 飯野ビルは、その先進的な設備、卓越した立地、そして最高水準の安全性により、ビジネスの成功を後押しする理想的なオフィス空間を提供します。ここでは、企業がビジネスの新たな地平を切り開くためのサポートを惜しみなく提供しています。このビルが、あなたの企業にとって最高のビジネスパートナーとなることを確信しています。
自分で探すより問い合わせる方が早いことがあります
WEB非公開物件があるから
オーナー様のご希望により「WEBでは非公開」にしている物件があります。 それらはWEBでいくら検索しても見つかりません。 先ずは条件などお知らせ頂けましたら非公開物件含め ピッタリのオフィスをご提案させて頂きます。 無理なお勧めはしておりませんので、お気軽にお問い合わせください。
対面でのご相談も受け付けております
ご来店も歓迎です
オフィス移転は社内・社外ともに非公開に行われることが殆どです。そのためアットオフィスでは、基本的に訪問によるコンサルティングを行っておりますが、ご来店の相談も歓迎です。お一人おひとりに親身にご対応させて頂きたい為、要予約とさせて頂いております。ご来店の際は先ずは下記よりご予約下さい。
募集終了のテナント区画
読込中...
近くのエリアで探してみる
霞が関/日比谷/永田町エリアで飯野ビルに似た条件の物件
読込中...
| 取扱様態 | 仲介 |
|---|---|
| 取扱会社 | 株式会社 アットオフィス |