横浜三井ビルディングの賃料条件
| 階数 | 坪数 | 賃料 + 共益費 | 敷金/礼金敷金 礼金 | 検討 |
|---|---|---|---|---|
| 1階 | 45.77坪 (151.33m²) | お問合せ下さい (坪:-) | 相談 無相談/無 | |
| 20階 | 114坪 (376.88m²) | お問合せ下さい (坪:-) | 相談 無相談/無 |
※このサイトに記載がある賃貸条件は、敷金・保証金などの預かり金を除き、別途消費税がかかります。
物件情報
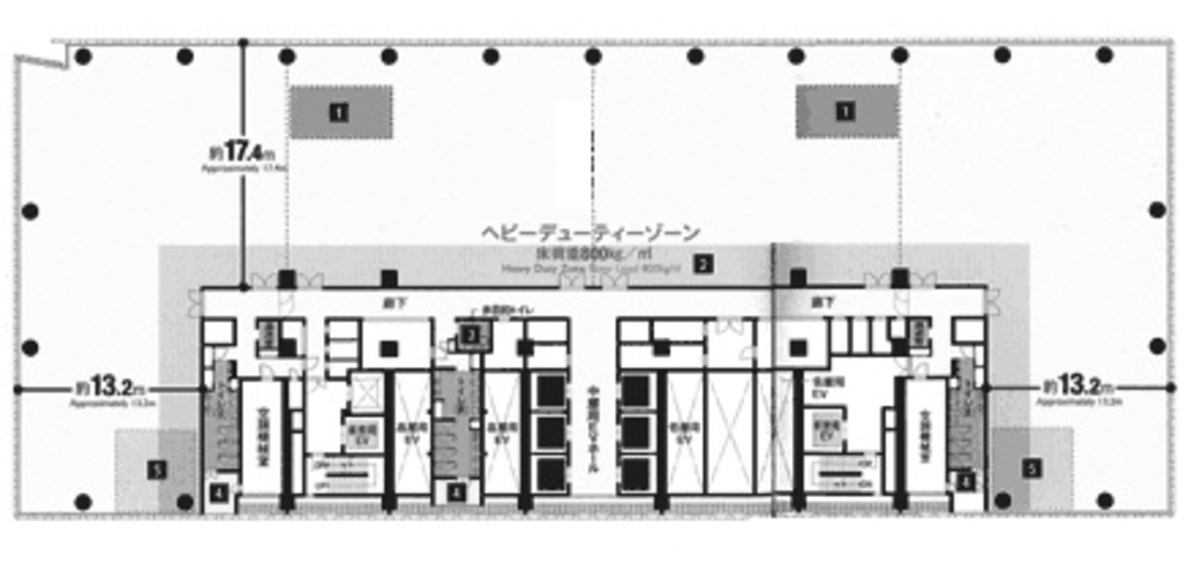
設備詳細
| 空調 | セントラル空調 |
|---|---|
| トイレ | - |
| 床仕様 | - |
| エレベータ | 28 基 |
| 駐車場設備 | 空有 / 機械式駐車場 |
| その他 | 新耐震基準 / 24時間利用可 / 店舗可(飲食可) / 居抜き / 1階の物件 |
横浜三井ビルディングの賃貸オフィス・事務所に関するお問い合わせ
横浜三井ビルディングについて
横浜トップクラスの高層ビル。ランドマーク的存在の物件です。オフィスエントランスは3階となっており、フラッパーゲート付の希少価値高いセキュリティです。喫煙室・駐車場・共用スペースなど最先端のオフィスの仕様となっており、BCP対策も整っております。室内は周囲に高い建物もないため、眺望は圧倒的で天井もグリッド式となっております。
自分で探すより問い合わせる方が早いことがあります
WEB非公開物件があるから
オーナー様のご希望により「WEBでは非公開」にしている物件があります。 それらはWEBでいくら検索しても見つかりません。 先ずは条件などお知らせ頂けましたら非公開物件含め ピッタリのオフィスをご提案させて頂きます。 無理なお勧めはしておりませんので、お気軽にお問い合わせください。
WEBから条件問い合わせをする(無料)
対面でのご相談も受け付けております
ご来店も歓迎です
オフィス移転は社内・社外ともに非公開に行われることが殆どです。そのためアットオフィスでは、基本的に訪問によるコンサルティングを行っておりますが、ご来店の相談も歓迎です。お一人おひとりに親身にご対応させて頂きたい為、要予約とさせて頂いております。ご来店の際は先ずは下記よりご予約下さい。
来店予約をする
募集終了のテナント区画
| 階数 | 坪数 | 賃料 + 共益費 | 敷金/礼金敷金 礼金 | 検討 |
|---|---|---|---|---|
| 5階 | 164.87坪 (545.04m²) | 募集終了 | - | - |
| 11階 | 559.22坪 (1848.66m²) | 募集終了 | - | - |
| 11階 | 278.88坪 (921.92m²) | 募集終了 | - | - |
| 11階 | 114坪 (376.88m²) | 募集終了 | - | - |
| 11階 | 166.33坪 (549.33m²) | 募集終了 | - | - |
| 12階 | 559.22坪 (1848.66m²) | 募集終了 | - | - |
| 12階 | 228.01坪 (753.76m²) | 募集終了 | - | - |
| 13階 | 392.88坪 (1298.77m²) | 募集終了 | - | - |
| 13階 | 240.88坪 (796.3m²) | 募集終了 | - | - |
| 13階 | 9.58坪 (31.67m²) | 募集終了 | - | - |
| 15階 | 38坪 (125.63m²) | 募集終了 | - | - |
| 15階 | 67.31坪 (222.52m²) | 募集終了 | - | - |
| 19階 | 559.22坪 (1848.66m²) | 募集終了 | - | - |
| 19階 | 278.88坪 (921.92m²) | 募集終了 | - | - |
| 19階 | 280.34坪 (926.74m²) | 募集終了 | - | - |
| 19階 | 166.33坪 (549.88m²) | 募集終了 | - | - |
| 19階 | 114坪 (376.88m²) | 募集終了 | - | - |
| 20階 | 559.22坪 (1848.66m²) | 募集終了 | - | - |
| 20階 | 164.87坪 (545.02m²) | 募集終了 | - | - |
| 20階 | 67.31坪 (222.52m²) | 募集終了 | - | - |
| 20階 | 97.56坪 (322.52m²) | 募集終了 | - | - |
| 21階 | 278.88坪 (921.91m²) | 募集終了 | - | - |
| 21階 | 280.34坪 (926.74m²) | 募集終了 | - | - |
| 22階 | 559.22坪 (1848.68m²) | 募集終了 | - | - |
| 22階 | 25.36坪 (83.83m²) | 募集終了 | - | - |
| 23階 | 114.01坪 (376.88m²) | 募集終了 | - | - |
| 23階 | 166.33坪 (549.85m²) | 募集終了 | - | - |
| 23階 | 67.31坪 (222.51m²) | 募集終了 | - | - |
| 24階 | 152坪 (502.5m²) | 募集終了 | - | - |
| 24階 | 97.56坪 (322.52m²) | 募集終了 | - | - |
| 24階 | 9.58坪 (31.66m²) | 募集終了 | - | - |
| 24階 | 67.31坪 (222.51m²) | 募集終了 | - | - |
読込中...
西区エリアで横浜三井ビルディングに似た条件の物件
読込中...
| 取扱様態 | 仲介 |
|---|---|
| 取扱会社 | 株式会社 アットオフィス |