ロイヤルテラス4階の賃貸情報
10.34 坪 (34.2m²)
140,000円 (坪:13,539 円)
※このサイトに記載がある賃貸条件は、敷金・保証金などの預かり金を除き、別途消費税がかかります。
ロイヤルテラスの建物概要
設備詳細
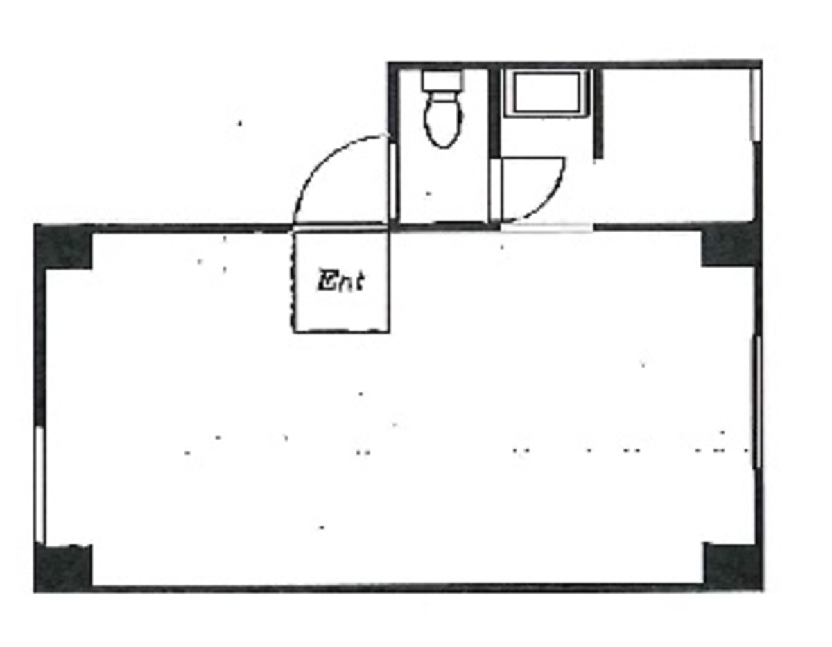
| 空調 | 個別空調 |
|---|---|
| トイレ | 男女共用トイレ・室内 |
| 床仕様 | - |
| エレベータ | - |
| 駐車場設備 | 空有 |
| その他 | SOHO/マンション / 保証金・敷金+礼金が3か月以下 |
ロイヤルテラス4階の賃貸オフィス・事務所に関するお問い合わせ
ロイヤルテラスについて
渋谷区上原1丁目に位置する、ロイヤルテラスビルは、SOHOや事務所利用に適したマンションです。この地域の静かな住環境と都心へのアクセスの良さを兼ね備えた立地は、ビジネスとプライベートのバランスを重視する方々に最適です。ここでは、ロイヤルテラスビルの特徴、立地、設備について詳しくご紹介します。 ロイヤルテラスビルは、1963年の新耐震基準施行前に竣工した物件でありながら、その品格ある外観と堅牢な構造で、長年にわたり多くのビジネスマンから信頼を寄せられてきました。SOHOや事務所利用が相談可能であることから、起業家やフリーランスの方々にも非常に魅力的な選択肢となっています。 立地に関しては、渋谷区上原1丁目という地点は、渋谷や新宿といったビジネス街へのアクセスが非常に便利です。また、周辺には飲食店やカフェなども豊富にあり、ビジネスの打ち合わせやリフレッシュのためのスポットも充実しています。このような便利で快適な環境は、ビジネスの成長はもちろん、従業員の満足度向上にも寄与することでしょう。 設備面では、ビル内に駐車場を完備している点が特筆されます。都心では駐車スペースが限られているため、このような設備はビジネスを行う上で大きな利点となります。また、セキュリティ面でも安心して利用できるよう、管理体制がしっかりしていることも、このビルの大きな魅力の一つです。 ロイヤルテラスビルでは、これらの特徴を生かしたビジネスの展開が可能です。静かで落ち着いた環境でありながら、都心へのアクセスの良さを兼ね備えたこの立地は、クリエイティブな作業や集中を要する業務に最適です。また、SOHOや事務所利用が相談可能であることから、様々なビジネスモデルに対応できる柔軟性も持ち合わせています。 ロイヤルテラスビルをビジネスの拠点として選ぶことは、優れた立地と設備を活用し、事業をさらに発展させるための賢明な選択と言えるでしょう。このビルで新たなビジネスのスタートを切り、成功への一歩を踏み出してみてはいかがでしょうか。
ロイヤルテラスのこだわり
自分で探すより問い合わせる方が早いことがあります
WEB非公開物件があるから
オーナー様のご希望により「WEBでは非公開」にしている物件があります。 それらはWEBでいくら検索しても見つかりません。 先ずは条件などお知らせ頂けましたら非公開物件含め ピッタリのオフィスをご提案させて頂きます。 無理なお勧めはしておりませんので、お気軽にお問い合わせください。
対面でのご相談も受け付けております
ご来店も歓迎です
オフィス移転は社内・社外ともに非公開に行われることが殆どです。そのためアットオフィスでは、基本的に訪問によるコンサルティングを行っておりますが、ご来店の相談も歓迎です。お一人おひとりに親身にご対応させて頂きたい為、要予約とさせて頂いております。ご来店の際は先ずは下記よりご予約下さい。
近くのエリアで探してみる
代々木/初台/幡ヶ谷エリアでロイヤルテラスに似た条件の物件
読込中...
ロイヤルテラスと同じ最寄駅の物件
読込中...
| 取扱様態 | 仲介 |
|---|---|
| 取扱会社 | 株式会社 アットオフィス |