クオーレ東館西館B1階の賃貸情報
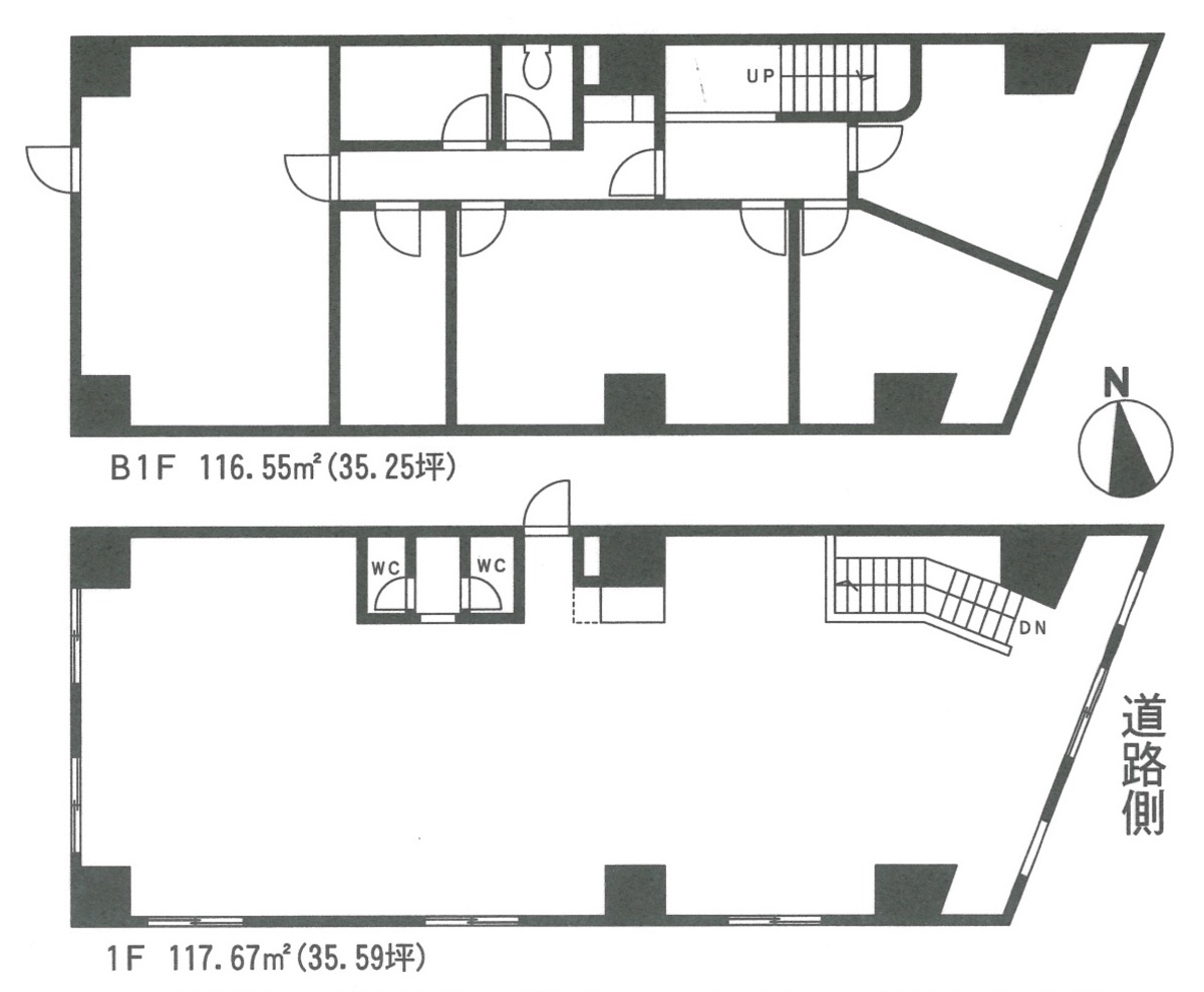
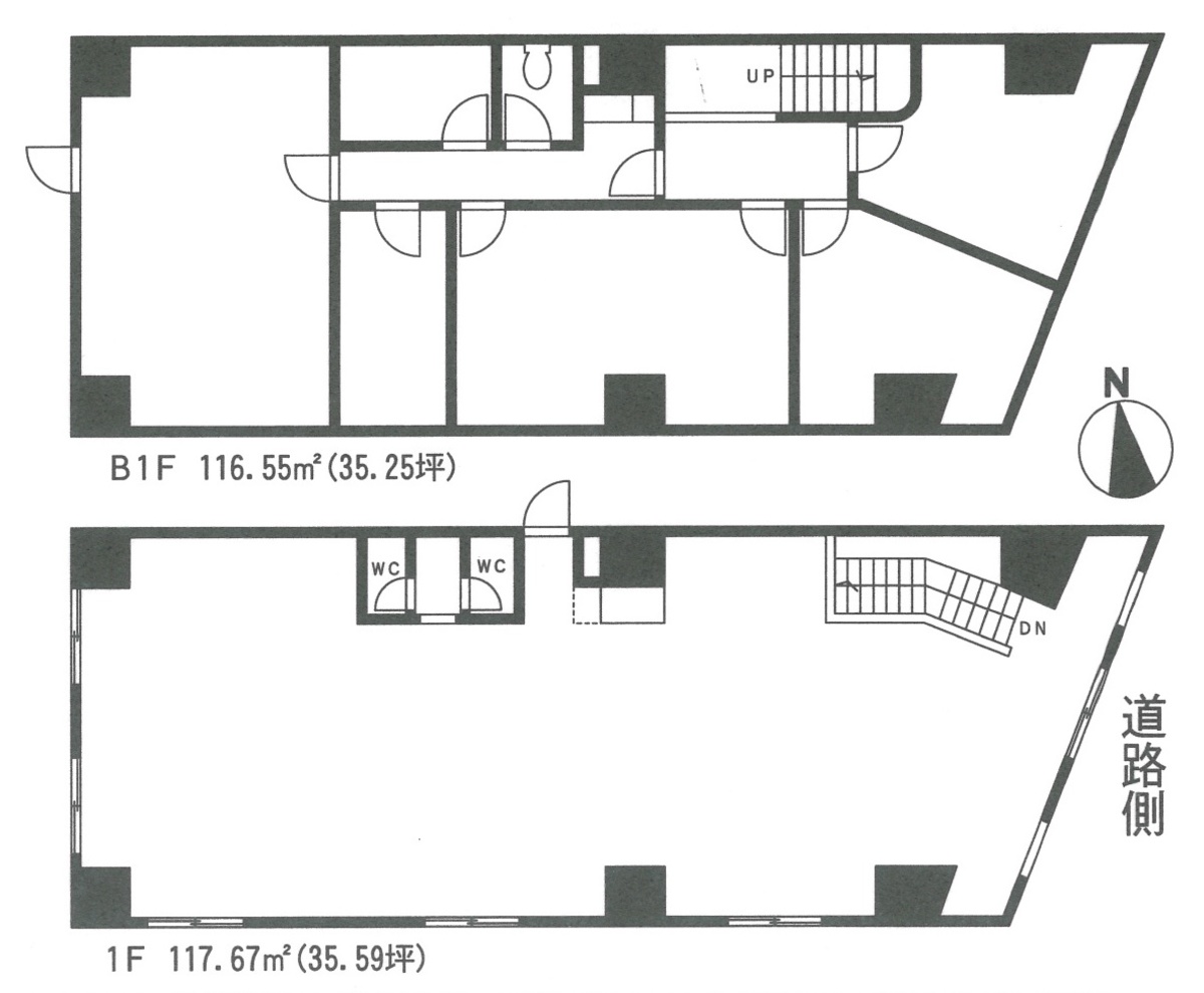
70.84 坪 (234.22m²)
※このサイトに記載がある賃貸条件は、敷金・保証金などの預かり金を除き、別途消費税がかかります。
クオーレ東館西館の建物概要
設備詳細
| 空調 | - |
|---|---|
| トイレ | - |
| 床仕様 | - |
| エレベータ | - |
| 駐車場設備 | - |
| その他 | 新耐震基準 / 東京賃料が坪11000円以下 |
クオーレ東館西館B1階の賃貸オフィス・事務所に関するお問い合わせ
クオーレ東館西館について
クオーレ東館西館は、荒川区荒川5丁目に位置する地上12階地下1階建ての事業用賃貸建物です。周辺には京成電鉄本線「新三河島駅」および「町屋駅」、千代田線「町屋駅」の3駅が徒歩圏内にあり、それぞれ4分から6分の距離でアクセスが可能です。複数の路線が利用できるため、拠点としての活用や、移動の選択肢が求められる用途にも適しています。 建物は、新耐震基準に適合しています。構成として地上12階地下1階の規模があり、用途や規模にあわせて柔軟なレイアウトが検討しやすい点が特徴です。周辺は生活利便施設やオフィスが混在するエリアで、日中の活動拠点としても検討できます。 用途や業種に応じた空間の利用も視野に入れやすく、建物の規模や立地条件を活かして多様なプランニングが可能です。詳細はお問い合わせください。
自分で探すより問い合わせる方が早いことがあります
WEB非公開物件があるから
オーナー様のご希望により「WEBでは非公開」にしている物件があります。 それらはWEBでいくら検索しても見つかりません。 先ずは条件などお知らせ頂けましたら非公開物件含め ピッタリのオフィスをご提案させて頂きます。 無理なお勧めはしておりませんので、お気軽にお問い合わせください。
対面でのご相談も受け付けております
ご来店も歓迎です
オフィス移転は社内・社外ともに非公開に行われることが殆どです。そのためアットオフィスでは、基本的に訪問によるコンサルティングを行っておりますが、ご来店の相談も歓迎です。お一人おひとりに親身にご対応させて頂きたい為、要予約とさせて頂いております。ご来店の際は先ずは下記よりご予約下さい。
荒川区エリアでクオーレ東館西館に似た条件の物件
読込中...
クオーレ東館西館と同じ最寄駅の物件
読込中...
| 取扱様態 | 仲介 |
|---|---|
| 取扱会社 | 株式会社 アットオフィス |