荒川区西日暮里1丁目に位置する「パレスいしかわビル」は、複数路線へのアクセスが可能な立地にあります。京成電鉄本線「新三河島駅」から徒歩2分、常磐線「三河島駅」からは徒歩5分、千代田線「町屋駅」からも徒歩8分と、各駅が比較的近接しており、都内各エリアへの移動がしやすい環境です。地上10階地下1階で構成された建物は、オフィスや事業拠点として利用されている様子が窺えます。周辺は住宅や店舗、オフィスが混在するエリアで、落ち着いた街並みが広がっています。建物前面道路や周辺道路の交通量は時間帯によって異なりますが、歩行者の往来も見受けられる地域となっています。事業用物件として、駅から近い場所で事務所や拠点を検討されている方にお選びいただいています。詳細はお問い合わせください。
三河島駅の賃貸オフィス・賃貸事務所
三河島駅には、韓国料理店や焼肉店、居酒屋など多様な飲食店舗と、クリニックや美容室、個人商店が点在する下町の商業・生活ビジネスエリアです。駅周辺は住宅地が広がり、尾竹橋通り沿いに韓国系の店舗やコンビニエンスストアが見られます。生活に必要なサービスが徒歩圏内で完結する環境が整っており、落ち着いた住宅街の中に商業と暮らしが近接したエリアです。大規模な再開発はありませんが、空き店舗の活用や小規模なマンション建設が進み、地域の街並みに変化が生まれました。飲食店やサービス業のテナントが多く、個人経営の店舗や専門性のあるクリニックなど、地域密着型の事業に向いています。賃貸オフィス物件を探している場合、地元住民への認知を高めたい小規模事業者や、身近なサービス拠点を設けたい企業に適しています。三河島駅周辺は、地域に根ざした集客や採用を目指す企業が、暮らしに近い拠点を構えるのに適したロケーションです。
検索結果 37棟40フロア
クレセントビルは、荒川区西日暮里5丁目に位置する地上9階建ての建物です。複数路線が利用可能な西日暮里駅から徒歩2~3分の場所に所在し、交通機関へのアクセスが容易な点が特徴です。山手線、千代田線、日暮里・舎人ライナーなど、各線の西日暮里駅からいずれも短時間で到着できるため、来訪者やスタッフの移動手段が選択しやすい立地と言えます。 建物は9階建ての構成となっており、用途に応じたフロア利用が想定できます。建物周辺は住宅地や商業施設が混在するエリアで、必要に応じて飲食や日常の用事にも対応しやすい環境です。駅近隣という特性上、ビジネスの拠点や来客対応の場として利用する際にも配慮がしやすくなっています。 現地の具体的な間取りや設備仕様などについては、詳細なお問い合わせをお願いいたします。ご質問やご要望に応じて、個別にご案内いたします。詳細はお問い合わせください。
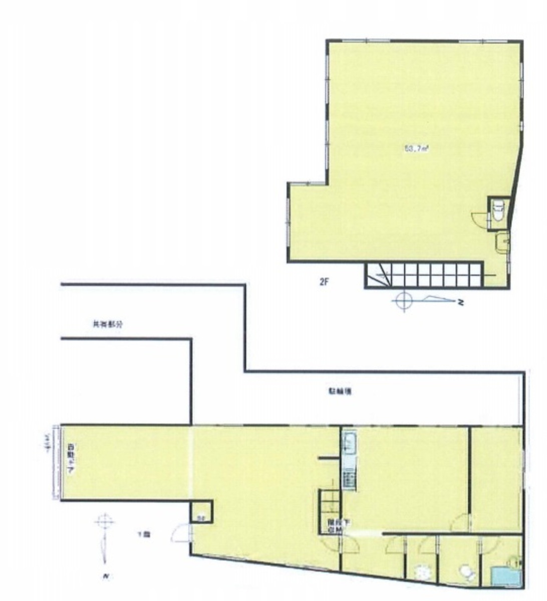
オークビルは、台東区根岸5丁目に位置する、SOHOや事務所利用に適応したマンションであります。この物件は、1989年に建築され、新耐震基準に準拠した安全な構造で施工されております。そのため、耐震性に優れている点が大きな魅力の一つと言えます。 物件の立地としては、台東区という東京の中心部に位置しており、交通の便が良好であることが特筆すべき点です。ビジネスや生活に必要な様々な施設が周辺に揃っており、日々の業務運営や生活が非常に便利です。 オークビルのもう一つの特徴は、お手洗いが共用部分にあり、レイアウトが組みやすい点です。これにより、テナントは自由度の高い空間設計を行うことが可能となり、自社のブランドイメージや働き方に合わせたオフィス環境を構築することができます。 また、上層階には住居が設けられており、エントランスが事務所部分とは異なるため、プライバシーが保護され、住居とオフィスが近接しているにも関わらず、それぞれの空間が独立している点が魅力です。ビジネスとプライベートのバランスを大切にする方にとって、理想的な環境を提供します。 設備面では、ビル内に駐車場が設置されており、車でのアクセスも考慮されています。空き状況については、問い合わせが必要ですが、この点もビジネス利用において非常に重要な要素です。また、ビル内には1機のエレベーターが設置されており、スムーズな移動をサポートします。 総じて、オークビルは、耐震性に優れた安全な建築、利便性の高い立地、ビジネスとプライベートのバランスを考慮した住居とオフィスの分離、高い自由度でのレイアウト可能性、そして充実した設備という、ビジネス利用における多角的なニーズに応える物件であります。SOHOや事務所利用を検討されている方々にとって、オークビルは最適な選択肢の一つと言えるでしょう。
NSKビルは、北区田端1丁目に位置し、東北線・山手線・京浜東北・根岸線「田端駅」からいずれも徒歩1分の距離にあります。複数路線が集まる田端駅至近のため、建物へのアクセスが分かりやすい立地です。地上9階建ての規模を持ち、オフィスや事業拠点として多様な利用を想定することができます。周辺には各種店舗や生活利便施設がそろい、日常の業務環境を整えやすい地域です。機械警備が導入されており、ビジネス利用時のセキュリティ体制が確保されています。また、新耐震基準に準拠した建物ですので、構造面でも一定の安心感があります。交通の便や建物規模を活かし、法人用途を中心とした利用に対応できる環境となっています。詳細はお問い合わせください。
下谷ポラリスビルは、東京都台東区下谷1丁目に位置する、1988年竣工の耐震性能を備えたオフィスビルであり、その地理的利便性と機能性が高いレベルで融合した物件です。本ビルは、鶯谷駅からわずか徒歩3分の距離にあり、周辺には3駅以上がアクセス可能という、ビジネスの拠点として非常に優れた立地条件を提供しています。このように複数の交通網が手軽に利用できることから、従業員の通勤利便性はもちろん、ビジネスパートナーやクライアントとのアクセス性においても顕著な利点があります。 ビル自体は、耐震設計による安全性の高さを特徴としており、万が一の地震発生時でもビルの安全性とビジネスの継続性を確保します。また、トイレが男女別に設けられており、機械警備システムが完備されている点も、従業員やビルを訪れる人々にとっての安心感に繋がっています。 エレベーターは1機設置されており、ビル内の移動の便利さを提供しますが、この点は特に利便性を重視するテナントにとっては、考慮すべき点かもしれません。しかしながら、竣工から数十年が経過しているにも関わらず、ビルは良好な状態を保持しており、賃貸オフィスとしての魅力は未だ高く、特に中小企業やスタートアップ企業には、コストパフォーマンスの高いオプションとなり得ます。 総じて、下谷ポラリスビルは、その立地の利便性、安全性、そして機能性を兼ね備えたオフィスビルとして、多種多様なビジネスニーズに応えるポテンシャルを持っています。特に都心へのアクセスが容易でありながら、落ち着いた環境も併せ持つ台東区に位置することで、ビジネスの成功をサポートする環境を提供しているのです。
# 千駄木3丁目貸店舗ビルの魅力と利便性を探る 千駄木3丁目貸店舗ビルは、文京区の中でも特に閑静でありながら活気に満ちたエリアである千駄木3丁目に位置するオフィス賃貸物件です。このエリアは、多くの文化施設や歴史的な建造物が点在していることから、ビジネスと文化が交錯する独特の雰囲気を持っています。 ## 至近距離の交通アクセス このビルの最大の特徴の一つは、その卓越した交通アクセスです。東京地下鉄千代田線の千駄木駅から徒歩わずか1分という立地は、通勤の利便性を大幅に向上させます。ビジネスパーソンにとって、時間は貴重な資源であり、このアクセスの良さは大きなアドバンテージとなります。 ## 高品質な設備と快適さ 千駄木3丁目貸店舗ビルは、オフィスとしての機能性と快適さを両立させるために、高品質な設備を完備しています。最新のセキュリティシステムを導入し、安心して業務に集中できる環境を提供します。また、広々としたレイアウトは、社員のコミュニケーションを促進し、効率的な業務遂行をサポートします。 ## ビジネスの拠点としての理想的な立地 文京区は、教育機関や研究施設が多く立地しており、知的財産が集まるエリアとしても知られています。そのため、千駄木3丁目貸店舗ビルは、学術的な連携やビジネスマッチングの可能性が高い環境です。さらに、近隣にはカフェやレストランも多く、商談や会議の合間にリフレッシュできる場所が充実しています。 ## 文化と歴史が息づくエリア 千駄木3丁目周辺は、谷中銀座商店街や根津神社など、歴史的な観光スポットが多数存在します。これらのスポットは、ビジネスパートナーやクライアントに対する接待やオフタイムの観光にも利用できるため、ビジネスシーンを豊かに彩ります。 # 結び 千駄木3丁目貸店舗ビルは、その卓越した立地条件と高品質な設備により、ビジネスの成長を強力にサポートする環境を提供します。このビルでの新たなビジネス展開は、確実に成功への一歩となるでしょう。文京区の豊かな文化と知的資産を活用し、企業の未来を切り拓くための理想的な拠点として、ぜひご検討ください。
ジョイシーズは、荒川区南千住一丁目に位置する事業用建物です。東京都荒川線「三ノ輪橋駅」から徒歩1分、同線「荒川一中前駅」から徒歩4分、また、東京地下鉄日比谷線「三ノ輪駅」からも徒歩6分と、複数の公共交通機関が利用できる立地にあります。こうした環境により、複数路線からの移動や来客時の案内がしやすい点が特長です。 建物は地上3階建てで、用途に応じたフロア構成が可能です。交通量の多いエリアにありながら、周辺には住宅や地域の生活施設も点在し、地域と調和した運用がイメージできます。事務所や店舗など、落ち着いた環境で計画的に事業展開を検討したい法人にも適した建物です。 建物は新耐震基準に適合している点が確認されています。詳細はお問い合わせください。
サンライズ東上野は、東京都台東区入谷1丁目に位置する、現代のビジネスニーズに応えるオフィスビルです。この物件は、1992年に竣工された鉄骨鉄筋コンクリート造りの建築物であり、耐震性に優れた構造を備えております。ビルは入谷駅からわずか徒歩2分、また鶯谷駅からは徒歩8分という利便性の高い立地にあり、ビジネスの拠点としてのアクセスの良さを提供しています。 サンライズ東上野は、その構造と設備において多くの特長を有しています。まず、建物は耐震性に優れており、テナント企業にとって安心して業務を行える環境を提供します。また、ビル内には1基のエレベーターが設置されており、スムーズな移動を実現しています。個別空調システムも完備されており、各オフィスが快適な室温を保てるようになっています。さらに、光ファイバーへの対応により、高速かつ安定したインターネット接続が可能であり、現代のビジネスにおいて欠かせない通信環境を提供します。 このビルのもう一つの特徴は、その周辺環境にあります。サンライズ東上野の周辺には、飲食店、指圧マッサージ店、クリニックなどが立ち並び、ビルのテナント及びその従業員の方々が日々の生活に必要なサービスを手軽に利用できる環境が整っています。また、近隣にはオフィスビルやマンションが多く、ビジネスや居住の観点からも魅力的なエリアです。交通量が穏やかな広い通りに面しているため、車や歩行者にとってもアクセスしやすい立地条件を持っています。このように、サンライズ東上野は、ビジネスの効率化と従業員の生活の便利さの両方を考慮した、理想的なオフィスビルと言えます。 サンライズ東上野は、その耐震性、充実した設備、そして優れた立地条件を兼ね備え、多様なビジネスニーズに対応するための最適な環境を提供します。現代のビジネスパーソンにとって、機能性と快適性を融合させたこのビルは、新たなビジネスの拠点として、または企業の成長を支える強力なパートナーとして、大いに期待される物件であると言えるでしょう。
荒川区東日暮里一丁目に計画されている「東日暮里1丁目計画」は、地上5階建ての建物です。最寄り駅は、荒川線「三ノ輪橋駅」および東京地下鉄日比谷線「三ノ輪駅」から徒歩5分、さらに荒川線「荒川一中前駅」からも徒歩6分の立地です。複数の公共交通機関が利用可能なことから、周辺エリアへのアクセス手段に幅が見られます。 この建物はクリニックモールとしての用途が明示されており、医療関連の事業展開を検討されている法人の方にとって、運営方針や事業計画に合わせた利用が想定されます。各階の構成や共用部の仕様など、詳細な部分については明示されていませんが、5階建てのためフロアごとで分割された活用も考えやすい設計です。 周囲は荒川区の住宅地として知られており、地域住民の生活圏内に位置しています。クリニックモールとしての役割を担うことで、地域とのつながりや来訪者の動線を意識した運用も視野に入れることができます。 建物の利用用途や空間構成の詳細、テナント区画などについては、計画の進捗にあわせてご案内が可能です。詳細はお問い合わせください。
荒川区西日暮里2丁目に位置する「ステーションプラザタワー」は、日暮里舎人ライナー「日暮里駅」から徒歩1分、山手線および京成電鉄本線「日暮里駅」からも徒歩2分の場所にあります。複数路線の駅と直結しており、アクセスのしやすさが特徴です。地上36階、地下2階建ての大型高層ビルで、建物内には3基のエレベーターが設置されています。新耐震基準に対応していますので、耐震対策もなされています。駅と建物が直結しているため、天候の影響を受けにくい移動が可能です。多層階の構造を活かし、フロアごとに異なる用途やオフィスレイアウトを検討することができます。周辺には商業施設や飲食店、サービス施設が集積しているエリアであり、業務環境を整える一助となります。日暮里エリアで事業用物件をお探しの方に適した環境です。詳細はお問い合わせください。
台東区竜泉一丁目に位置する「永田」は、東京地下鉄日比谷線「入谷駅」から徒歩6分、「三ノ輪駅」から7分、さらに荒川線「三ノ輪橋駅」も利用可能な立地にあります。複数路線が徒歩圏内にあり、目的地や用途に応じて選択肢が広がります。周辺は住居や商業施設が混在するエリアで、日々の業務に必要な環境が整っています。建物は地上4階建てで、視認性のある通りに面しているため、来客対応やスタッフの出入りの際にも利便性が確保されています。 事務所や店舗、サービス拠点など、様々な法人活動の拠点として利用が想定される建物です。近隣には飲食店やコンビニエンスストアもあり、日常業務の合間や従業員の休憩時にも活用しやすい環境が整っています。交通手段の選択肢が多いことから、通勤のみならず来訪者の誘導や物流の計画にも柔軟に対応できます。 外観や共有部、内装の詳細、ご希望の用途への適合性などについては、詳細はお問い合わせください。
春日・鈴木共同は、台東区根岸1丁目に位置する事業用賃貸不動産です。複数の鉄道路線が交わる「鶯谷駅」から徒歩圏にあり、東北線、山手線、京浜東北・根岸線の利用が可能です。各駅からのアクセス時間も3分から4分と近く、さまざまな方面への移動が見込まれる法人のお客様にも検討いただける立地です。 建物は地上6階建で、エレベーターが1基設置されています。来客やスタッフの動線にも配慮されており、階層ごとに用途を分けてご利用いただくことも可能です。近隣には飲食店や生活施設も点在しており、落ち着いた環境の中で事業活動を進めることができます。詳細はお問い合わせください。
荒川区東尾久4丁目に位置する「東尾久4丁目PJビル」は、地上2階建ての事業用建物です。日暮里・舎人線「熊野前駅」から徒歩5分、日暮里舎人ライナー「赤土小学校前駅」からも徒歩5分、さらに荒川線「熊野前駅」へは徒歩6分と、複数の路線・駅が利用可能な立地にあります。交通手段の選択肢が多いため、訪問者やスタッフの通勤にも配慮したい企業にも適しています。駅から建物までの距離が比較的近いため、駅周辺の施設や周囲の商業エリアとの連携にも活用できます。周辺は住宅や商業施設が混在するエリアとなっており、さまざまな業種の事務所や事業拠点として利用できます。建物は2層構造のため、ワンフロアごとの利用やフロアごとの用途分けも可能です。外観や共用部などの詳細については、直接ご相談いただくことで、より具体的なイメージを持っていただけます。詳細はお問い合わせください。
台東区根岸5丁目に位置する「根岸」は、東京地下鉄日比谷線「三ノ輪駅」および「入谷駅」からそれぞれ徒歩10分、JR東北線「鶯谷駅」から徒歩11分の立地にあります。交通機関へのアクセスが3駅から可能なため、様々な方面への移動が考えられます。 周辺は閑静な住宅街と都市機能が共存するエリアであり、落ち着いた環境の中で事業活動を行いたい法人に向いています。通勤や外出の際にも複数の駅が利用でき、日々の業務効率を意識した拠点選びに適しています。 建物自体は、区画整理の整った街並みに建ち、周辺には飲食店や生活利便施設も点在しています。台東区エリアで、交通機関への距離や街の雰囲気を重視した事業拠点をお考えの方に検討いただける物件です。 ご利用用途や詳細な条件につきましては、お問い合わせください。
荒川区西日暮里3丁目に位置する紅陽ビルは、西日暮里駅から徒歩1分という駅への近さが特徴です。山手線、東京地下鉄千代田線、東北線の各路線が利用でき、駅からの移動時間が短いため、駅周辺で活動される法人様の拠点として候補となります。複数の鉄道路線に囲まれており、ビル利用者だけでなく来訪者にとってもアクセスしやすい環境が整っています。 西日暮里駅前エリアは、オフィスや店舗、各種サービス業など多様な事業形態に利用されている地域です。周辺には行政機関や各種店舗、飲食店が立地しており、日常の業務や来客対応にも配慮された立地となっています。ビル自体も、駅からの距離が短いため、雨天時や荷物の多い場合にも移動の負担が軽減されます。 住所が西日暮里3丁目であることから、地元密着型で事業展開をされたい法人様にも検討しやすい環境です。駅前通り沿いの建物であり、視認性が求められる用途にも対応が可能です。西日暮里エリアで事業拠点をお探しの際は、詳細はお問い合わせください。
台東区上野桜木2丁目に位置する「かもめハウス」は、地上2階建ての建物です。鶯谷駅から徒歩6分、日暮里駅から徒歩8分、また山手線の鶯谷駅からも徒歩10分の場所にあります。複数路線が利用でき、近隣には住宅と事業用の建物が混在するエリアに立地しています。 建物としては2層構成のため、ワンフロアでの利用や階層ごとに用途を分ける使い方が考えられます。ワークスペースや事務所、アトリエなど、さまざまなレイアウトに対応しやすい建物規模です。光ファイバーが導入されているため、ネットワーク環境が必要な業務にも適しています。 周辺には飲食店や公園なども点在し、地域の静かな雰囲気と都市の働きやすさが共存しています。利用目的やレイアウトに応じて、多様な事業活動の拠点としてご検討いただけます。詳細はお問い合わせください。
文京区千駄木に位置する「ワコーレ千駄木ビル」は、1986年に竣工されたこの地域における代表的な賃貸オフィスビルです。千駄木駅からわずか1分という抜群のアクセス性を誇り、西日暮里駅や日暮里駅へも徒歩8分という立地の利便性は、ビジネスの機動力を大きく支えます。 ビルの設計は、耐震性に優れた構造でありながら、機能性とデザインの両面で高い評価を受けています。外観はカーブを描くようなデザインが特徴的で、街並みに新たな魅力をもたらしています。また、2012年には外壁や屋上の大規模修繕工事を実施し、建物の耐久性と美観を一層強化しました。 室内は基準階面積が約40坪で、特徴的な間取りが可能なフレキシブルなスペース提供を可能にしています。窓が多く設けられているため、自然光がたっぷりと入り、明るく開放的なオフィス環境を実現しています。また、眺望も良好で、作業効率の向上にも寄与します。トイレは男女別でプライバシーが確保されており、24時間利用可能な点も長時間勤務や夜間作業が必要なビジネスには欠かせない設備です。 セキュリティ面では、機械警備を完備しており、常駐の管理人が安心の環境を提供します。これにより、入居企業は安全かつ安心してビジネスを展開できる環境が整っています。 周辺環境もビジネスにとって大変魅力的です。ビルのすぐ隣にコンビニがあり、向かいには郵便局も位置しており、日々の業務に必要な様々なサービスを手軽に利用できます。さらに、この地域は住宅が多く、静かで落ち着いた環境であるため、集中して仕事を進めることが可能です。 「ワコーレ千駄木ビル」は、卓越した立地、洗練されたデザイン、機能性を兼ね備えたビルとして、多くの企業にとって最適なオフィススペースを提供しています。ビジネスの拠点としての利用を考える際に、ぜひ検討する価値のある物件です。
プラザエムビルは、東京都台東区三ノ輪1丁目に位置する、ビジネスの可能性を広げるための理想的なオフィス賃貸物件です。この物件は、交通の便が非常に良好であり、三ノ輪駅からわずか徒歩1分の距離にあるため、アクセスの良さはこのビルの大きな魅力の一つです。日々の通勤はもちろんのこと、ビジネスパートナーやクライアントとの面会にも非常に便利な立地条件を提供しています。 プラザエムビルは、エレベーターが1機設置されており、スムーズな移動をサポートします。このビルは、機能性と快適性を兼ね備えたオフィス空間を求めるテナントに最適な設備を備えています。多様なビジネスニーズに応えるため、柔軟性の高いレイアウトが可能なオフィススペースが提供されており、各企業の独自の要望に合わせたオフィス環境の構築が可能です。 台東区という立地は、東京都内においても歴史的な魅力と現代的なビジネス環境が融合した地域として知られており、プラザエムビルはそのような環境の中でビジネスを展開したい企業にとって魅力的な選択肢となります。周辺には飲食店や商業施設が充実しており、ビジネスの合間にリフレッシュする場所や、クライアントとの打ち合わせに適した場所を容易に見つけることができます。 さらに、プラザエムビルは、企業のブランドイメージを向上させるための外観デザインにも配慮されています。第一印象が重要なビジネスシーンにおいて、このビルの洗練された外観は、訪れる人々に良好なイメージを与えます。また、入居企業の従業員にとっても、誇りを持って働けるオフィス環境が提供されることでしょう。 結論として、プラザエムビルは、優れた立地、柔軟なオフィス空間、便利な周辺環境、そしてプロフェッショナルな外観を兼ね備え、ビジネスの成功をサポートする理想的なオフィス賃貸物件です。この物件は、企業の成長と発展を見据え、高品質なオフィス環境を求めるすべてのビジネスオーナーにとって、最適な選択となるでしょう。
ザ・パークハビオ入谷は、台東区下谷2丁目に位置しています。東京地下鉄日比谷線「入谷駅」から徒歩2分、東北線「鶯谷駅」からも徒歩6分の距離にあり、ビジネスの拠点や住居兼事務所としての利用が想定される建物です。SOHOやマンションとしての利用が可能な点が特徴です。 建物には機械警備やオートロックが導入されており、利用者の安心感につながる仕様となっています。また、光ファイバー回線が利用できるため、ビジネス用途においても通信環境を確保できます。室内設計や設備は、事務所と住居の双方の用途に配慮されたものとなっています。 周辺はオフィスワークと生活の両面を意識した立地で、日々の業務や暮らしの拠点として活用できます。事業活動やテレワーク、個人事業主の拠点にも利用できる環境が整っています。詳細はお問い合わせください。
エリクサーメゾン日暮里根岸は、台東区根岸2丁目に位置する地上5階建ての建物です。東北線「鶯谷駅」から徒歩4分、山手線「鶯谷駅」から徒歩6分、さらに京成電鉄本線「日暮里駅」からも徒歩8分と、周辺の複数駅へのアクセスが可能な立地となっています。周囲には住宅や商業施設が混在しており、さまざまな事業活動の拠点として利用されてきました。建物はSOHOおよびマンションとして設計されているため、法人のオフィス利用やサテライト拠点、または事務所兼住居としてのご利用も想定されています。各フロアは多様な使い方ができる設計となっており、ご希望の活用に応じて空間を検討いただける点が特徴です。周辺には飲食店やショップも点在し、日常の業務運営に適した環境が整っています。 詳細はお問い合わせください。
南波ビルは、東京都台東区竜泉1丁目に位置する、ビジネスに適したオフィス賃貸物件であり、その立地と設備により、様々な企業にとって魅力的な選択肢となっています。この文章では、南波ビルの特徴、立地、設備などの重要な点を簡潔にまとめ、ビルの独自の魅力やビジネスにおける利点を強調します。これにより、読者は南波ビルの特性を容易に理解できるでしょう。 まず、南波ビルの立地についてですが、台東区は東京の中でも文化的な背景が豊かで、多くの歴史的建造物や観光地があります。この地域はビジネスと文化が交差する場所であり、そうした環境は企業のブランドイメージを向上させるのに役立ちます。また、交通の便も良く、都心部へのアクセスが容易であるため、従業員やビジネスパートナーとの連携がスムーズに行えます。 次に、南波ビルの設備について触れます。このビルは、最新のセキュリティシステムを完備しており、入居企業とその従業員の安全を確保しています。また、高速インターネット環境、モダンなオフィススペース、会議室の利用可能性など、ビジネスがスムーズに運営できるための設備が整っています。これにより、企業は効率的な運営を実現し、従業員の満足度も高めることができるでしょう。 さらに、南波ビルの独自の魅力には、その建築的特徴も挙げられます。モダンで洗練されたデザインは、企業のイメージを高めるだけでなく、働く人々にとっても刺激的な環境を提供します。こうした美的側面は、クリエイティブな思考を促進し、業務の質を向上させる可能性があります。 最後に、南波ビルは、様々な規模の企業に対応可能な柔軟性を持っています。小規模なスタートアップから、大企業の支社まで、多様なニーズに合わせたオフィススペースの提供が可能です。これにより、企業は現在の規模だけでなく、将来の成長に向けても計画を立てやすくなります。 総じて、南波ビルは、その立地、設備、デザイン、そして柔軟性の高さにより、多様なビジネスニーズに応えることができる優れたオフィス賃貸ビルです。企業が求める条件を満たすだけでなく、従業員が働きやすく、企業文化を育む環境を提供することにより、ビジネスの成功へと導くでしょう。
新根岸拾番館ビルは、台東区根岸3丁目に位置しており、1991年に竣工された新耐震基準に則って建てられたオフィスビルです。このビルは東京の中心部にありながら、静かな環境を提供し、ビジネスに最適な落ち着いた雰囲気を持っています。建物の耐震性に重点を置いて設計されているため、入居企業は安心して業務を遂行することができます。 特筆すべきは、ビル内に駐車場が完備されている点です。この地域では希少価値が高く、車でのアクセスを重視するビジネスにとって大きなメリットと言えるでしょう。ただし、空き状況は変動するため、利用を希望される場合は事前のお問い合わせが必要です。 ビル内には1機のエレベーターが設置されており、スムーズな移動をサポートしています。エレベーターは定期的なメンテナンスが行われ、安全かつ快適な利用が保証されています。 立地に関しては、根岸3丁目は台東区の中でもアクセスが良好なエリアに位置しており、近隣には飲食店やショッピング施設も充実しています。従業員の方々のランチタイムや仕事帰りの利便性も高く、ビジネス環境としても生活環境としても大変魅力的です。 新根岸拾番館ビルは、その耐震性能、利便性の高い駐車場、アクセスの良さ、そして周辺環境の豊かさを兼ね備え、多種多様なビジネスニーズに応えることができるオフィスビルです。長期的な視野で安定したビジネス基盤を築きたい企業様にとって、最適な選択肢の一つであることは間違いありません。新根岸拾番館ビルで、新たなビジネスの舞台を設けてみてはいかがでしょうか。
当社が誇る格安物件は、JR線から徒歩わずか5分という抜群のアクセスを誇ります。本物件は、整形の貸室を提供し、レイアウトの効率性を重視した設計がなされています。機械警備、LED照明、個別空調といった最新の設備が整っており、安心して快適なオフィスライフを送ることが可能です。また、室内は自然光が豊富に入る明るく開放感のある空間となっており、働く皆様の創造力と効率を高める環境を提供します。 立地においては、入谷駅、鶯谷駅から徒歩5分、上野駅から徒歩12分と、複数の駅にアクセスしやすい位置にあります。この利便性は、出勤はもちろん、ビジネスの機会を広げる上でも大きなメリットと言えるでしょう。貸室内は長方形に近い無柱空間であり、水回りが一箇所に集約されているため、レイアウトの自由度が高く、効率的なオフィス環境を実現します。 大通りに面しているため室内は常に明るく、活気あるオフィス環境を維持できます。周辺には中小規模のオフィスビルや商業ビルが立ち並び、コンビニや飲食店などが徒歩圏内に充実しています。ランチタイムや仕事終わりのリフレッシュにも困ることがなく、ビジネスのパフォーマンス向上に寄与します。 本物件は、最先端の設備と利便性の高い立地、効率的なレイアウトを兼ね備えたオフィスビルです。働く皆様が快適で生産性の高い環境を享受できるよう、細部にわたる配慮が施されています。ビジネスの成長を考える企業様にとって、最適な選択肢の一つであることは間違いありません。この機会に、ぜひ一度、現地をご覧になってみてはいかがでしょうか。
NYビルは、台東区下谷3丁目に位置し、東京地下鉄日比谷線「入谷駅」から徒歩6分、「三ノ輪駅」から徒歩8分、さらに東北線「鶯谷駅」からも徒歩11分で到達可能なロケーションにあります。複数路線の駅が利用できるため、各方面への移動が可能です。建物は地上8階建てで、業務用スペースとしての利用が想定される構造となっています。エレベーターが1基設置されており、フロア間の移動も考慮されています。新耐震基準を満たしている点も特徴のひとつです。用途に合わせて柔軟に検討いただける建物となっております。詳細はお問い合わせください。
たちばなビルは東京都内での活動において非常に利便性の高い立地に位置しています。最寄りのJR日暮里駅から徒歩1分という距離にあり、JR山手線、京浜東北線、常磐線、京成本線、日暮里・舎人ライナーの5路線を利用可能です。このため、主要エリアへのアクセスが非常に良く、通勤や外出がスムーズに行える環境が整っています。 2000年9月に竣工されたこの地上10階建てのビルは、新耐震基準を満たしており、耐震性に優れています。鉄骨鉄筋コンクリート造(SRC造)の堅牢な構造は、安心してオフィスを構えることができる要素の一つです。エレベーターが1基設置されており、各階への移動もストレスなく行えます。 オフィス内は個別空調方式を採用しており、各テナントが自由に温度調整を行えます。これにより、四季を通じて快適な執務環境を維持することができます。また、光回線が導入されているため、高速なインターネット環境が整備されており、効率的な業務をサポートします。セキュリティに関しても、機械警備を導入しており、安全性が確保されています。 さらに、オフィス内には男女別のトイレが設置されており、共用部を介さずに利用できるため、プライバシーと快適さが保たれています。これらの設備の充実により、テナントの多様なニーズに応えることができるでしょう。 たちばなビルは、日暮里駅から徒歩1分という優れた立地と充実した設備に加え、機能的なオフィス環境を提供しています。これにより、幅広い業種の方々にとって魅力的なオフィスビルとなっています。
谷中3丁目店舗・事務所は、台東区谷中3丁目に位置しています。JR山手線「日暮里駅」から徒歩5分、東京地下鉄千代田線「千駄木駅」からは徒歩6分の距離にあり、複数路線の駅からアクセスできます。建物は地上2階・地下1階の構成で、一棟貸しの物件となります。 貸主側が一棟単位で提供する形態のため、各フロアを用途に応じて自由に使いたい法人や事業者にとって、レイアウトや運用プランの検討がしやすい点が特徴です。オフィスと店舗利用を組み合わせる場合や、事業拡大の際にフロアごとの使い分けを検討されている方にも参考となる物件です。 周辺は谷中エリア特有の落ち着いた街並みが広がっており、事業用途に応じて静かな環境での利用も可能です。複数階層を活用した計画や、地下スペースの利用など、業種やビジネスプランに合わせたスペースアレンジが可能です。詳細はお問い合わせください。
「935」は、荒川区町屋1丁目に所在する地上3階建ての建物です。京成電鉄本線および東京地下鉄千代田線「町屋駅」から徒歩2分、また荒川線「荒川七丁目駅」からも徒歩3分の位置にあり、複数路線の駅が徒歩圏内に集まっています。駅周辺は商業施設や生活関連施設が集積するエリアで、通勤や外出、来訪者の案内にも配慮された立地です。 本建物は2025年8月に竣工予定となっており、建物全体として新たな環境で事業を展開したい企業や団体を想定した設計となっています。地上3階の構成により、フロアごとのレイアウトを検討しやすく、区画ごとの使い分けや部署ごとの配置を計画する際にも柔軟な対応が可能です。多層階の特徴を活かして、応接スペースや会議室、執務エリアなど、用途ごとにスペースを分割して運用するイメージも描けます。 また、周辺には飲食店やコンビニエンスストア、その他生活利便施設が点在しており、日常の業務に必要な環境が整っています。駅からの距離も短いため、従業員や訪問者の移動もスムーズに行える立地です。事業拠点やオフィス、サービス拠点など、さまざまな用途で活用する際のイメージが広がります。 詳細はお問い合わせください。
台東区下谷1丁目に位置する光第二ビルは、地上5階地下1階の建物です。最寄り駅である東北線「鶯谷駅」から徒歩4分、東京地下鉄日比谷線「入谷駅」から徒歩5分、そして山手線「鶯谷駅」からも徒歩10分でアクセス可能な立地となっています。複数の沿線を利用できるため、さまざまな交通手段を検討されている企業や団体にも選択肢をご用意できる建物といえます。 建物は落ち着いた住宅街と商業エリアが交差するエリアに位置しており、周辺には飲食店や生活利便施設なども点在しています。地上階と地下階を含む構成であるため、フロアごとの用途分けや事業規模に合わせたレイアウトも比較的自由に検討できます。エレベーターの設置はございませんので、階段の利用を前提とした入居計画が必要です。 事務所や店舗、各種教室など、利用目的によってフロアを有効に活用することが可能です。業態や事業方針に合わせて、建物全体、または一部のフロアの利用についてもご相談いただけます。詳細はお問い合わせください。
小林ビルは、台東区根岸3丁目に所在し、山手線・京浜東北・根岸線・東北線「鶯谷駅」から徒歩3分の場所に位置しています。駅からの距離が近いため、来訪者や従業員の通勤に配慮した立地が特徴です。周辺にはオフィスや店舗、住宅が混在しており、日中の人通りも見込まれます。建物は地上8階建てで、1基のエレベーターが設置されています。複数のフロアに分割して利用することも可能で、事業内容や組織規模に応じたレイアウトに柔軟に対応しやすい構造です。ワンフロアを事務所として利用する場合や、フロアごとに用途を分けることも検討できます。周辺環境は落ち着いており、事務所利用に適した静かな環境が広がっています。また、交通機関へのアクセスが充実しているため、都内各所への移動もスムーズです。詳細はお問い合わせください。
ステーションポートタワーは、荒川区西日暮里2丁目に位置する地上25階・地下2階建ての高層ビルです。山手線、京浜東北・根岸線、日暮里・舎人線「日暮里駅」と直結しており、各路線から徒歩1分でアクセス可能な立地です。エントランスは駅から直接つながっており、天候や時間帯を問わず通勤や移動がしやすい構造となっています。ビルにはエレベーターが2基設置されており、各階への移動も円滑です。光ファイバーによる通信インフラも備えられており、オフィスワークやテナント運営に必要なネットワーク環境が整っています。耐震設計については新耐震基準を満たした仕様となっています。荒川区西日暮里エリアで、鉄道駅と直結した高層オフィスビルをお探しの法人様には、快適なワークスペースの選択肢となります。詳細はお問い合わせください。
千駄木3丁目ビルは、文京区千駄木3丁目に位置する事業用賃貸不動産です。千代田線「千駄木駅」および「西日暮里駅」から徒歩5分、東北線「西日暮里駅」からも徒歩6分という複数駅・路線の利用が可能な立地が特徴です。周辺は住宅地と商業エリアが混在するエリアで、通勤や来客の際にも駅からの移動距離がわかりやすい場所にあります。 建物は新耐震基準で建てられており、法人利用や事務所利用を想定した用途に適しています。交通アクセスの選択肢があるため、都心各所や周辺エリアへの移動を考慮した拠点作りを検討している方にも候補となりえます。建物の立地上、近隣にはコンビニエンスストアや飲食店なども点在しており、日々の業務の中で必要な環境が整っています。 事業所の移転や新規開設を計画されている企業、または拠点拡張を検討中の法人様にご参照いただける物件です。詳細はお問い合わせください。
高野ビルは、東京都台東区根岸1丁目に位置する、ビジネスの中心地でありながら落ち着いた環境を提供するオフィスビルです。この地域は、伝統とモダニズムが融合する台東区の中でも、特にアクセスが便利でありながら、ビジネスの活動に必要な静けさと集中を保つことができる立地条件を備えています。 ビルの構造として、高野ビルはエレベーターを1機装備しており、テナントとその訪問者の移動の利便性を高めています。これは、ビル内でのスムーズな人の流れを確保し、日々の業務における時間の有効活用を促進します。また、このビルはオフィス空間の賃貸に特化しており、様々なビジネスのニーズに対応する柔軟なレイアウトが可能です。それにより、スタートアップ企業から既に確立された企業まで、幅広いテナントが最適なオフィス環境を見つけることができます。 設備面では、高野ビルは現代のオフィスが求める基本的な機能を充実させています。高速インターネット接続の提供はもちろん、セキュリティシステムの導入により、テナント企業は安心してビジネスを運営することができます。また、環境に配慮した設計がなされ、エネルギー効率の良い機器の使用により、運営コストの削減と環境保全の両立を図っています。 立地に関して、高野ビルは交通アクセスの良さが特筆されます。主要駅へのアクセスはもちろん、周辺には飲食店や銀行、郵便局などの日々のビジネス活動に必要なサービス施設が充実しています。これにより、ビジネス上の打ち合わせや社員の福利厚生の面でも、テナント企業にとって大きなメリットとなります。 このように、高野ビルは立地、設備、アクセスの利便性を兼ね備えたオフィスビルとして、多岐にわたるビジネスのニーズに応えることができる魅力的な物件です。ここでは、企業が成長し続けるための環境が整っており、ビジネスの成功を目指すすべての企業にとって、理想的な拠点となるでしょう。
日暮里駅前中央ビルは、利便性に優れた立地と充実した設備が魅力のオフィスビルです。荒川区東日暮里6丁目に位置し、JR山手線、JR京浜東北線、JR常磐線、京成本線の日暮里駅から徒歩わずか2分というアクセスの良さが際立っています。さらに、東京メトロ千代田線の西日暮里駅も徒歩8分圏内にあり、主要な交通手段を自在に利用できる点が大きな強みです。 ビルは尾久橋通り沿いの角地に建っており、視認性が高く、訪問者にも非常にわかりやすい立地となっています。付近は飲食店や喫茶店が充実しており、ランチタイムの選択肢も豊富です。また、車通りも多く、車でのアクセスも良好です。こうした点は、通勤の利便性を高めるだけでなく、訪問者を迎える際にも大変便利です。 1993年竣工のこのビルは、新耐震基準を満たした鉄骨鉄筋コンクリート造の地上10階建て(地下1階)で、エントランスは御影石を使用した重厚感のあるデザインが印象的です。11人乗りのエレベーターが2基設置されており、スムーズな移動が可能です。また、23台分の駐車場が完備されているため、車での通勤にも対応しています。 内部設備も充実しており、個別空調やOAフロアが備わっているため、快適で効率的なオフィス環境が実現されています。トイレは室外に設置されており、男女別になっているため、使いやすさも考慮されています。さらに、24時間の使用が可能で、業務時間に縛られず柔軟に対応できる点も大きなメリットです。 セキュリティ面も万全で、エレベーター不停止機能や機械警備が完備されているため、安心してご利用いただけます。ぜひ一度、日暮里駅前中央ビルの内見にお越しいただき、その利便性と快適さを実感してください。
メゾン根岸は、東京都台東区根岸三丁目に位置する、魅力的なオフィスビルであり、1972年の竣工以来、多くの企業やクリニックにとって理想的なビジネス拠点を提供しています。本ビルは、鶯谷駅からわずか徒歩4分という絶好のロケーションにあり、鉄骨鉄筋コンクリート造の建築により、耐震性に優れた安全な環境を備えています。ここでは、メゾン根岸の特徴、立地、設備などの重要な点を詳細に解説し、その独自の魅力とビジネスにおける利点を強調します。 【特徴】 メゾン根岸は、耐震性に優れる鉄骨鉄筋コンクリート造の建築であり、安全性に対する高い配慮がなされています。また、居抜き物件として提供されるため、設備や家具が完備されており、入居者は初期投資を大幅に削減できることが大きな魅力です。内科やクリニックなどの医療施設としても利用可能で、即時に業務を開始できる利便性を提供します。 【立地】 鶯谷駅から徒歩4分という立地は、東京都内でビジネスを展開する上で非常に魅力的です。アクセスの良さは、従業員や顧客にとって大きな利点となります。また、周辺には飲食店や業務スーパー、歯科クリニックなどの生活関連施設が充実しており、日常生活での利便性も高いです。 【設備・利点】 メゾン根岸は、設備が整った居抜き物件として、即戦力となるオフィス環境を提供します。内装や必要な家具が整っているため、新たなオフィス設計や家具購入の手間とコストを省けます。また、近隣にマンションや住宅が多いことから、地元住民をターゲットとしたビジネスにも最適です。裏路地に位置するため、交通量が少なく、静かな環境での業務に集中できるのも大きな利点です。 【まとめ】 メゾン根岸は、その優れた耐震性、魅力的な立地、設備の整った居抜き環境、そして静かで集中しやすい立地条件を兼ね備え、様々な業種に適したビジネス拠点としての利用が期待できます。医療関連のクリニックから、スタートアップ企業、さらには既存のビジネスの新たな拠点としても、多岐にわたるニーズに応えることができるでしょう。メゾン根岸は、ビジネスの成功をサポートする理想的な環境を提供します。
日暮里安永は、東日暮里5丁目にあるオフィスビルです。日暮里駅から徒歩2分の駅近物件です。千駄木駅からは徒歩14分です。1984年に竣工しました。鉄骨鉄筋コンクリート造により耐震性に優れています。エレベーターが2基あります。個別空調付きです。男女別トイレがあります。店舗や飲食店、クリニックとして利用できます。24時間利用が可能です。周辺には飲食店やクリニック、フィットネス施設があります。近隣には店舗ビルやビジネスホテルが立ち並んでいます。駅前の大通りに面しているため、駅利用者や歩行者が利用しやすいエリアです。
現在 1 ~ 37 棟 / 全 37 棟