パルム四谷7階の賃貸情報
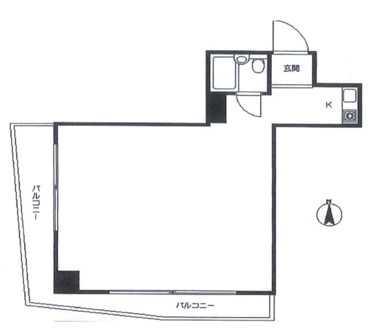
12.37 坪 (40.9m²)
※このサイトに記載がある賃貸条件は、敷金・保証金などの預かり金を除き、別途消費税がかかります。
パルム四谷の建物概要
設備詳細
| 空調 | - |
|---|---|
| トイレ | - |
| 床仕様 | - |
| エレベータ | 1 基 |
| 駐車場設備 | - |
| その他 | 新耐震基準 / SOHO/マンション / 24時間利用可 / 光ファイバー |
パルム四谷について
新宿区四谷2丁目に位置する「パルム四谷」は、中央本線および東京メトロ南北線「四ツ谷駅」から徒歩5分、丸ノ内線「四ツ谷駅」からも徒歩6分の場所に所在しています。周辺は多様なオフィスや住居が集まるエリアで、ビジネスにも居住にも利用されています。 本建物は地上10階建てで、基準階面積は53.73㎡です。SOHOやマンションとしての利用が想定されており、住居兼事務所や小規模オフィスなど、多様な働き方やライフスタイルを考える方に適した構造となっています。24時間の利用が可能なため、時間にとらわれない業務やフレックスな働き方にも対応しています。 光ファイバーが導入されているため、インターネット環境を必要とする事業にも適しています。また、新耐震基準を満たしている建物です。エレベーターは1基設置されています。 四ツ谷エリアで事務所やSOHO用途を検討される際の選択肢の一つとして、ご検討いただけます。詳細はお問い合わせください。
パルム四谷のこだわり
自分で探すより問い合わせる方が早いことがあります
WEB非公開物件があるから
オーナー様のご希望により「WEBでは非公開」にしている物件があります。 それらはWEBでいくら検索しても見つかりません。 先ずは条件などお知らせ頂けましたら非公開物件含め ピッタリのオフィスをご提案させて頂きます。 無理なお勧めはしておりませんので、お気軽にお問い合わせください。
対面でのご相談も受け付けております
ご来店も歓迎です
オフィス移転は社内・社外ともに非公開に行われることが殆どです。そのためアットオフィスでは、基本的に訪問によるコンサルティングを行っておりますが、ご来店の相談も歓迎です。お一人おひとりに親身にご対応させて頂きたい為、要予約とさせて頂いております。ご来店の際は先ずは下記よりご予約下さい。
四ツ谷/信濃町エリアでパルム四谷に似た条件の物件
読込中...
パルム四谷と同じ最寄駅の物件
読込中...
| 取扱様態 | 仲介 |
|---|---|
| 取扱会社 | 株式会社 アットオフィス |