※このサイトに記載がある賃貸条件は、敷金・保証金などの預かり金を除き、別途消費税がかかります。
物件情報
設備詳細
| 空調 | - |
|---|---|
| トイレ | - |
| 床仕様 | - |
| エレベータ | - |
| 駐車場設備 | - |
| その他 | - |
中川ビルの賃貸オフィス・事務所に関するお問い合わせ
中川ビルについて
川崎市幸区南幸町3丁目に位置する中川ビルは、南武線「尻手駅」から徒歩1分、「矢向駅」からは徒歩12分、「川崎駅」からも徒歩13分の立地です。複数の駅を利用できるため、南武線沿線の各方面への移動が可能です。建物は地上4階建となっており、周辺には住宅や事業所が点在しています。主要な幹線道路にも近く、周辺環境を活かした事業活動を考える際にも利用が想定できます。また、ビル全体で見ると、さまざまな業種のテナントや事務所など多様な利用をイメージすることができます。建物は落ち着いた街並みに調和し、地域に根ざした利用方法を検討いただけます。ご利用希望や詳細はお問い合わせください。
中川ビルのこだわり
自分で探すより問い合わせる方が早いことがあります
WEB非公開物件があるから
オーナー様のご希望により「WEBでは非公開」にしている物件があります。 それらはWEBでいくら検索しても見つかりません。 先ずは条件などお知らせ頂けましたら非公開物件含め ピッタリのオフィスをご提案させて頂きます。 無理なお勧めはしておりませんので、お気軽にお問い合わせください。
対面でのご相談も受け付けております
ご来店も歓迎です
オフィス移転は社内・社外ともに非公開に行われることが殆どです。そのためアットオフィスでは、基本的に訪問によるコンサルティングを行っておりますが、ご来店の相談も歓迎です。お一人おひとりに親身にご対応させて頂きたい為、要予約とさせて頂いております。ご来店の際は先ずは下記よりご予約下さい。
募集終了のテナント区画
| 階数 | 坪数 | 賃料 + 共益費 | 敷金/礼金敷金 礼金 | 検討 |
|---|---|---|---|---|
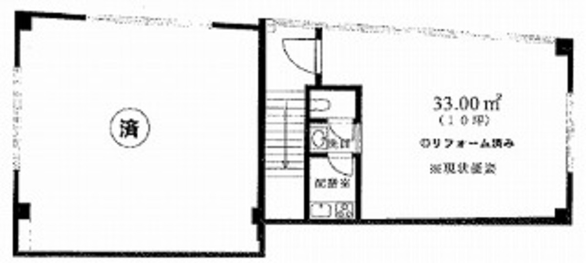
| 4階 | 10坪 (33.06m²) | 募集終了 | - | - |
| 4階 | 18.32坪 (60.57m²) | 募集終了 | - | - |
読込中...
川崎区エリアで中川ビルに似た条件の物件
読込中...
| 取扱様態 | 仲介 |
|---|---|
| 取扱会社 | 株式会社 アットオフィス |