※このサイトに記載がある賃貸条件は、敷金・保証金などの預かり金を除き、別途消費税がかかります。
物件情報
設備詳細
| 空調 | - |
|---|---|
| トイレ | - |
| 床仕様 | - |
| エレベータ | 2 基 |
| 駐車場設備 | 機械式駐車場 |
| その他 | 光ファイバー / 24時間利用可 / 機械警備 / 大型ビル / 新耐震基準 |
毎日日本橋ビルの賃貸オフィス・事務所に関するお問い合わせ
毎日日本橋ビルについて
毎日日本橋ビル(旧:西鉄日本)は、東京都中央区日本橋三丁目に位置する優れたオフィス賃貸物件です。その洗練されたデザインと充実した設備により、ビジネスの成功を支える理想的な環境を提供しています。 本ビルは、2012年に新耐震基準に基づいて竣工された大型ビルであり、最新の耐震技術を備えています。このため、地震に対する高い安全性を有しており、企業の安心感を高める要素となっています。さらに、免震構造も採用されているため、地震時の揺れを最小限に抑え、テナントの安全とビジネスの継続性を確保します。 立地に関しても、毎日日本橋ビルは非常に優れたポジションにあります。日本橋駅から徒歩3分という駅近の好立地に加えて、3つ以上の駅を利用できるアクセスの良さが特徴です。この利便性は、ビジネスパートナーや顧客との円滑な交通手段を提供し、ビジネスの効率を大幅に向上させます。 ビルの設備面では、基準階面積が200坪を超える大規模なオフィススペースを提供しており、多様なレイアウトや業務スタイルに対応可能です。オフィスフロアにはエレベーターが2基設置されており、効率的な移動が可能です。また、屋上にはテナント専用の喫煙・リフレッシュスペースが設けられており、社員のリフレッシュや健康管理をサポートします。 また、トイレは男女別になっており、テナントの快適性を高めています。24時間利用可能な点もポイントで、フレキシブルな働き方を支援します。さらに、ビル内には月極駐車場が完備されており、車での通勤や訪問者の利便性も確保されています。 総じて、毎日日本橋ビルは、最新の耐震技術と充実した設備、そして抜群の立地条件を兼ね備えたオフィスビルです。その結果、入居企業に対する多岐にわたるニーズに応え、ビジネスの成長を強力にサポートすることができます。このビルは、ビジネスの成功を求める企業にとって、理想的な選択肢となるでしょう。
自分で探すより問い合わせる方が早いことがあります
WEB非公開物件があるから
オーナー様のご希望により「WEBでは非公開」にしている物件があります。 それらはWEBでいくら検索しても見つかりません。 先ずは条件などお知らせ頂けましたら非公開物件含め ピッタリのオフィスをご提案させて頂きます。 無理なお勧めはしておりませんので、お気軽にお問い合わせください。
対面でのご相談も受け付けております
ご来店も歓迎です
オフィス移転は社内・社外ともに非公開に行われることが殆どです。そのためアットオフィスでは、基本的に訪問によるコンサルティングを行っておりますが、ご来店の相談も歓迎です。お一人おひとりに親身にご対応させて頂きたい為、要予約とさせて頂いております。ご来店の際は先ずは下記よりご予約下さい。
募集終了のテナント区画
| 階数 | 坪数 | 賃料 + 共益費 | 敷金/礼金敷金 礼金 | 検討 |
|---|---|---|---|---|
| 1階 | 48.4坪 (160m²) | 募集終了 | - | - |
| 1階 | 73.51坪 (243.01m²) | 募集終了 | - | - |
| 2階 | 204坪 (674.38m²) | 募集終了 | - | - |
| 2階 | 132.41坪 (437.72m²) | 募集終了 | - | - |
| 3階 | 204坪 (674.38m²) | 募集終了 | - | - |
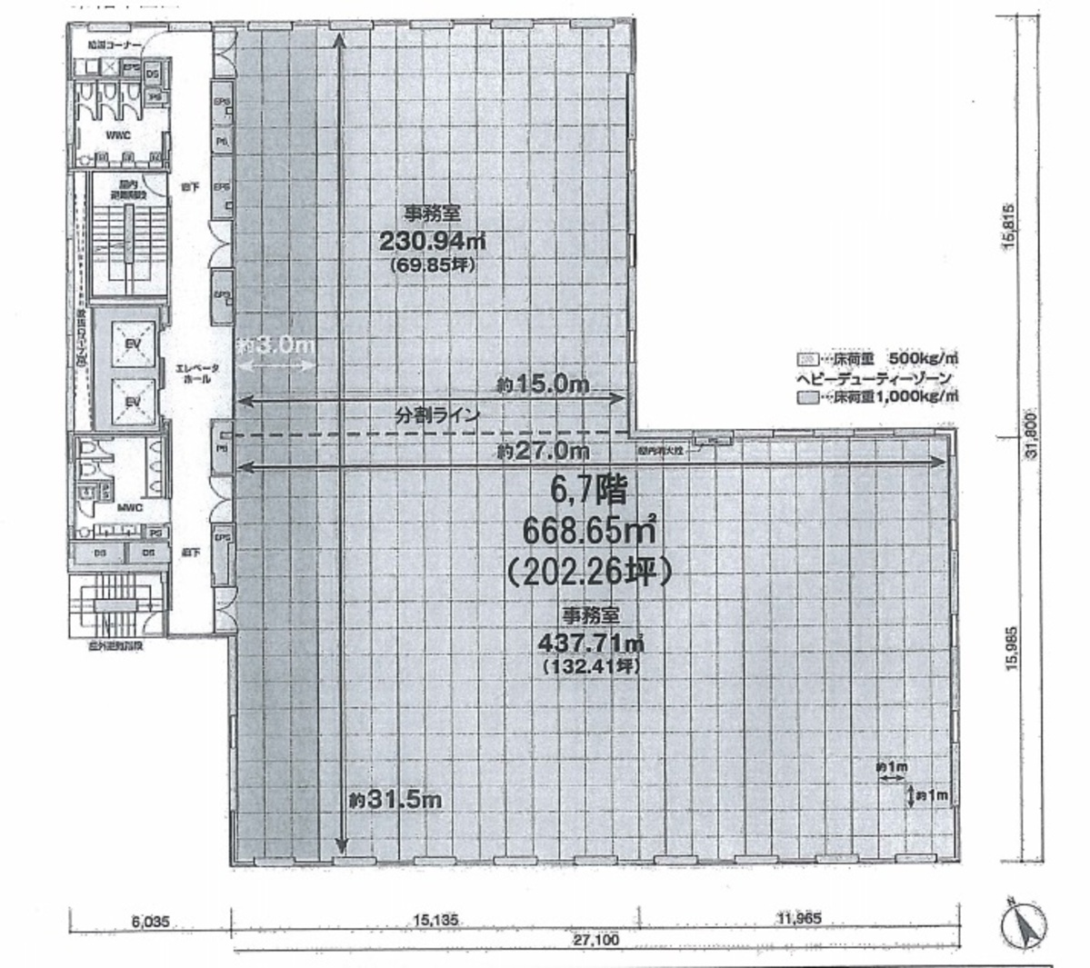
| 4階 | 202.26坪 (668.63m²) | 募集終了 | - | - |
| 5階 | 204坪 (674.38m²) | 募集終了 | - | - |
| 6階 | 202.26坪 (668.63m²) | 募集終了 | - | - |
| 6階 | 132.41坪 (437.72m²) | 募集終了 | - | - |
| 7階 | 202.26坪 (668.65m²) | 募集終了 | - | - |
| 8階 | 204坪 (674.38m²) | 募集終了 | - | - |
読込中...
近くのエリアで探してみる
八重洲/日本橋/三越前エリアで毎日日本橋ビルに似た条件の物件
読込中...
| 取扱様態 | 仲介 |
|---|---|
| 取扱会社 | 株式会社 アットオフィス |