押上駅前ビル4階の賃貸情報
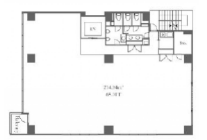
65.01 坪 (214.9m²)
1,004,700円 (坪:15,454 円)
※このサイトに記載がある賃貸条件は、敷金・保証金などの預かり金を除き、別途消費税がかかります。
押上駅前ビルの建物概要
設備詳細
| 空調 | 個別空調 |
|---|---|
| トイレ | 男女別トイレ室外 |
| 床仕様 | OA対応床(フリーアクセス) |
| エレベータ | 1 基 |
| 駐車場設備 | - |
| その他 | 新耐震基準 / 光ファイバー / 機械警備 |
部屋の雰囲気
押上駅前ビル4階の賃貸オフィス・事務所に関するお問い合わせ
押上駅前ビルについて
押上駅前ビルは、伊勢崎線「押上駅」から徒歩1分、半蔵門線「押上駅」からも徒歩1分、さらに浅草線「押上駅」から徒歩4分の立地に位置しています。都内主要エリアへの移動に便利な交通結節点にあるため、複数の路線を利用される法人のお客様にも検討しやすい環境です。所在地は墨田区業平4丁目で、近隣にはビジネスと生活の両面を支える各種店舗や施設が集まっています。 建物は地上8階建ての構成となっており、用途や事業規模に応じた多様な使い方が可能です。特に、フロアの配置や動線を工夫することで、事務所や各種サービス業の拠点として計画的に利用することができます。ビルには新耐震基準が採用され、光ファイバーが導入されていますので、企業活動の基本的なインフラにも対応しています。 周辺環境や交通アクセスに配慮したオフィス拠点や事業拡張の候補としてご検討いただけます。詳細はお問い合わせください。
自分で探すより問い合わせる方が早いことがあります
WEB非公開物件があるから
オーナー様のご希望により「WEBでは非公開」にしている物件があります。 それらはWEBでいくら検索しても見つかりません。 先ずは条件などお知らせ頂けましたら非公開物件含め ピッタリのオフィスをご提案させて頂きます。 無理なお勧めはしておりませんので、お気軽にお問い合わせください。
対面でのご相談も受け付けております
ご来店も歓迎です
オフィス移転は社内・社外ともに非公開に行われることが殆どです。そのためアットオフィスでは、基本的に訪問によるコンサルティングを行っておりますが、ご来店の相談も歓迎です。お一人おひとりに親身にご対応させて頂きたい為、要予約とさせて頂いております。ご来店の際は先ずは下記よりご予約下さい。
墨田区エリアで押上駅前ビルに似た条件の物件
読込中...
押上駅前ビルと同じ最寄駅の物件
読込中...
| 取扱様態 | 仲介 |
|---|---|
| 取扱会社 | 株式会社 アットオフィス |