※このサイトに記載がある賃貸条件は、敷金・保証金などの預かり金を除き、別途消費税がかかります。
物件情報
設備詳細
| 空調 | - |
|---|---|
| トイレ | - |
| 床仕様 | - |
| エレベータ | - |
| 駐車場設備 | - |
| その他 | 新耐震基準 |
KMパークサイドビルの賃貸オフィス・事務所に関するお問い合わせ
KMパークサイドビルについて
KMパークサイドビルは、相模原市南区上鶴間本町2丁目に位置しています。小田原線「町田駅」から徒歩4分、横浜線「町田駅」からは徒歩6分、小田原線「相模大野駅」から徒歩13分と、複数路線の駅が徒歩圏内にあり、交通手段の選択肢が確保されています。地上5階建ての構造で、周辺には多様な施設や店舗が点在しているエリアです。 建物は、5階建てであることから、規模や用途に応じたフロアの利用が可能となります。各階への導線もしっかりと確保されており、事務所やサービス拠点など、多様なビジネスシーンに対応しやすい構成です。敷地が所在する上鶴間本町2丁目は、周囲の環境と調和した落ち着いた街並みが特徴の一つとなっています。 町田駅周辺へのアクセス性が高いため、通勤や来客の動線も想定しやすい立地です。建物の規模や配置から、効率的なワークスペースのプランニングがしやすい点も挙げられます。詳細はお問い合わせください。
KMパークサイドビルのこだわり
自分で探すより問い合わせる方が早いことがあります
WEB非公開物件があるから
オーナー様のご希望により「WEBでは非公開」にしている物件があります。 それらはWEBでいくら検索しても見つかりません。 先ずは条件などお知らせ頂けましたら非公開物件含め ピッタリのオフィスをご提案させて頂きます。 無理なお勧めはしておりませんので、お気軽にお問い合わせください。
対面でのご相談も受け付けております
ご来店も歓迎です
オフィス移転は社内・社外ともに非公開に行われることが殆どです。そのためアットオフィスでは、基本的に訪問によるコンサルティングを行っておりますが、ご来店の相談も歓迎です。お一人おひとりに親身にご対応させて頂きたい為、要予約とさせて頂いております。ご来店の際は先ずは下記よりご予約下さい。
募集終了のテナント区画
| 階数 | 坪数 | 賃料 + 共益費 | 敷金/礼金敷金 礼金 | 検討 |
|---|---|---|---|---|
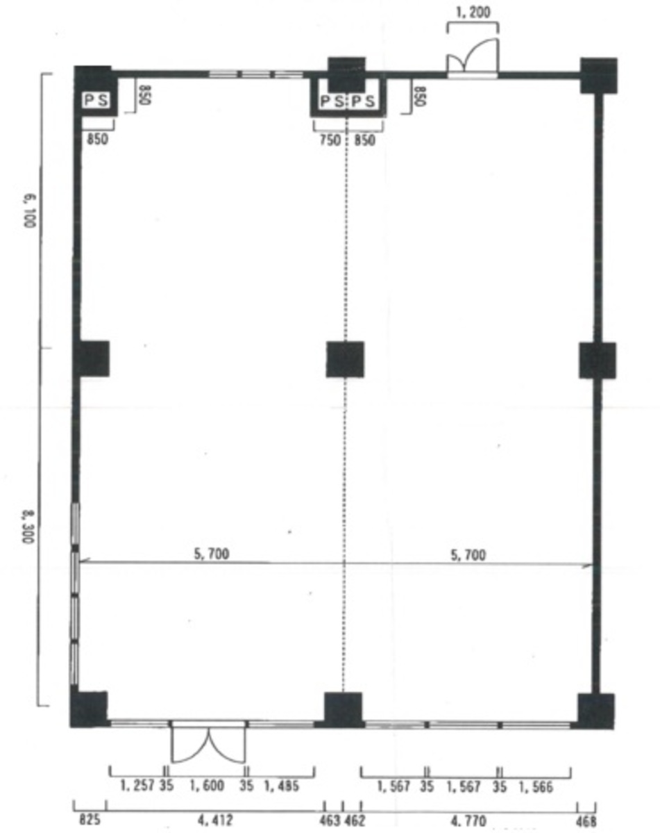
| 1階 | 50.06坪 (165.49m²) | 募集終了 | - | - |
読込中...
相模原市エリアでKMパークサイドビルに似た条件の物件
読込中...
| 取扱様態 | 仲介 |
|---|---|
| 取扱会社 | 株式会社 アットオフィス |