キタムラビル1階の賃貸情報
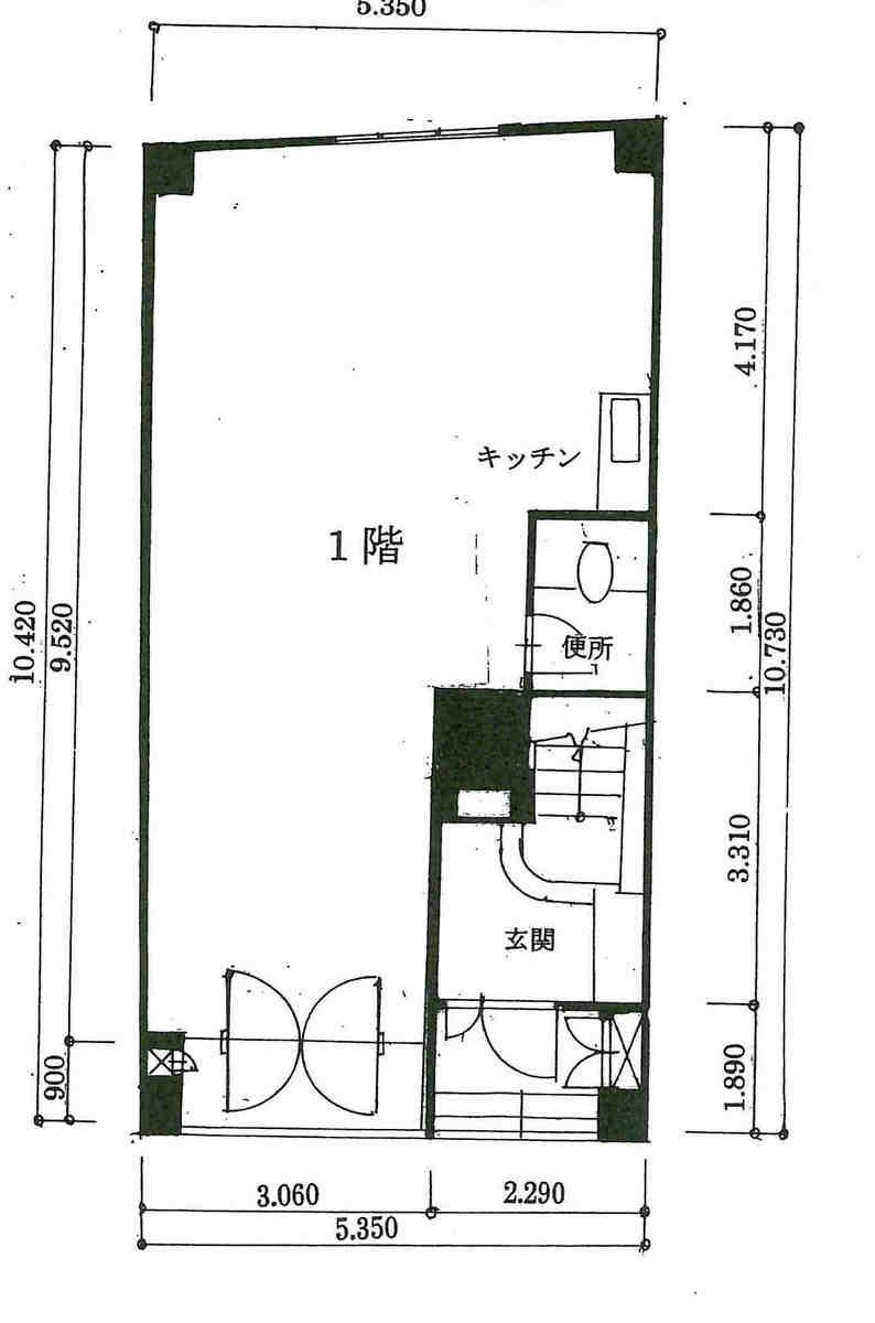
13.5 坪 (44.63m²)
※このサイトに記載がある賃貸条件は、敷金・保証金などの預かり金を除き、別途消費税がかかります。
キタムラビルの建物概要
設備詳細
| 空調 | 個別空調 |
|---|---|
| トイレ | - |
| 床仕様 | - |
| エレベータ | - |
| 駐車場設備 | - |
| その他 | 1階の物件 |
キタムラビル1階の賃貸オフィス・事務所に関するお問い合わせ
キタムラビルについて
キタムラは、中央区日本橋浜町2丁目に位置する地上4階建ての建物です。最寄り駅である都営新宿線「浜町駅」から徒歩3分の場所にあり、さらに半蔵門線「水天宮前駅」および日比谷線「人形町駅」も徒歩7分で利用できます。複数の路線が徒歩圏内に集まっているため、目的や状況に応じて使い分けることが可能です。 ビジネスエリアとして特色のある日本橋浜町に立地しており、近隣にはオフィスや商業施設が点在しています。建物は地上4階までの構成となっているため、フロアごとの利用計画や、業務内容に応じた空間の区分けがしやすい点が特徴です。駅からの距離や複数路線の利用環境を活かし、来客やスタッフの移動動線を考慮した運用が想定されます。 基準階面積や設備の詳細については記載がありませんが、中央区というロケーションやフロア構成を踏まえた上で、さまざまな法人活動の拠点としてご検討いただけます。詳細はお問い合わせください。
キタムラビルのこだわり
自分で探すより問い合わせる方が早いことがあります
WEB非公開物件があるから
オーナー様のご希望により「WEBでは非公開」にしている物件があります。 それらはWEBでいくら検索しても見つかりません。 先ずは条件などお知らせ頂けましたら非公開物件含め ピッタリのオフィスをご提案させて頂きます。 無理なお勧めはしておりませんので、お気軽にお問い合わせください。
対面でのご相談も受け付けております
ご来店も歓迎です
オフィス移転は社内・社外ともに非公開に行われることが殆どです。そのためアットオフィスでは、基本的に訪問によるコンサルティングを行っておりますが、ご来店の相談も歓迎です。お一人おひとりに親身にご対応させて頂きたい為、要予約とさせて頂いております。ご来店の際は先ずは下記よりご予約下さい。
近くのエリアで探してみる
人形町/馬喰町/浜町エリアでキタムラビルに似た条件の物件
読込中...
キタムラビルと同じ最寄駅の物件
読込中...
| 取扱様態 | 仲介 |
|---|---|
| 取扱会社 | 株式会社 アットオフィス |