※このサイトに記載がある賃貸条件は、敷金・保証金などの預かり金を除き、別途消費税がかかります。
物件情報
設備詳細
| 空調 | 個別空調 |
|---|---|
| トイレ | 男女共用トイレ・室内 |
| 床仕様 | - |
| エレベータ | 1 基 |
| 駐車場設備 | 機械式駐車場 |
| その他 | 管理人常駐 |
太平町ビルの賃貸オフィス・事務所に関するお問い合わせ
太平町ビルについて
太平町ビルは、墨田区太平1丁目に所在し、地上9階建ての建物です。半蔵門線「錦糸町駅」へ徒歩7分、総武線「錦糸町駅」へ徒歩8分、さらに半蔵門線「押上駅」へも徒歩9分でアクセス可能な立地となっています。複数の駅を利用できるため、各方面からのアプローチも可能です。 周辺はオフィスや商業施設が点在するエリアで、日常業務や拠点運営に適した環境が広がっています。建物内にはエレベーターが1基設置されており、上層階や荷物搬入時の移動にも配慮された構造です。地上9階建てのため、フロアごとに独立した空間の利用も想定できます。 法人の事務所や営業拠点として、交通手段が確保しやすいことが特徴の一つと言えるでしょう。周辺には飲食店やコンビニエンスストアなどもあり、働く方々の日常にも便利な環境が整っています。 利用フロアや具体的なスペース構成については、お問い合わせにてご案内いたします。詳細はお問い合わせください。
太平町ビルのこだわり
自分で探すより問い合わせる方が早いことがあります
WEB非公開物件があるから
オーナー様のご希望により「WEBでは非公開」にしている物件があります。 それらはWEBでいくら検索しても見つかりません。 先ずは条件などお知らせ頂けましたら非公開物件含め ピッタリのオフィスをご提案させて頂きます。 無理なお勧めはしておりませんので、お気軽にお問い合わせください。
対面でのご相談も受け付けております
ご来店も歓迎です
オフィス移転は社内・社外ともに非公開に行われることが殆どです。そのためアットオフィスでは、基本的に訪問によるコンサルティングを行っておりますが、ご来店の相談も歓迎です。お一人おひとりに親身にご対応させて頂きたい為、要予約とさせて頂いております。ご来店の際は先ずは下記よりご予約下さい。
募集終了のテナント区画
| 階数 | 坪数 | 賃料 + 共益費 | 敷金/礼金敷金 礼金 | 検討 |
|---|---|---|---|---|
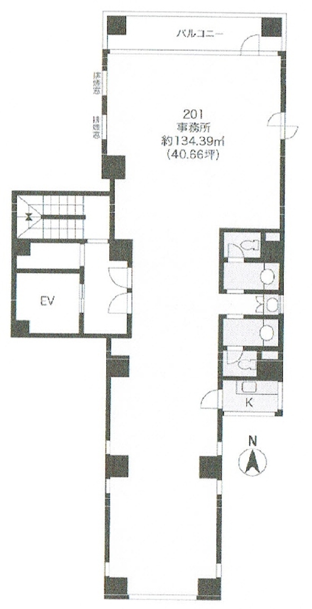
| 2階 | 40.65坪 (134.39m²) | 募集終了 | - | - |
| 4階 | 19.06坪 (63.01m²) | 募集終了 | - | - |
| 5階 | 19.02坪 (62.87m²) | 募集終了 | - | - |
| 6階 | 19.02坪 (62.9m²) | 募集終了 | - | - |
読込中...
墨田区エリアで太平町ビルに似た条件の物件
読込中...
| 取扱様態 | 仲介 |
|---|---|
| 取扱会社 | 株式会社 アットオフィス |