※このサイトに記載がある賃貸条件は、敷金・保証金などの預かり金を除き、別途消費税がかかります。
物件情報
設備詳細
| 空調 | - |
|---|---|
| トイレ | - |
| 床仕様 | - |
| エレベータ | 1 基 |
| 駐車場設備 | - |
| その他 | 新耐震基準 / クリニック / スケルトン / 店舗可(飲食可) / フリーレント / 天井高3m以上 |
Reve南青山の賃貸オフィス・事務所に関するお問い合わせ
Reve南青山について
東京都港区南青山に位置するReve南青山ビルは、その洗練されたデザインと一等地の立地で、ビジネスオフィスとしての魅力を十分に発揮しています。2006年に竣工されたこのビルは、4階建てで基準階約35坪の広さを誇り、特にその天井高3200mmは開放感あふれる空間を提供しております。エレベーターは1基設置されており、機能性と利便性を兼ね備えています。 Reve南青山ビルが立地する南青山エリアは、その閑静な街並みとともに、青山通りに出れば郵便局やコンビニ、そして様々な飲食店が利用可能という利便性の高さが魅力です。最寄り駅は外苑前駅であり、表参道駅も徒歩圏内にあるため、都心へのアクセスも抜群です。 この物件の外観は、ガラス張りのスタイリッシュなデザインが特徴で、現代的なビジネスシーンを象徴しています。そのため、クリエイティブな業界の企業や、美容室やカフェなどのサービス業の移転・開業に最適な環境を提供しています。また、飲食店舗やサービス店舗の出店もご相談可能であり、ビジネスの可能性を広げるための柔軟なサポートも魅力の一つです。 周辺にはおしゃれなアパレルショップやサロンが並び、ビジネスだけでなくライフスタイルにも富んだ環境が整っています。そのため、Reve南青山ビルは、働く人々にとって刺激となるような環境が整っており、ビジネスのみならず、クリエイティブな発想や新たな出会いにも富んだ場所となっています。 ビジネスの成功には、立地や環境が大きく影響します。Reve南青山ビルは、そのどちらも兼ね備えた理想的なオフィス物件です。あなたのビジネスの拠点として、このReve南青山ビルで新たな一歩を踏み出しませんか?その魅力あふれる空間で、ビジネスのさらなる飛躍を実現させてください。
Reve南青山のこだわり
自分で探すより問い合わせる方が早いことがあります
WEB非公開物件があるから
オーナー様のご希望により「WEBでは非公開」にしている物件があります。 それらはWEBでいくら検索しても見つかりません。 先ずは条件などお知らせ頂けましたら非公開物件含め ピッタリのオフィスをご提案させて頂きます。 無理なお勧めはしておりませんので、お気軽にお問い合わせください。
対面でのご相談も受け付けております
ご来店も歓迎です
オフィス移転は社内・社外ともに非公開に行われることが殆どです。そのためアットオフィスでは、基本的に訪問によるコンサルティングを行っておりますが、ご来店の相談も歓迎です。お一人おひとりに親身にご対応させて頂きたい為、要予約とさせて頂いております。ご来店の際は先ずは下記よりご予約下さい。
募集終了のテナント区画
| 階数 | 坪数 | 賃料 + 共益費 | 敷金/礼金敷金 礼金 | 検討 |
|---|---|---|---|---|
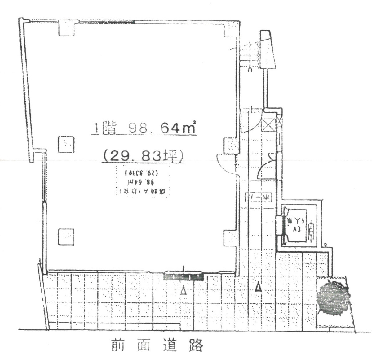
| 1階 | 29.83坪 (98.64m²) | 募集終了 | - | - |
| 3階 | 35.5坪 (117.36m²) | 募集終了 | - | - |
読込中...
青山エリアでReve南青山に似た条件の物件
読込中...
| 取扱様態 | 仲介 |
|---|---|
| 取扱会社 | 株式会社 アットオフィス |