※このサイトに記載がある賃貸条件は、敷金・保証金などの預かり金を除き、別途消費税がかかります。
物件情報
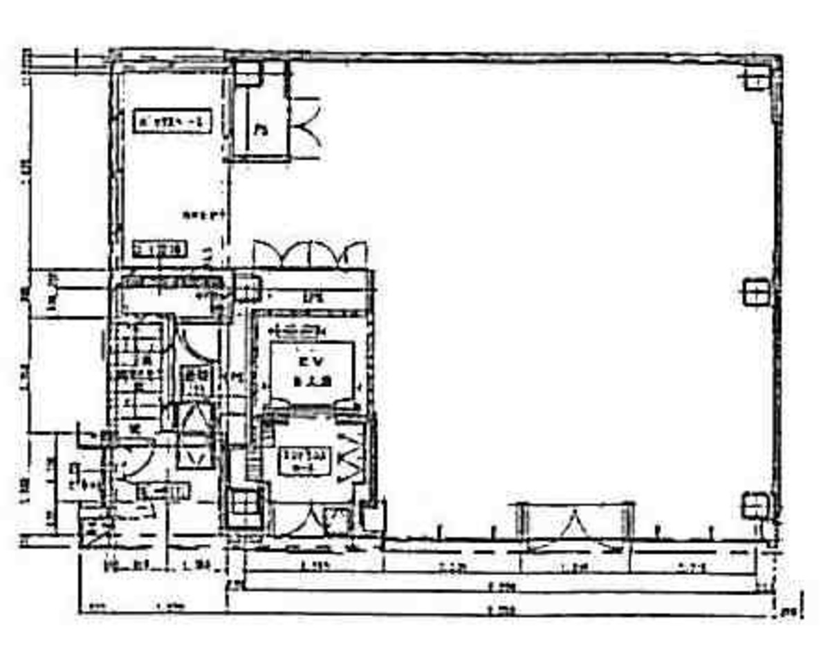
設備詳細
| 空調 | 個別空調 |
|---|---|
| トイレ | 男女共用トイレ・室内 |
| 床仕様 | OA対応床(フリーアクセス) |
| エレベータ | 1 基 |
| 駐車場設備 | 空無 |
| その他 | 機械警備 / 24時間利用可 / 光ファイバー / 新耐震基準 |
クローバー青山・ONEの賃貸オフィス・事務所に関するお問い合わせ
クローバー青山・ONEについて
青山通りに面した魅力溢れる貸事務所、クローバー青山・ONEビルの世界へようこそ。2008年に竣工されたこの物件は、最新の耐震基準に準拠しており、安全性と快適性を兼ね備えた築浅のオフィスビルです。青山一丁目駅からわずか徒歩1分という抜群の立地に加え、三つの駅が利用可能な好立地は、このビルがビジネスの中心地として絶好の位置にあることを証明しています。 外観は、通行人の目を引くガラスウォールで構成され、都市の景観に新たな息吹をもたらしています。そのデザインは、現代性と洗練された美しさを象徴しており、企業のイメージアップにも寄与することでしょう。また、大きな窓からは自然光がたっぷりと室内に流れ込み、作業空間を明るく快適に保ちます。 このビルは、OAフロアを完備し、天井も高く設計されているため、広々とした空間での仕事が可能です。これは、クリエイティブな作業や集中力を要する業務を行うにあたり、大いに役立つことでしょう。また、24時間利用可能で機械警備も完備されており、セキュリティ面でも安心して業務を行うことができます。 北青山1丁目(港区)に所在し、SOHOや事務所利用が相談可能なこの物件は、多様なビジネスニーズに対応できる柔軟性を持っています。ビル内には駐車場も設けられており、空き状況に関してはお問い合わせいただくことが可能です。エレベーターは1機設置されており、スムーズな移動をサポートします。 クローバー青山・ONEビルは、その立地、設備、安全性を兼ね備えたハイグレードなオフィスビルとして、ビジネスの拠点となる場所をお探しの企業に最適な選択肢です。このビルでのオフィスライフは、従業員にとっても、訪れるクライアントにとっても、快適で印象深いものとなるでしょう。クローバー青山・ONEビルで、あなたのビジネスを次のレベルへと導いてみませんか?
クローバー青山・ONEのこだわり
自分で探すより問い合わせる方が早いことがあります
WEB非公開物件があるから
オーナー様のご希望により「WEBでは非公開」にしている物件があります。 それらはWEBでいくら検索しても見つかりません。 先ずは条件などお知らせ頂けましたら非公開物件含め ピッタリのオフィスをご提案させて頂きます。 無理なお勧めはしておりませんので、お気軽にお問い合わせください。
対面でのご相談も受け付けております
ご来店も歓迎です
オフィス移転は社内・社外ともに非公開に行われることが殆どです。そのためアットオフィスでは、基本的に訪問によるコンサルティングを行っておりますが、ご来店の相談も歓迎です。お一人おひとりに親身にご対応させて頂きたい為、要予約とさせて頂いております。ご来店の際は先ずは下記よりご予約下さい。
募集終了のテナント区画
| 階数 | 坪数 | 賃料 + 共益費 | 敷金/礼金敷金 礼金 | 検討 |
|---|---|---|---|---|
| 1階 | 23.72坪 (78.41m²) | 募集終了 | - | - |
| 2階 | 23.31坪 (77.07m²) | 募集終了 | - | - |
| 4階 | 23.62坪 (78.09m²) | 募集終了 | - | - |
| 5階 | 23.62坪 (78.09m²) | 募集終了 | - | - |
| 6階 | 23.62坪 (78.08m²) | 募集終了 | - | - |
| 7階 | 23.62坪 (78.09m²) | 募集終了 | - | - |
| 8階 | 23.62坪 (78.09m²) | 募集終了 | - | - |
| 9階 | 23.62坪 (78.09m²) | 募集終了 | - | - |
| 10階 | 23.62坪 (78.08m²) | 募集終了 | - | - |
読込中...
青山エリアでクローバー青山・ONEに似た条件の物件
読込中...
| 取扱様態 | 仲介 |
|---|---|
| 取扱会社 | 株式会社 アットオフィス |