※このサイトに記載がある賃貸条件は、敷金・保証金などの預かり金を除き、別途消費税がかかります。
物件情報
設備詳細
| 空調 | 個別空調 |
|---|---|
| トイレ | 男女別トイレ / 男女別トイレ室内 |
| 床仕様 | - |
| エレベータ | 1 基 / エレベーター有 |
| 駐車場設備 | - |
| その他 | 光ファイバー / 機械警備 / 24時間利用可 / 新耐震基準 |
VORT浜松町Ⅱの賃貸オフィス・事務所に関するお問い合わせ
VORT浜松町Ⅱについて
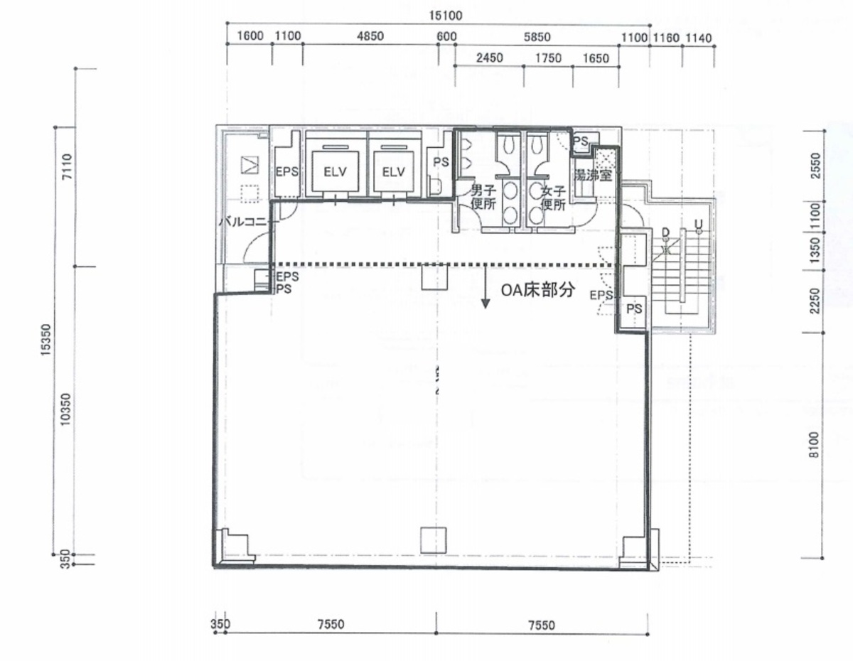
東京都港区浜松町に位置するVORT浜松町Ⅱは、1992年に竣工された地上10階建ての賃貸オフィスビルです。この地区は、ビジネスと交通の要所として高い評価を受けており、浜松町や大門、御成門といった複数の駅が徒歩圏内にあります。特に、都営浅草線・都営大江戸線の大門駅からはわずか徒歩1分、JR各線・東京モノレール線の浜松町駅からも徒歩6分という、非常にアクセスの良い立地にあります。また、羽田空港へのアクセスもスムーズであり、ビジネスシーンにおいて大きな利点となるでしょう。 VORT浜松町Ⅱは、新耐震基準を満たした鉄骨鉄筋コンクリート造の建物で、基準階貸室面積は約61.85坪。床仕様はOAフロアで、個別空調システムを備え、快適なオフィス環境を提供しています。また、光ケーブルの導入が可能で、高速インターネット環境も確保されています。各階には男女別のトイレが設置されており、エレベーターは2基が設置されています。これらの設備は、ビル入居者が快適に過ごすための基本条件をしっかりと満たしています。 2012年には、1階エントランスの美装化工事と空調機の更新が行われ、ビルの魅力が一層向上しました。白を基調としたエントランスや石貼りの外観は高級感を演出し、角地に位置するための視認性の良さも特長の一つです。また、日当たりも良好で、窓からは東京タワーの眺望を楽しむことができるフロアもあります。 周辺環境としては、オフィス街でありながら飲食店やコンビニ、銀行や郵便局といった生活に必要な施設が充実しています。ランチやちょっとした買い物、急な用事で銀行や郵便局を利用する際も、徒歩圏内で済ますことができる便利さがあります。 市場における相場観としては、港区浜松町エリアは首都圏の中でも特にオフィス需要が高い地域の一つです。アクセスの良さ、周辺環境の充実、そしてビルの品質が高いため、中小企業から大企業まで幅広いテナントに選ばれています。VORT浜松町Ⅱは、これらの条件を満たすとともに、特に立地と設備の面で優れた選択肢となり得ます。ビジネスの拠点として、または新たなオフィス移転先として、このビルは多くの企業にとって魅力的なオプションの一つと言えるでしょう。
VORT浜松町Ⅱのこだわり
自分で探すより問い合わせる方が早いことがあります
WEB非公開物件があるから
オーナー様のご希望により「WEBでは非公開」にしている物件があります。 それらはWEBでいくら検索しても見つかりません。 先ずは条件などお知らせ頂けましたら非公開物件含め ピッタリのオフィスをご提案させて頂きます。 無理なお勧めはしておりませんので、お気軽にお問い合わせください。
対面でのご相談も受け付けております
ご来店も歓迎です
オフィス移転は社内・社外ともに非公開に行われることが殆どです。そのためアットオフィスでは、基本的に訪問によるコンサルティングを行っておりますが、ご来店の相談も歓迎です。お一人おひとりに親身にご対応させて頂きたい為、要予約とさせて頂いております。ご来店の際は先ずは下記よりご予約下さい。
募集終了のテナント区画
| 階数 | 坪数 | 賃料 + 共益費 | 敷金/礼金敷金 礼金 | 検討 |
|---|---|---|---|---|
| 2階 | 56.72坪 (187.53m²) | 募集終了 | - | - |
| 3階 | 61.85坪 (204.46m²) | 募集終了 | - | - |
| 4階 | 61.85坪 (204.48m²) | 募集終了 | - | - |
| 5階 | 61.85坪 (204.46m²) | 募集終了 | - | - |
| 7階 | 61.85坪 (204.48m²) | 募集終了 | - | - |
| 8階 | 62.19坪 (205.61m²) | 募集終了 | - | - |
| 10階 | 62.72坪 (207.37m²) | 募集終了 | - | - |
読込中...
近くのエリアで探してみる
浜松町/田町/芝公園エリアでVORT浜松町Ⅱに似た条件の物件
読込中...
| 取扱様態 | 仲介 |
|---|---|
| 取扱会社 | 株式会社 アットオフィス |