※このサイトに記載がある賃貸条件は、敷金・保証金などの預かり金を除き、別途消費税がかかります。
物件情報
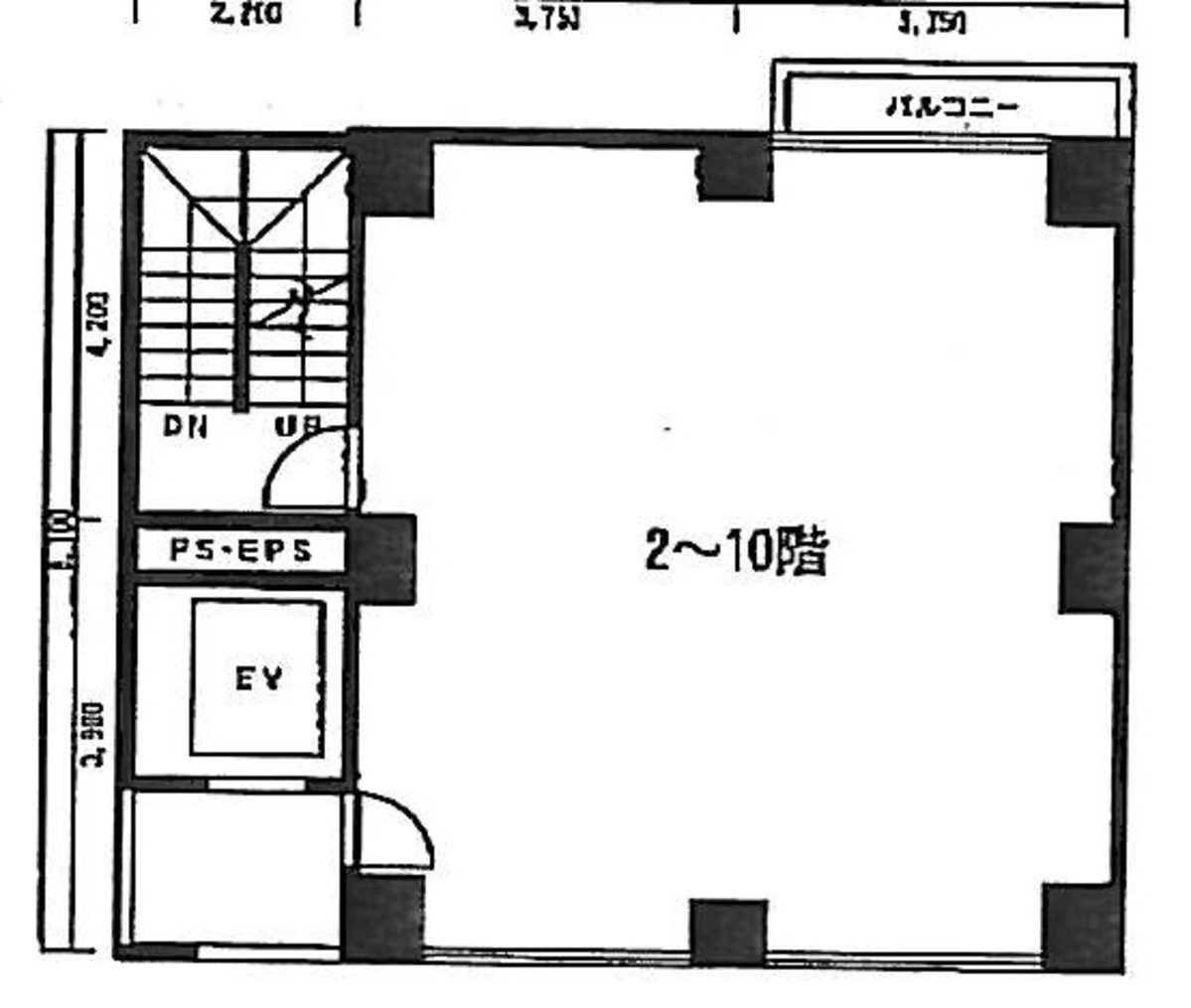
設備詳細
| 空調 | - |
|---|---|
| トイレ | - |
| 床仕様 | - |
| エレベータ | 1 基 |
| 駐車場設備 | - |
| その他 | 新耐震基準 |
銀座745ビルの賃貸オフィス・事務所に関するお問い合わせ
銀座745ビルについて
TECGINZAビルは、東京のダイナミックな中心、銀座7丁目に位置するプレミアムオフィス賃貸物件です。このビルは、ビジネスの核心地において際立つ存在感と機能性を兼ね備え、企業にとって理想の拠点を提供します。今回は、TECGINZAビルの特徴、立地、設備の細部にわたり、その魅力を深堀りしていきます。 【立地の優位性】 銀座7丁目、花椿通りに面したTECGINZAビルは、その視認性の良さが際立ちます。このエリアは、ビジネスと文化が融合する東京の中でも特に活気があり、多くの企業が集まる場所です。また、交通アクセスの良さも見逃せません。複数の地下鉄線が利用でき、都内各所はもちろん、首都圏外への移動も容易になります。このように、TECGINZAビルは、ビジネスの機会を最大限に引き出す理想的な立地条件を備えています。 【設備の高さ】 TECGINZAビルは、最新の設備とスペックの良さが自慢です。ビル内には1機のエレベーターが設置されており、快適な移動を実現します。また、オフィスフロアは、現代のビジネスニーズに応えるための高スペック設計が施されています。先進的な空調システム、高速インターネット接続、セキュリティシステムなど、働く人々の快適性と生産性の向上を支える設備が整っています。こうした設備の充実が、テナント企業のビジネスを強力にサポートします。 【ビルの独自性とビジネス利点】 TECGINZAビルの魅力は、その独自性にもあります。花椿通りという銀座の中心地に面していることで、企業のブランド価値を高める絶好のロケーションを提供します。また、ビルのデザインは、周囲の景観と調和しつつも、モダンでスタイリッシュな外観が特徴です。このように、TECGINZAビルは、ビジネスの成功を後押しするだけでなく、企業イメージを向上させる要素を多数備えています。 総じて、TECGINZAビルは、その立地の優位性、最先端の設備、そしてビル自体の独自性が融合した、ビジネスのための最高の空間を提供します。ここにオフィスを構えることで、企業はパフォーマンスの向上はもちろん、ビジネスの可能性をさらに広げることができるでしょう。
銀座745ビルのこだわり
自分で探すより問い合わせる方が早いことがあります
WEB非公開物件があるから
オーナー様のご希望により「WEBでは非公開」にしている物件があります。 それらはWEBでいくら検索しても見つかりません。 先ずは条件などお知らせ頂けましたら非公開物件含め ピッタリのオフィスをご提案させて頂きます。 無理なお勧めはしておりませんので、お気軽にお問い合わせください。
対面でのご相談も受け付けております
ご来店も歓迎です
オフィス移転は社内・社外ともに非公開に行われることが殆どです。そのためアットオフィスでは、基本的に訪問によるコンサルティングを行っておりますが、ご来店の相談も歓迎です。お一人おひとりに親身にご対応させて頂きたい為、要予約とさせて頂いております。ご来店の際は先ずは下記よりご予約下さい。
募集終了のテナント区画
| 階数 | 坪数 | 賃料 + 共益費 | 敷金/礼金敷金 礼金 | 検討 |
|---|---|---|---|---|
| B1階 | 20.48坪 (67.7m²) | 募集終了 | - | - |
| 1階 | 15.79坪 (52.2m²) | 募集終了 | - | - |
| 2階 | 18.66坪 (61.69m²) | 募集終了 | - | - |
| 3階 | 18.66坪 (61.69m²) | 募集終了 | - | - |
| 4階 | 18.66坪 (61.69m²) | 募集終了 | - | - |
| 5階 | 19.65坪 (64.95m²) | 募集終了 | - | - |
| 6階 | 18.66坪 (61.69m²) | 募集終了 | - | - |
| 7階 | 18.66坪 (61.69m²) | 募集終了 | - | - |
| 8階 | 19.65坪 (64.95m²) | 募集終了 | - | - |
| 9階 | 18.66坪 (61.69m²) | 募集終了 | - | - |
| 10階 | 18.66坪 (61.69m²) | 募集終了 | - | - |
読込中...
銀座エリアで銀座745ビルに似た条件の物件
読込中...
| 取扱様態 | 仲介 |
|---|---|
| 取扱会社 | 株式会社 アットオフィス |