タスクセンタービルの賃料条件
| 階数 | 坪数 | 賃料 + 共益費 | 敷金/礼金敷金 礼金 | 検討 |
|---|---|---|---|---|
| 1階 | 40.35坪 (133.43m²) | お問合せ下さい (坪:-) | 10ヶ月 無10ヶ月/無 | |
| 2階 | 37.25坪 (123.16m²) | お問合せ下さい (坪:-) | 10ヶ月 無10ヶ月/無 |
※このサイトに記載がある賃貸条件は、敷金・保証金などの預かり金を除き、別途消費税がかかります。
物件情報
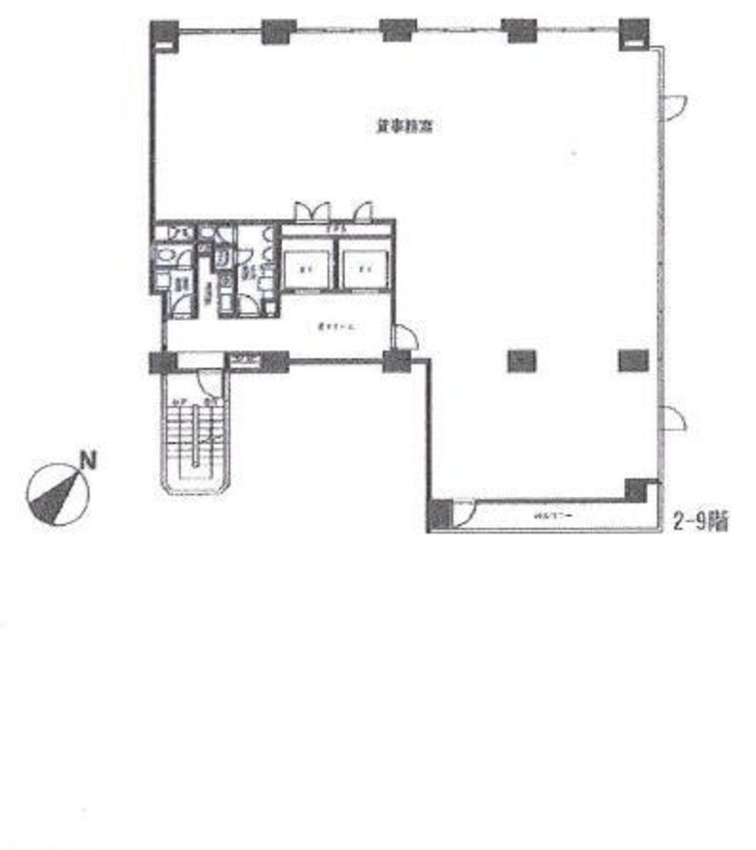
設備詳細
| 空調 | - |
|---|---|
| トイレ | 男女別トイレ室外 |
| 床仕様 | - |
| エレベータ | 2 基 |
| 駐車場設備 | 空有 / 機械式駐車場 |
| その他 | 機械警備 / 24時間利用可 / 新耐震基準 / クリニック / フリーレント / 1階の物件 / 店舗可(飲食可) |
タスクセンタービルの賃貸オフィス・事務所に関するお問い合わせ
タスクセンタービルについて
グレーの石造りの存在感たっぷりの外観をしたオフィスビルです。 高島町駅と桜木町駅から徒歩でアクセスできる交通利便性の高い場所に立地しています。 主な設備は、男女別トイレ・機械警備システム・個別空調やエレベーター2基、機械式の駐車場を併設しています。
自分で探すより問い合わせる方が早いことがあります
WEB非公開物件があるから
オーナー様のご希望により「WEBでは非公開」にしている物件があります。 それらはWEBでいくら検索しても見つかりません。 先ずは条件などお知らせ頂けましたら非公開物件含め ピッタリのオフィスをご提案させて頂きます。 無理なお勧めはしておりませんので、お気軽にお問い合わせください。
WEBから条件問い合わせをする(無料)
対面でのご相談も受け付けております
ご来店も歓迎です
オフィス移転は社内・社外ともに非公開に行われることが殆どです。そのためアットオフィスでは、基本的に訪問によるコンサルティングを行っておりますが、ご来店の相談も歓迎です。お一人おひとりに親身にご対応させて頂きたい為、要予約とさせて頂いております。ご来店の際は先ずは下記よりご予約下さい。
来店予約をする
募集終了のテナント区画
| 階数 | 坪数 | 賃料 + 共益費 | 敷金/礼金敷金 礼金 | 検討 |
|---|---|---|---|---|
| 1階 | 44.08坪 (145.75m²) | 募集終了 | - | - |
| 1階 | 23.74坪 (78.49m²) | 募集終了 | - | - |
| 2階 | 24.26坪 (80.23m²) | 募集終了 | - | - |
| 3階 | 70.78坪 (233.98m²) | 募集終了 | - | - |
| 3階 | 37.25坪 (123.16m²) | 募集終了 | - | - |
| 3階 | 24.26坪 (80.23m²) | 募集終了 | - | - |
| 4階 | 24.26坪 (80.19m²) | 募集終了 | - | - |
| 5階 | 70.78坪 (233.98m²) | 募集終了 | - | - |
| 6階 | 70.78坪 (233.98m²) | 募集終了 | - | - |
| 7階 | 70.78坪 (233.98m²) | 募集終了 | - | - |
| 8階 | 72.84坪 (240.82m²) | 募集終了 | - | - |
| 9階 | 72.84坪 (240.82m²) | 募集終了 | - | - |
読込中...
西区エリアでタスクセンタービルに似た条件の物件
読込中...
| 取扱様態 | 仲介 |
|---|---|
| 取扱会社 | 株式会社 アットオフィス |