※このサイトに記載がある賃貸条件は、敷金・保証金などの預かり金を除き、別途消費税がかかります。
物件情報
設備詳細
| 空調 | - |
|---|---|
| トイレ | - |
| 床仕様 | - |
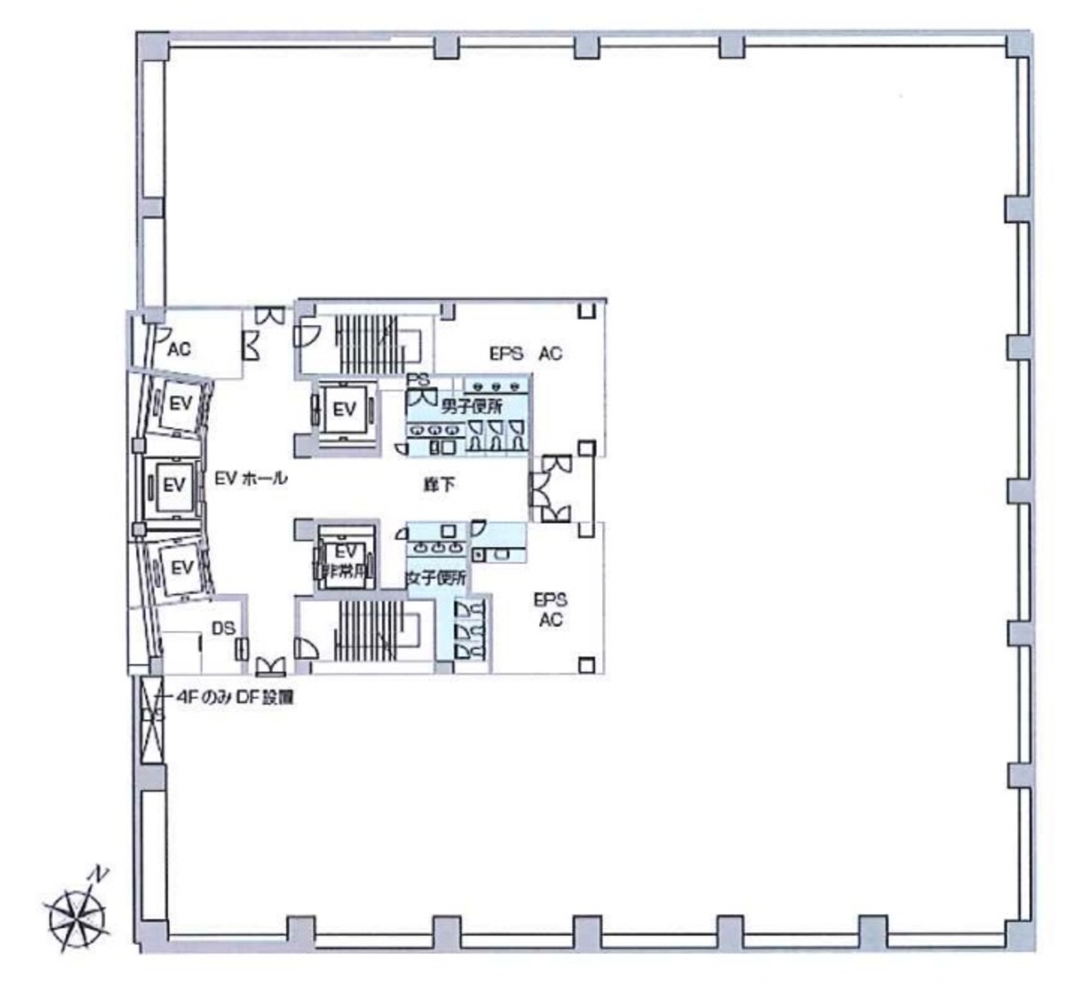
| エレベータ | 5 基 |
| 駐車場設備 | - |
| その他 | 大型ビル / 光ファイバー / 新耐震基準 |
D-LIFEPLACE南青山の賃貸オフィス・事務所に関するお問い合わせ
D-LIFEPLACE南青山について
D-LIFEPLACE南青山(旧:南青山ブライトスクエア)は、東京都港区南青山に位置する、高品質な賃貸オフィスビルです。この物件は、そのデザインと機能性において、都市の中心で働くプロフェッショナルに最適な環境を提供します。現代的なビジネスのニーズに応えるために設計されたD-LIFEPLACE南青山は、快適で生産性の高いオフィス空間を望む企業にとって、理想的な選択肢となるでしょう。 物件の立地については、外苑前駅から徒歩わずか1分というアクセスの良さが際立っています。さらに、青山一丁目駅や表参道駅も徒歩圏内にあり、都心の主要エリアへのアクセスが非常に便利です。青山通りに面していることから、周辺には飲食店、銀行、コンビニエンスストアなど、ビジネスに必要なあらゆるサービスが充実しています。 設備面では、全面ガラス張りのデザインが特徴で、自然光がたっぷりと入ることで、オフィス内は明るく開放的な雰囲気を持っています。無柱空間の採用により、レイアウトの自由度が高く、企業が自社のニーズに合わせたオフィス環境を構築できます。さらに、室外男女別トイレ、高さ100mmのOAフロア、天井高2750mmといった高スペックな設備が、効率的かつ快適なワークスペースを実現します。エレベーターは5基設置されており、24時間の有人管理と個別空調システムが、セキュリティと快適性を保証します。 また、地下には全59台を収容可能な平面自走式駐車場があり、車でのアクセスもスムーズです。このように、D-LIFEPLACE南青山は、立地、設備、セキュリティの全てにおいて、ビジネスの成功をサポートするための環境が整っています。 総じて、D-LIFEPLACE南青山は、その立地と設備内容が、現代のビジネスにおける多様な要求を満たすよう設計された賃貸オフィスビルです。青山通り沿いの利便性の高いロケーションと、効率的で柔軟なオフィススペースの提供は、企業にとって大きなメリットとなります。ビジネスの新しい拠点として、D-LIFEPLACE南青山は、あなたの企業に新たな価値をもたらすことでしょう。
自分で探すより問い合わせる方が早いことがあります
WEB非公開物件があるから
オーナー様のご希望により「WEBでは非公開」にしている物件があります。 それらはWEBでいくら検索しても見つかりません。 先ずは条件などお知らせ頂けましたら非公開物件含め ピッタリのオフィスをご提案させて頂きます。 無理なお勧めはしておりませんので、お気軽にお問い合わせください。
対面でのご相談も受け付けております
ご来店も歓迎です
オフィス移転は社内・社外ともに非公開に行われることが殆どです。そのためアットオフィスでは、基本的に訪問によるコンサルティングを行っておりますが、ご来店の相談も歓迎です。お一人おひとりに親身にご対応させて頂きたい為、要予約とさせて頂いております。ご来店の際は先ずは下記よりご予約下さい。
募集終了のテナント区画
| 階数 | 坪数 | 賃料 + 共益費 | 敷金/礼金敷金 礼金 | 検討 |
|---|---|---|---|---|
| 1階 | 179.64坪 (593.88m²) | 募集終了 | - | - |
| 2階 | 266.21坪 (880.03m²) | 募集終了 | - | - |
| 3階 | 404.84坪 (1338.32m²) | 募集終了 | - | - |
| 4階 | 404.84坪 (1338.32m²) | 募集終了 | - | - |
| 9階 | 404.84坪 (1338.32m²) | 募集終了 | - | - |
| 11階 | 404.84坪 (1338.32m²) | 募集終了 | - | - |
| 12階 | 404.84坪 (1338.32m²) | 募集終了 | - | - |
読込中...
青山エリアでD-LIFEPLACE南青山に似た条件の物件
読込中...
| 取扱様態 | 仲介 |
|---|---|
| 取扱会社 | 株式会社 アットオフィス |