※このサイトに記載がある賃貸条件は、敷金・保証金などの預かり金を除き、別途消費税がかかります。
設備詳細
| 空調 | - |
|---|---|
| トイレ | - |
| 床仕様 | - |
| エレベータ | - |
| 駐車場設備 | - |
| その他 | 新耐震基準 |
古川ビルの賃貸オフィス・事務所に関するお問い合わせ
古川ビルについて
足立区竹の塚6丁目に位置する古川ビルは、地上5階建ての事業用賃貸物件です。伊勢崎線「竹ノ塚駅」から徒歩3分の距離にあり、周辺には生活インフラや商業施設も点在しています。駅からの移動も短時間で済む立地のため、来訪者や従業員の動線を考慮した事業活動を実現しやすい環境です。外観・共用部分は落ち着いた雰囲気で、様々な業種の事業拠点として利用が想定できます。複数階に分かれた建物構造は、オフィスのみならず、事務所、教室、サービス業など多様な用途に応じたレイアウトを検討する際にも活用できます。竹ノ塚エリアの拠点を検討されている法人様にとって、地域とのつながりを大切にした事業展開を進める際の選択肢としてご覧いただけます。詳細はお問い合わせください。
古川ビルのこだわり
自分で探すより問い合わせる方が早いことがあります
WEB非公開物件があるから
オーナー様のご希望により「WEBでは非公開」にしている物件があります。 それらはWEBでいくら検索しても見つかりません。 先ずは条件などお知らせ頂けましたら非公開物件含め ピッタリのオフィスをご提案させて頂きます。 無理なお勧めはしておりませんので、お気軽にお問い合わせください。
対面でのご相談も受け付けております
ご来店も歓迎です
オフィス移転は社内・社外ともに非公開に行われることが殆どです。そのためアットオフィスでは、基本的に訪問によるコンサルティングを行っておりますが、ご来店の相談も歓迎です。お一人おひとりに親身にご対応させて頂きたい為、要予約とさせて頂いております。ご来店の際は先ずは下記よりご予約下さい。
募集終了のテナント区画
| 階数 | 坪数 | 賃料 + 共益費 | 敷金/礼金敷金 礼金 | 検討 |
|---|---|---|---|---|
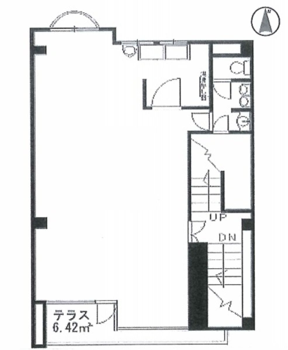
| 2階 | 23.54坪 (77.8m²) | 募集終了 | - | - |
読込中...
足立区エリアで古川ビルに似た条件の物件
読込中...
| 取扱様態 | 仲介 |
|---|---|
| 取扱会社 | 株式会社 アットオフィス |