五色橋ビルの賃料条件
| 階数 | 坪数 | 賃料 + 共益費 | 敷金/礼金敷金 礼金 | 検討 |
|---|---|---|---|---|
| 4階 | 105.14坪 (347.57m²) | 1,261,680円 (坪:12,000 円) | 6ヶ月 1ヶ月6ヶ月/1ヶ月 | |
| 5階 | 25.04坪 (82.77m²) | 300,480円 (坪:12,000 円) | 6ヶ月 1ヶ月6ヶ月/1ヶ月 | |
| 6階 | 414.03坪 (1368.7m²) | 4,968,360円 (坪:12,000 円) | 6ヶ月 1ヶ月6ヶ月/1ヶ月 |
※このサイトに記載がある賃貸条件は、敷金・保証金などの預かり金を除き、別途消費税がかかります。
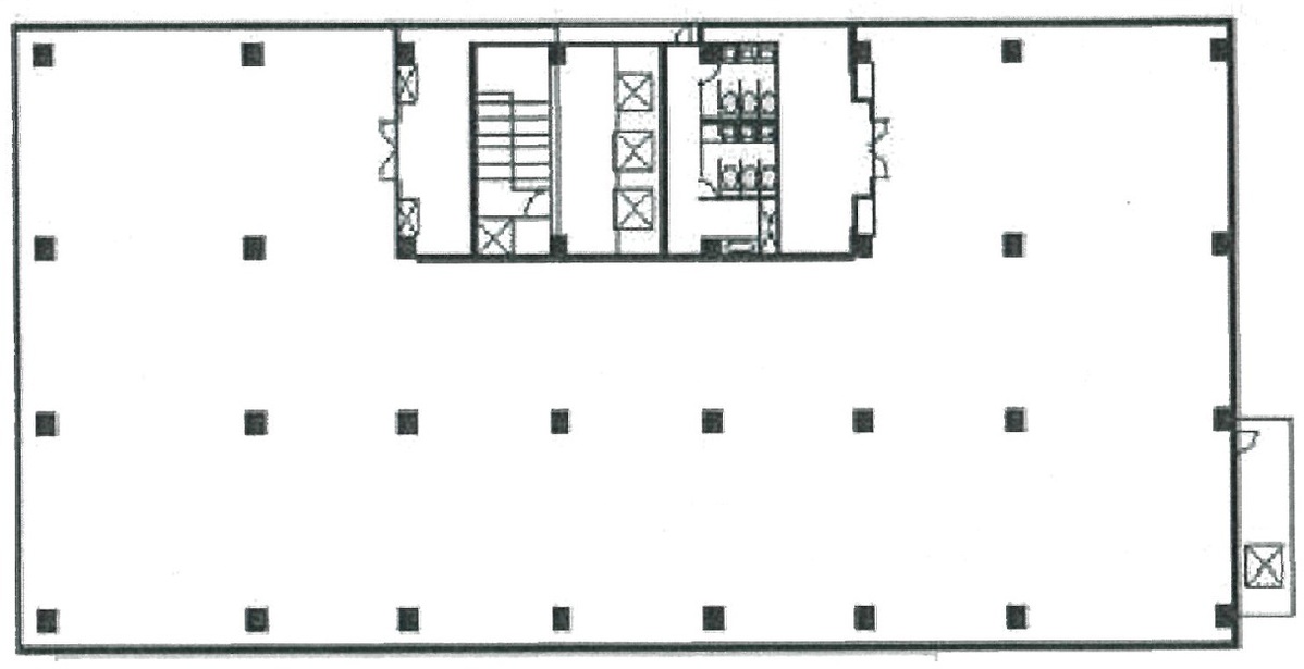
物件情報
設備詳細
| 空調 | 個別空調 / セントラル空調 |
|---|---|
| トイレ | 男女別トイレ室外 |
| 床仕様 | - |
| エレベータ | 3 基 |
| 駐車場設備 | - |
| その他 | 大型ビル / 新耐震基準 / スケルトン |
五色橋ビルの賃貸オフィス・事務所に関するお問い合わせ
五色橋ビルについて
五色橋ビル(港区海岸)は、1986年に竣工した地上8階建ての賃貸オフィスビルで、基準階約417坪の大型オフィス空間を提供しています。このビルは、鉄骨鉄筋コンクリート(SRC)造りであり、新耐震基準に適合した建築であることが、安心してビジネスを展開できる一因です。エレベーターは、快適な移動をサポートするために3基設置されています。 立地については、港区海岸に位置し、東京湾近くの開放的な環境が魅力的です。特に、ビル裏手に流れる運河沿いの眺望は、仕事中のリフレッシュにも最適です。交通のアクセスも良好で、ゆりかもめ線の芝浦ふ頭駅から徒歩15分圏内、JR山手線・JR京浜東北線の田町駅からも同様にアクセス可能です。この立地は、ビジネスの機会を広げるためにも非常に有利です。 ビルの設備に関しては、24時間使用可能なセントラル空調を完備しており、オフィス環境を快適に保つことができます。また、床はタイルカーペット仕様で、床荷重は500㎏/㎡となっており、オフィス用途にしっかりと対応しています。トイレは室外に男女別で設置されており、清潔感ある環境が保たれています。 付帯設備として、ビル内には15人乗りのエレベーターが3基あり、駐車場も30台分完備されています。さらに、光ファイバーにも対応し、ビジネスに必要な高速インターネット環境も整っています。 五色橋ビルの周辺環境も、ビジネスにとって大きなメリットがあります。徒歩圏内にはコンビニやスーパーマーケットがあり、日常の買い物に便利です。また、ビル前には首都高速道路が通っており、車でのアクセスも良好です。 総じて、五色橋ビルは、安心感のある耐震構造、快適なオフィス環境、利便性の高い立地、そして充実したビル設備と周辺環境を兼ね備えた賃貸オフィス物件です。ビジネスをさらに拡大し、新たな可能性を追求する企業にとって、最適な選択となるでしょう。
自分で探すより問い合わせる方が早いことがあります
WEB非公開物件があるから
オーナー様のご希望により「WEBでは非公開」にしている物件があります。 それらはWEBでいくら検索しても見つかりません。 先ずは条件などお知らせ頂けましたら非公開物件含め ピッタリのオフィスをご提案させて頂きます。 無理なお勧めはしておりませんので、お気軽にお問い合わせください。
対面でのご相談も受け付けております
ご来店も歓迎です
オフィス移転は社内・社外ともに非公開に行われることが殆どです。そのためアットオフィスでは、基本的に訪問によるコンサルティングを行っておりますが、ご来店の相談も歓迎です。お一人おひとりに親身にご対応させて頂きたい為、要予約とさせて頂いております。ご来店の際は先ずは下記よりご予約下さい。
募集終了のテナント区画
| 階数 | 坪数 | 賃料 + 共益費 | 敷金/礼金敷金 礼金 | 検討 |
|---|---|---|---|---|
| 1階 | 34.49坪 (114.02m²) | 募集終了 | - | - |
| 1階 | 166坪 (548.76m²) | 募集終了 | - | - |
| 2階 | 330.68坪 (1093.19m²) | 募集終了 | - | - |
| 3階 | 417.28坪 (1379.45m²) | 募集終了 | - | - |
| 3階 | 182.4坪 (602.98m²) | 募集終了 | - | - |
| 3階 | 103.57坪 (342.38m²) | 募集終了 | - | - |
| 4階 | 414.03坪 (1368.7m²) | 募集終了 | - | - |
| 4階 | 52.12坪 (172.29m²) | 募集終了 | - | - |
| 4階 | 98.68坪 (326.21m²) | 募集終了 | - | - |
| 5階 | 414.03坪 (1368.7m²) | 募集終了 | - | - |
| 5階 | 223.21坪 (737.88m²) | 募集終了 | - | - |
| 7階 | 417.28坪 (1379.45m²) | 募集終了 | - | - |
| 8階 | 417.28坪 (1379.45m²) | 募集終了 | - | - |
読込中...
近くのエリアで探してみる
港南/高輪/白金台/(品川駅)エリアで五色橋ビルに似た条件の物件
読込中...
| 取扱様態 | 仲介 |
|---|---|
| 取扱会社 | 株式会社 アットオフィス |