※このサイトに記載がある賃貸条件は、敷金・保証金などの預かり金を除き、別途消費税がかかります。
物件情報
設備詳細
| 空調 | - |
|---|---|
| トイレ | - |
| 床仕様 | - |
| エレベータ | 1 基 |
| 駐車場設備 | - |
| その他 | 新耐震基準 |
仮)市谷八幡町ビルの賃貸オフィス・事務所に関するお問い合わせ
仮)市谷八幡町ビルについて
「仮)市谷八幡町」は、新宿区市谷八幡町に位置する地上8階建ての建物です。所在地は、総武中央線および南北線「市ヶ谷駅」から徒歩2分という立地で、複数路線への接続が可能な点が特徴です。駅からの距離が短いため、近隣への移動や来訪者の案内などにも配慮しやすい環境です。 建物にはエレベーターが1基設置されており、日常的な上下階の移動に対応しています。複数のフロアを活用したレイアウトや、用途に応じた各階の使い分けも検討しやすい構成です。オフィスや事業拠点としての利用を想定した場合、階層ごとの区画設計や、フロアごとの機能分担なども柔軟に計画できます。 新宿区内の市谷八幡町エリアは、都心のビジネス活動が集積する地域のひとつです。周辺には飲食店や各種サービス店舗も点在し、就業者の日常的な利便に寄与します。建物の外観や共用部の仕様など詳細情報については、お問い合わせいただくことで案内が可能です。詳細はお問い合わせください。
仮)市谷八幡町ビルのこだわり
自分で探すより問い合わせる方が早いことがあります
WEB非公開物件があるから
オーナー様のご希望により「WEBでは非公開」にしている物件があります。 それらはWEBでいくら検索しても見つかりません。 先ずは条件などお知らせ頂けましたら非公開物件含め ピッタリのオフィスをご提案させて頂きます。 無理なお勧めはしておりませんので、お気軽にお問い合わせください。
対面でのご相談も受け付けております
ご来店も歓迎です
オフィス移転は社内・社外ともに非公開に行われることが殆どです。そのためアットオフィスでは、基本的に訪問によるコンサルティングを行っておりますが、ご来店の相談も歓迎です。お一人おひとりに親身にご対応させて頂きたい為、要予約とさせて頂いております。ご来店の際は先ずは下記よりご予約下さい。
募集終了のテナント区画
| 階数 | 坪数 | 賃料 + 共益費 | 敷金/礼金敷金 礼金 | 検討 |
|---|---|---|---|---|
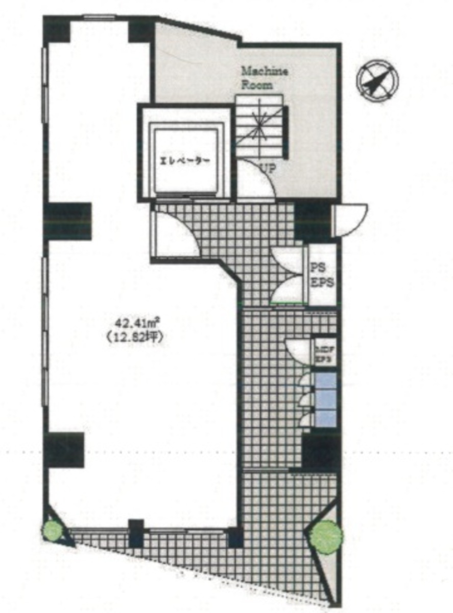
| 1階 | 12.82坪 (42.38m²) | 募集終了 | - | - |
| 2階 | 15坪 (49.59m²) | 募集終了 | - | - |
| 3階 | 15坪 (49.59m²) | 募集終了 | - | - |
| 4階 | 15坪 (49.59m²) | 募集終了 | - | - |
| 5階 | 15坪 (49.59m²) | 募集終了 | - | - |
読込中...
近くのエリアで探してみる
市ヶ谷/神楽坂/飯田橋エリアで仮)市谷八幡町ビルに似た条件の物件
読込中...
| 取扱様態 | 仲介 |
|---|---|
| 取扱会社 | 株式会社 アットオフィス |