※このサイトに記載がある賃貸条件は、敷金・保証金などの預かり金を除き、別途消費税がかかります。
物件情報
設備詳細
| 空調 | 個別空調 |
|---|---|
| トイレ | - |
| 床仕様 | OA対応床(フリーアクセス) |
| エレベータ | 1 基 |
| 駐車場設備 | - |
| その他 | 新耐震基準 / 居抜き / オフィス居抜き特集 |
PMO芝大門の賃貸オフィス・事務所に関するお問い合わせ
PMO芝大門について
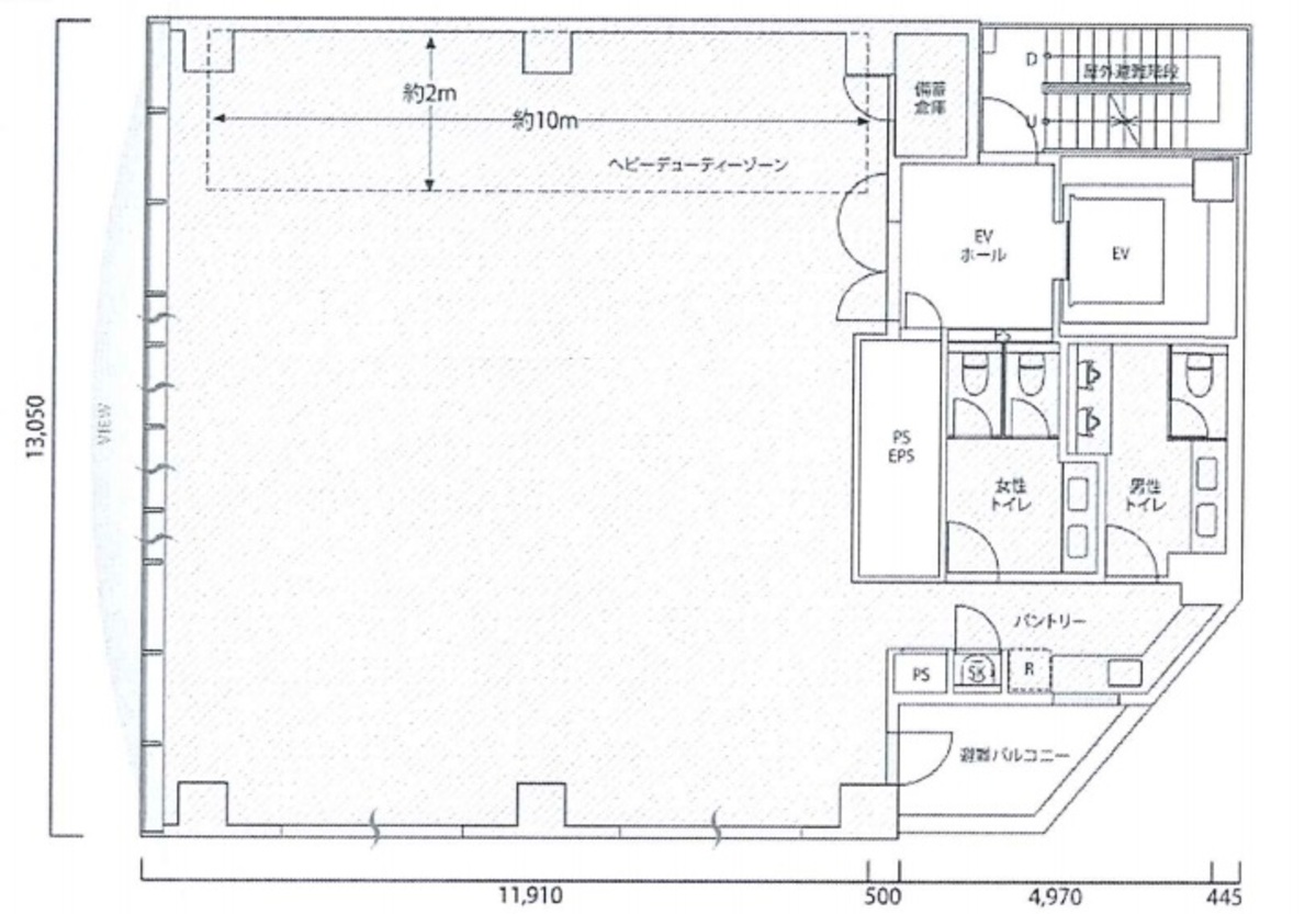
PMO芝大門(港区芝大門)は、2014年に竣工した、高いスペックを誇る賃貸オフィスビルです。本物件は、企業のイメージ向上に寄与する洗練された外観と共用部、快適なオフィス空間を提供し、高い耐震性能やセキュリティ、交通利便性の良さも兼ね備えています。物件の立地は、御成門駅や大門駅からアクセス可能であり、浜松町駅からも徒歩10分圏内という利便性の高さが魅力です。また、近隣の芝パークビルからは羽田・成田の両空港へのリムジンバスも利用可能であり、ビジネスの拠点として最適な立地条件を備えています。 本ビルの特徴として、自然換気口や省エネ効果を発揮するLED照明の採用が挙げられます。これにより、企業のエネルギーコスト削減に貢献します。さらに、専用タブレットを用いてフロア内の電気使用量を「見える化」することで、より効率的なエネルギー管理が可能となります。 オフィススペースにおいては、50坪台中盤のワンフロアに天井高2750mmの広々とした空間が確保されており、様々なレイアウトにフレキシブルに対応できます。個別空調システムにより、4ゾーンでの温度調節が可能であり、快適なオフィス環境を実現しています。トイレは男女別で、女性用には個室が2個用意されており、床仕様はOAフロアを採用しています。これらの設備は、オフィスワーカーにとっての快適性と機能性を高める要素と言えるでしょう。 芝L'sビルについても触れておきます。こちらは浜松町駅徒歩7分、芝公園駅からも徒歩7分の距離に位置するオフィスビルです。御影石造りの外観が特徴的で、エントランスや共用部の管理が行き届いており、グレード感あふれるビルです。1階のテナントには有名な飲食店が入居しており、ビルの視認性を高めています。 総じて、PMO芝大門及び芝L'sビルは、立地の良さ、高いスペックの設備、快適なオフィス環境を提供することで、企業のビジネス展開の拠点として最適な選択肢と言えます。それぞれのビルが持つ独自の魅力とビジネスにおける利点を考慮すれば、これらの物件は港区における賃貸オフィス市場において非常に魅力的な選択肢となるでしょう。
PMO芝大門のこだわり
自分で探すより問い合わせる方が早いことがあります
WEB非公開物件があるから
オーナー様のご希望により「WEBでは非公開」にしている物件があります。 それらはWEBでいくら検索しても見つかりません。 先ずは条件などお知らせ頂けましたら非公開物件含め ピッタリのオフィスをご提案させて頂きます。 無理なお勧めはしておりませんので、お気軽にお問い合わせください。
対面でのご相談も受け付けております
ご来店も歓迎です
オフィス移転は社内・社外ともに非公開に行われることが殆どです。そのためアットオフィスでは、基本的に訪問によるコンサルティングを行っておりますが、ご来店の相談も歓迎です。お一人おひとりに親身にご対応させて頂きたい為、要予約とさせて頂いております。ご来店の際は先ずは下記よりご予約下さい。
募集終了のテナント区画
| 階数 | 坪数 | 賃料 + 共益費 | 敷金/礼金敷金 礼金 | 検討 |
|---|---|---|---|---|
| 2階 | 55.33坪 (182.909m²) | 募集終了 | - | - |
| 3階 | 55.33坪 (182.92m²) | 募集終了 | - | - |
| 4階 | 55.33坪 (182.92m²) | 募集終了 | - | - |
| 5階 | 55.33坪 (182.9m²) | 募集終了 | - | - |
| 6階 | 55.33坪 (182.9m²) | 募集終了 | - | - |
| 7階 | 55.33坪 (182.909m²) | 募集終了 | - | - |
| 9階 | 54.95坪 (181.65m²) | 募集終了 | - | - |
読込中...
近くのエリアで探してみる
浜松町/田町/芝公園エリアでPMO芝大門に似た条件の物件
読込中...
| 取扱様態 | 仲介 |
|---|---|
| 取扱会社 | 株式会社 アットオフィス |