約79坪 神保町【セットアップ】
物件ID: ma1-027
神保町駅 新築セットアップオフィス!
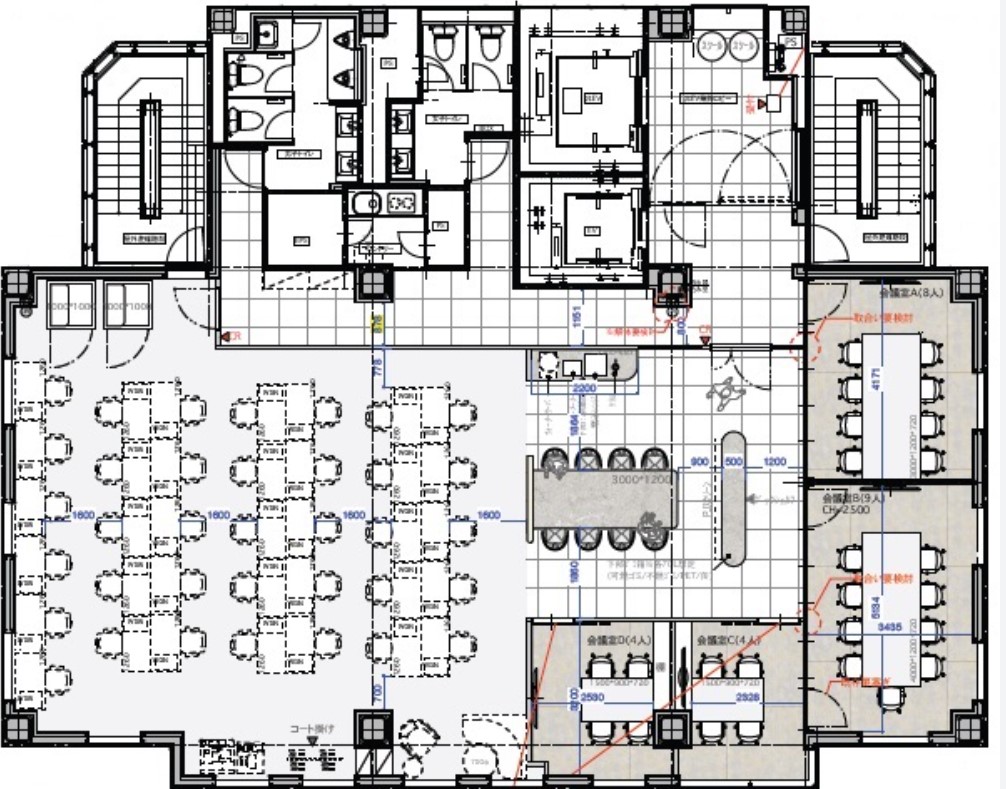
【おすすめポイント】 ①会議室4部屋設置予定 ②オートロック完備 ③敷金0相談可(保証会社利用の場合) ④駐車場施設あり(空台数はお問合せください) ※什器備品は原則ございません。 ========================================================================== ⇓⇓ まずはご相談ください ⇓⇓ 『こんな物件をさがしている』 『現在のオフィスを居抜きで退去したい』 などのご相談も多く承っております。 お客様に合ったご提案が可能ですので、まずはお気軽にご相談ください。
| 物件名 | 非公開 |
|---|---|
| 現況 | 募集終了 |
| 賃料 | お問合せください |
| 管理費 | 相談 |
| 敷金・礼金 | 相談・相談 |
| 専有面積 | お問合せください |
| 所在地 | 東京都千代田区 |
| 最寄り駅 | 東京地下鉄半蔵門線 神保町駅 |
| 構造/規模 | - |
| 竣工年 | - |
| 設備 | - |