秋葉原 約45坪【居抜き】
物件ID: ma2-214
秋葉原・岩本町エリアのハイグレードビルの居抜きオフィス・:*+.
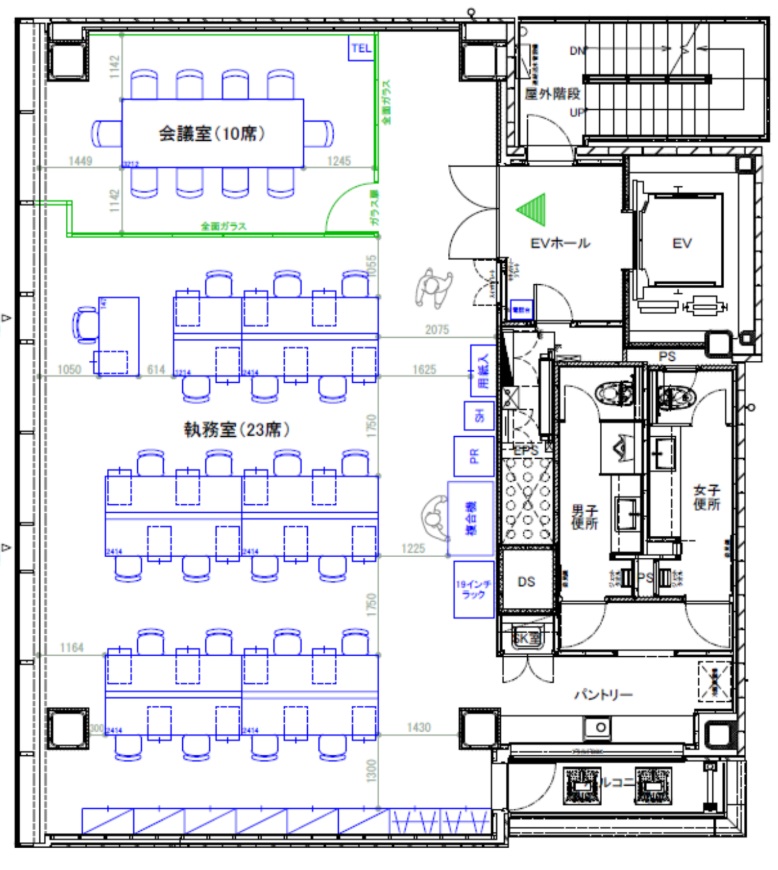
・会議室1部屋(10名用) ・20~25名用の執務室 ・共用部に男女別お手洗い ダークトーンの全面ガラス張りがかっこいいオフィスビルの非公開居抜きです! 詳細はぜひお問い合わせください。 ============================================================ 都内最大級を誇る物件数と累計10,000件以上の移転支援実績を生かし、 貴社にピッタリなオフィスをお探しします! 「居抜きで退去したい」といったご相談や 「相場を知りたい」といったご要望にもお応えします! 皆さまからのご連絡お待ちしております! ⇓⇓ お問い合わせフォーム or 電話はこちらから ⇓⇓
| 物件名 | 非公開 |
|---|---|
| 現況 | 募集終了 |
| 賃料 | お問合せください |
| 管理費 | 相談 |
| 敷金・礼金 | 相談・相談 |
| 専有面積 | お問合せください |
| 所在地 | 東京都千代田区 |
| 最寄り駅 | 東京都新宿線 岩本町駅 |
| 構造/規模 | - |
| 竣工年 | - |
| 設備 | - |