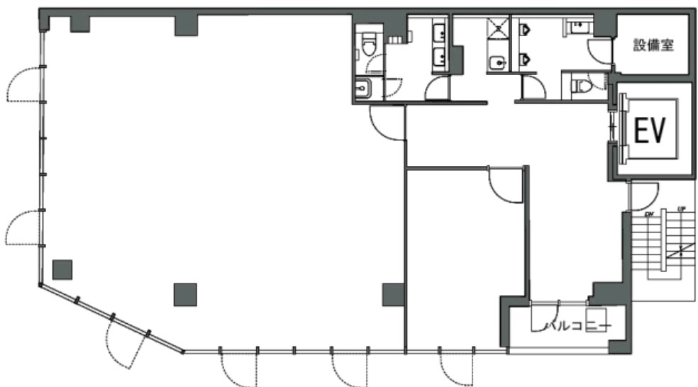
【セットアップ】馬喰町 約47坪
物件ID: mu1-021
新築セットアップオフィス!
【おすすめポイント】 ①新築のセットアップオフィス ②あえて天井を抜き開放的なデザイン ============================================================= この物件の他にも多数の居抜き物件情報を取り扱っております。 専任担当者より貴社に合った物件をご提案させて頂きます。 ご連絡お待ちしております! ⇓⇓ お問い合わせフォーム or 電話はこちらから ⇓⇓
| 物件名 | 非公開 |
|---|---|
| 現況 | 募集終了 |
| 賃料 | お問合せください |
| 管理費 | 相談 |
| 敷金・礼金 | 相談・相談 |
| 専有面積 | お問合せください |
| 所在地 | 東京都千代田区 |
| 最寄り駅 | 総武本線 馬喰町駅 |
| 構造/規模 | - |
| 竣工年 | - |
| 設備 | - |